EasyManua.ls Logo

FEDCO MSS-20 - Page 23

Default Icon
61 pages
Print Icon
To Next Page IconTo Next Page
To Next Page IconTo Next Page
To Previous Page IconTo Previous Page
To Previous Page IconTo Previous Page
Loading...
MSS
TM
Series
© Copyright 2022 Fluid Equipment Development Company | www.fedco-usa.com
- 23 -
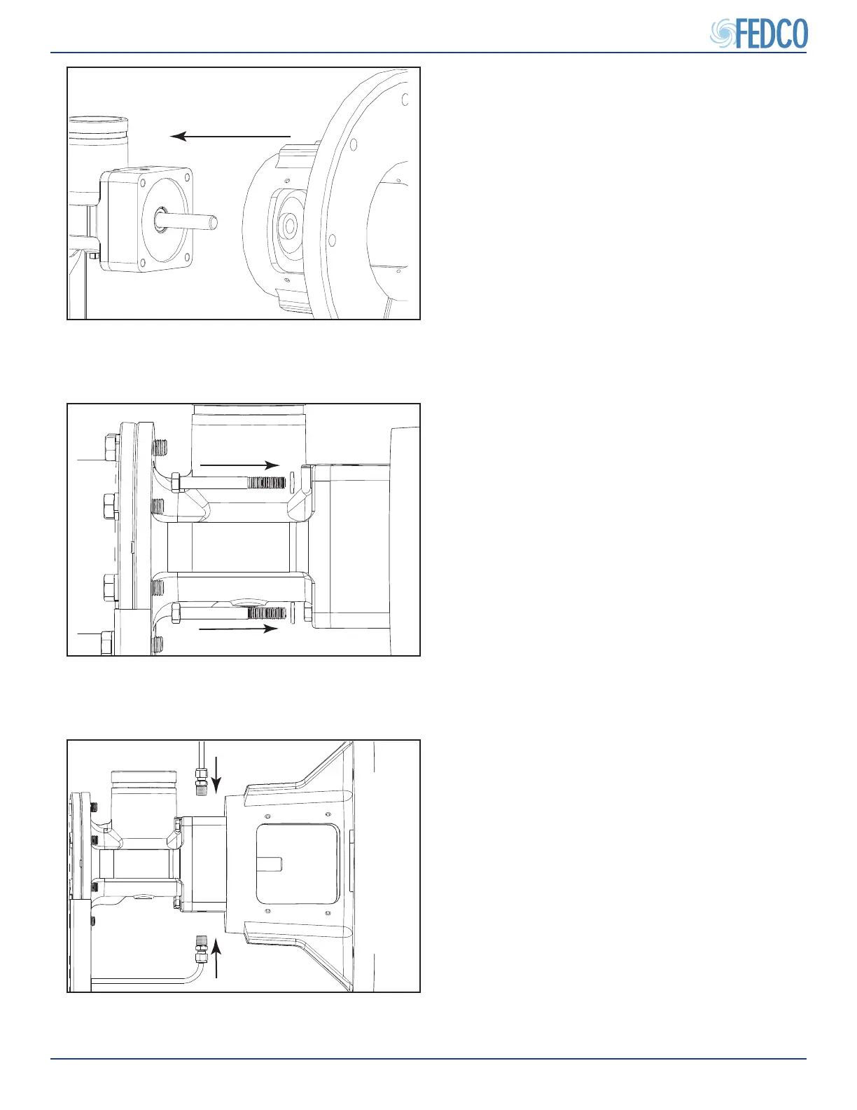
Figure 39 - Installing Drain/ Vent Lines
Figure 38 - Installing High Pressure Seal
Carrier Bolts
Figure 37 - Installing Motor Adapter
8. Connect the drain lines and any vent lines to
the high pressure seal carrier
NOTES: Make sure the vent line is clean and
unplugged. The line should be vented to the
atmosphere and positioned to drain normally or
connected to a low pressure manifold behind
the rst high pressure pump in the train. Un-
der no circumstances should the vent line be
plugged. A plugged vent line will result in insuf-
cient water lubrication of the seal and balance
disc causing internal damage to the unit.
9. Perform Steps 6, 7 and 8 in Mechanical Seal
Installation procedure in the previous sec-
tion.
7. Secure the motor adapter to the high pres-
sure seal carrier and inlet housing with bolts
and lock washers. Tighten to torque value
specied in the Fastener Torque Specica-
tions section of this manual.
6. Install the motor adapter.
Pump Overhaul Continued

Related product manuals