EasyManua.ls Logo

Fedders AFPB24A1 - Page 5

Fedders AFPB24A1
6 pages
Print Icon
To Next Page IconTo Next Page
To Next Page IconTo Next Page
To Previous Page IconTo Previous Page
To Previous Page IconTo Previous Page
Loading...
Product Specifications
5
Specifications subject to change without notice.
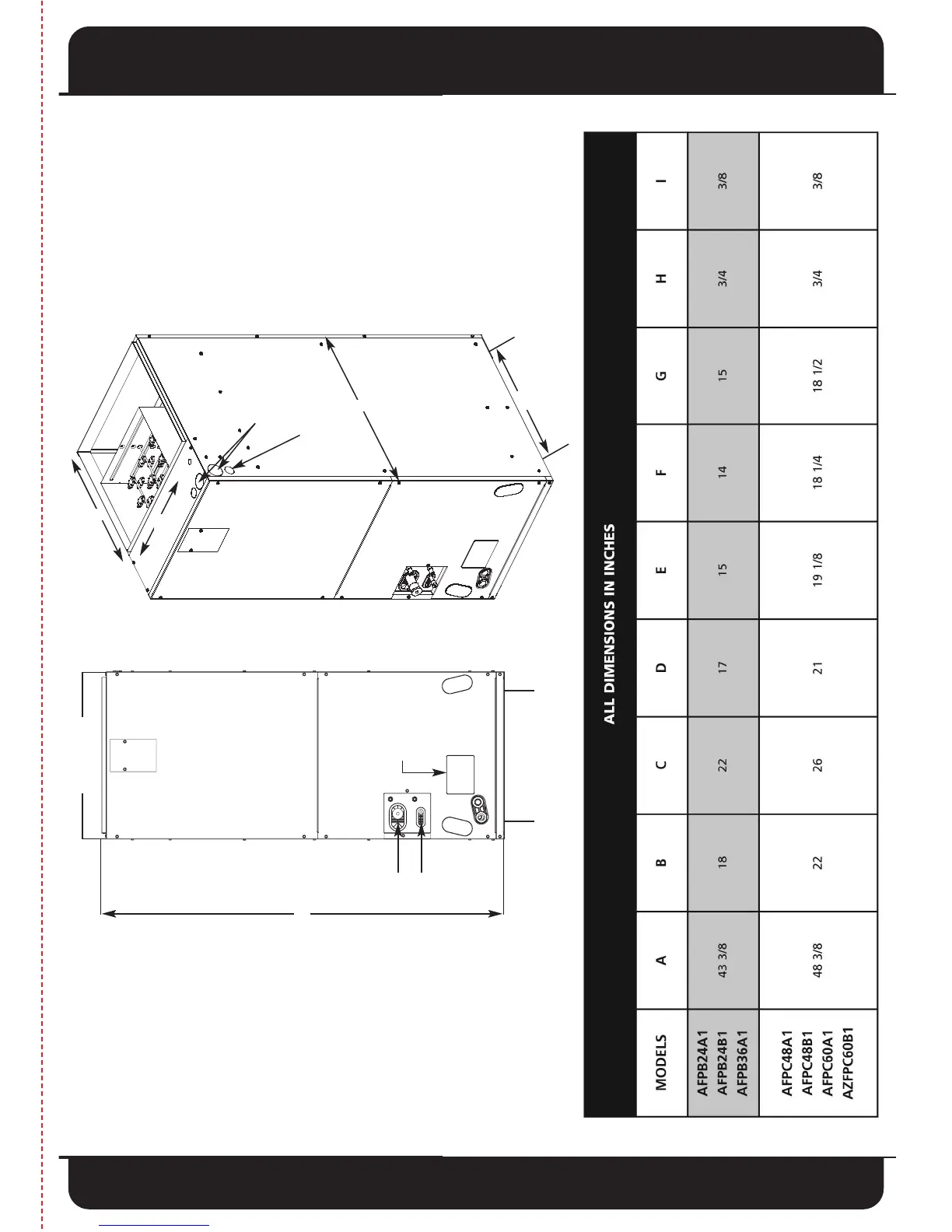
ACCESS COVER
TO TXV
LOW VOLT
CONNECTIONS
LINE
VOLTAGE
KNOCKOUTS
F
INLET WIDTH
H
I
A
D
E
C
G
INLET DEPTH
B
DIMENSIONS