EasyManua.ls Logo

FirePro FP-500S - FP-100 S & FP-200 S Mounting

Default Icon
19 pages
Print Icon
To Next Page IconTo Next Page
To Next Page IconTo Next Page
To Previous Page IconTo Previous Page
To Previous Page IconTo Previous Page
Loading...
FirePro Systems
REV. BYDATEDESCRIPTION
D
C
B
A
4 3 2 1
D
C
B
A
4 3 2 1
Aerosol Generator FP-100S & FP-200S
1.0 Generator Installation guide line 24/06/2016 Michaelides Loucas
FirePro
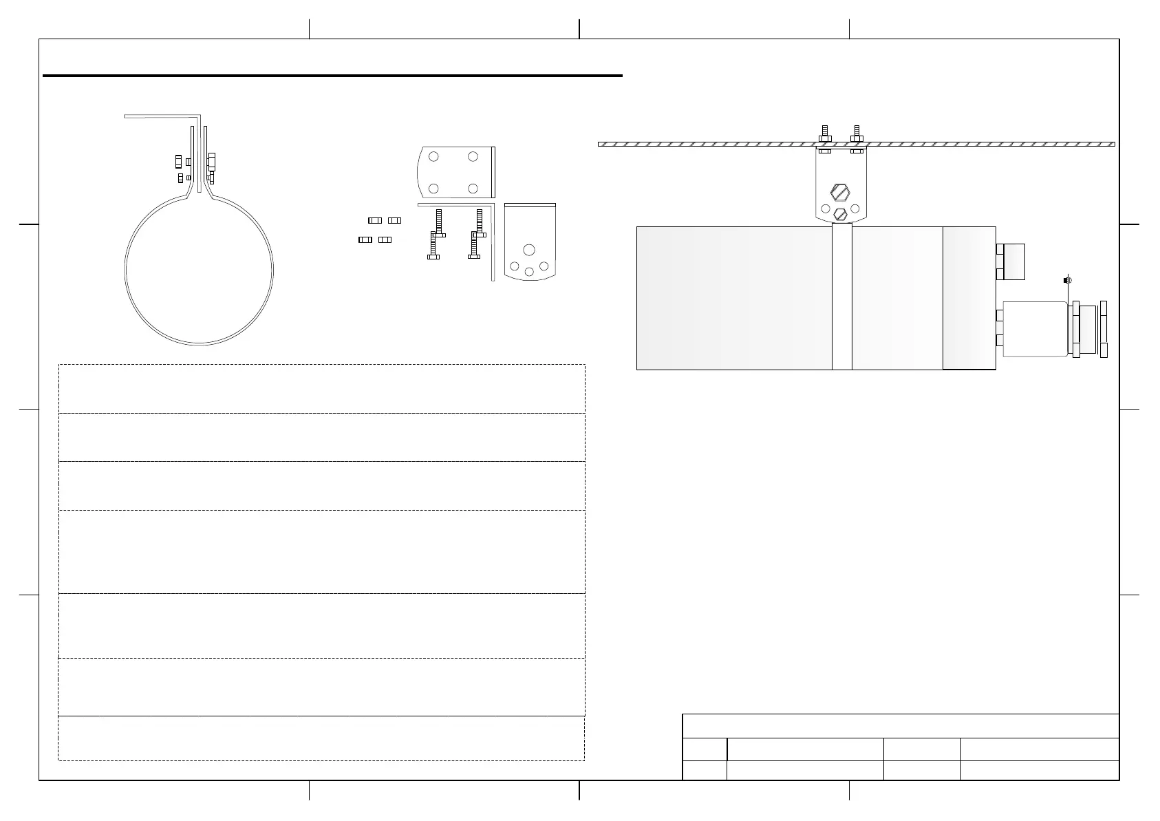
Step 7
The aerosol generator is ready for cable connections.
Step 6
Pass the selected screws through the ( L ) bracket holes and fix them on the surface
material.
Page 5
Step 5
Select type of screws suitable to the surface material to be fixed (these screws are
not supplied with the kit).
Step 4
Pass the screws through the aligned holes and tide them with the spanner key 11,13
to the nuts. Use screw size “M8” for the longer hole and screw size “M6” for the
smaller hole.
Step 2
Take ( L ) bracket and place it inside the ( Ring ) bracket.
Step 3
Align ( L ) bracket holes to the ( Ring ) bracket holes.
Step 1
Pass through the Aerosol Generator the Ring Bracket

Related product manuals