EasyManua.ls Logo

FirePro FP-500S - Page 8

Default Icon
19 pages
Print Icon
To Next Page IconTo Next Page
To Next Page IconTo Next Page
To Previous Page IconTo Previous Page
To Previous Page IconTo Previous Page
Loading...
FirePro Systems
REV. BYDATEDESCRIPTION
D
C
B
A
4 3 2 1
D
C
B
A
4 3 2 1
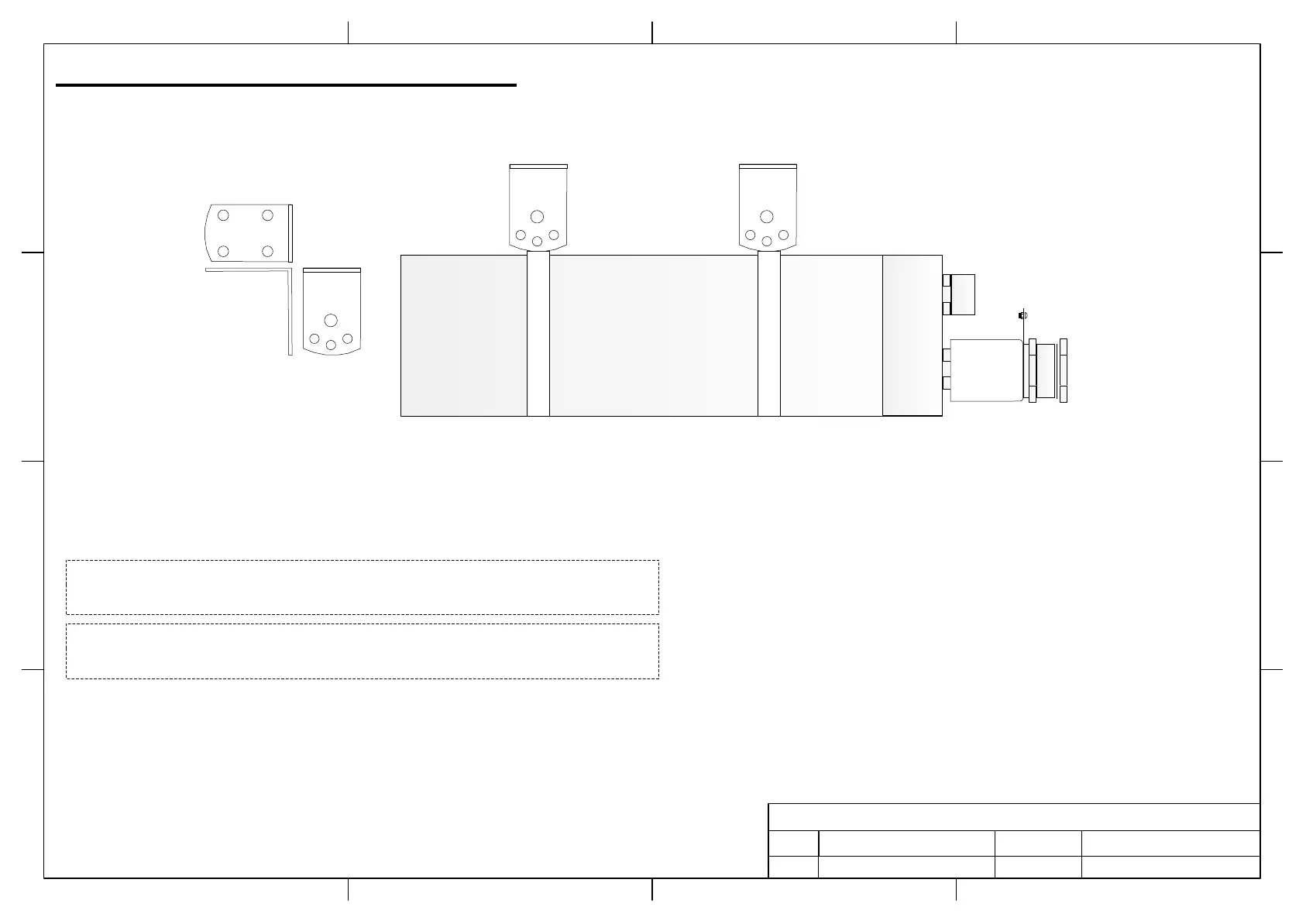
Aerosol Generator FP-500S
1.0 Generator Installation guide line 24/06/2016 Michaelides Loucas
Step 2
Take each ( L ) bracket and place it inside the ( Ring ) bracket.
FirePro
Step 3
Align each ( L ) bracket holes to the ( Ring ) bracket holes.
Page 7

Related product manuals