EasyManua.ls Logo

Flexicon BFF - Page 26

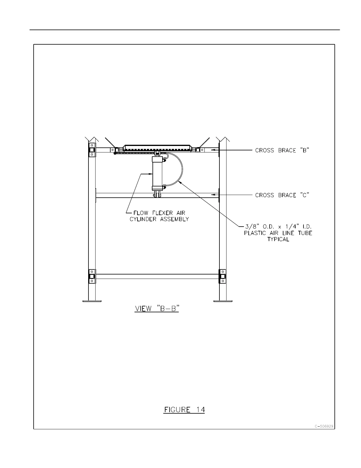
Flexicon BFF
27 pages
Print Icon
To Next Page IconTo Next Page
To Next Page IconTo Next Page
To Previous Page IconTo Previous Page
To Previous Page IconTo Previous Page
Loading...
FLEXICON
®
Bulk Bag Discharge Frame Installation and Operation Manual - 26 -
FLEXICON CORPORATION 2400 Emrick Boulevard Bethlehem, PA 18020-8006 USA
Tel: 1-888-FLEXICON Tel: 1-610-814-2400 Fax: 1-610-814-0600 www.flexicon.com