EasyManua.ls Logo

FonteCal MINITECH Series - Page 5

FonteCal MINITECH Series
20 pages
Print Icon
To Next Page IconTo Next Page
To Next Page IconTo Next Page
To Previous Page IconTo Previous Page
To Previous Page IconTo Previous Page
Loading...
5
TECHNICAL MANUAL FOR INSTALLATION, USE AND MAINTENANCE
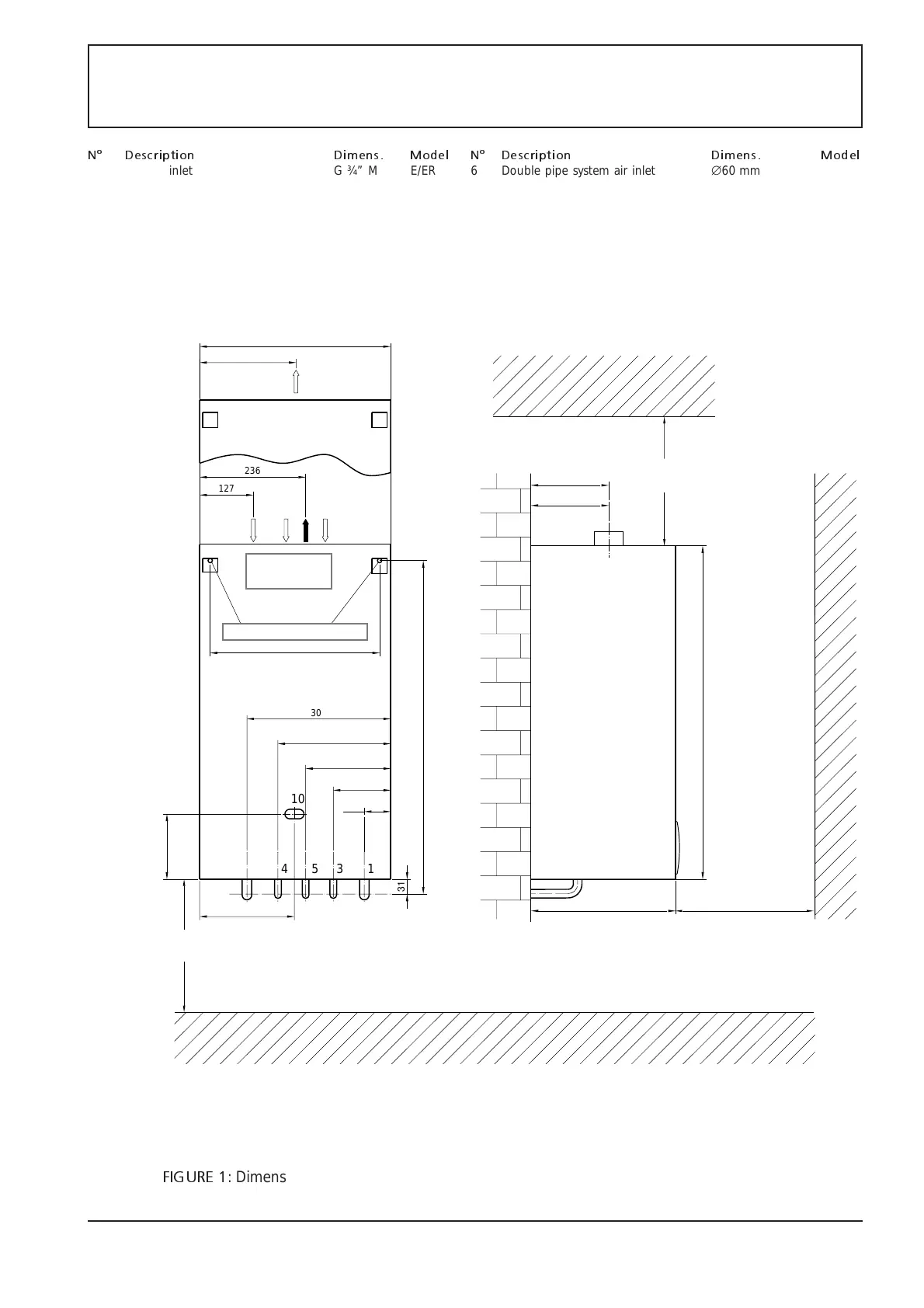
FIGURE 1
: Dimensions, free distance to be maintained, hydraulic connections, air inlet and flue
exhaust connection.
2
9
Mod. E
MIN 50 cm
MIN 35 cm
6 878
Fori per tassello Ø14
1534
10
301
120
178
236
55
700
300
Mod. ER
MIN 40 cm
355
400
215
137
700
200
185 mod.E
159 mod.ER
Uscite e
scarico fumi
31
127
236
N° Description Dimens. Model N° Description Dimens. Model
1 System inlet G ¾” M E/ER 6 Double pipe system air inlet 60 mm ER
2 System flow G ¾” M E/ER 7 Double pipe system flue exhaust 60 mm ER
3 Water network G ¾” M E/ER 8 Double pipe system flue inlet/exhaust100/ 60 mm ER
4 Hot Water G ¾ M E/ER 9 flue exhaust 130 mm E
5 Gas G ¾” M E/ER 10 Space for electric cables 20x40 E/ER
air inlet and
flue discharge
holes for screw anchors Ø14

Related product manuals