EasyManua.ls Logo

Force USA F100 - Page 10

Force USA F100
28 pages
Print Icon
To Next Page IconTo Next Page
To Next Page IconTo Next Page
To Previous Page IconTo Previous Page
To Previous Page IconTo Previous Page
Loading...
Assembly steps
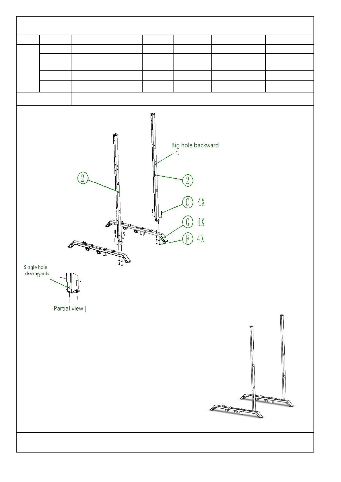
Step
NO
Item NO Name Qty Item NO Name Qty
2
NO 2 Rear riser assembly 2
C
Hexagon flat head screw
M10*60
4
G Flat washer Ø10 4
F Locknut M10 4
Tools No.6 hexagon socket screw driver,wrench
Put the Rear riser assembly on the base as shown in the picture, pay attention to the upper and lower ends.
10

Related product manuals