EasyManua.ls Logo

FRAM FFSC-S90MLITGCF-RBK - Page 41

FRAM FFSC-S90MLITGCF-RBK
Print Icon
To Next Page IconTo Next Page
To Next Page IconTo Next Page
To Previous Page IconTo Previous Page
To Previous Page IconTo Previous Page
Loading...
40
WARNING: The kitchen furniture near the appliance must be heat resistant.
WARNING: Do not use the door and/or handle to carry or move the appliance.
WARNING: Do not install the appliance beside refrigerators or coolers. Heat radiated by the appliance
increases the energy consumption of cooling devices.
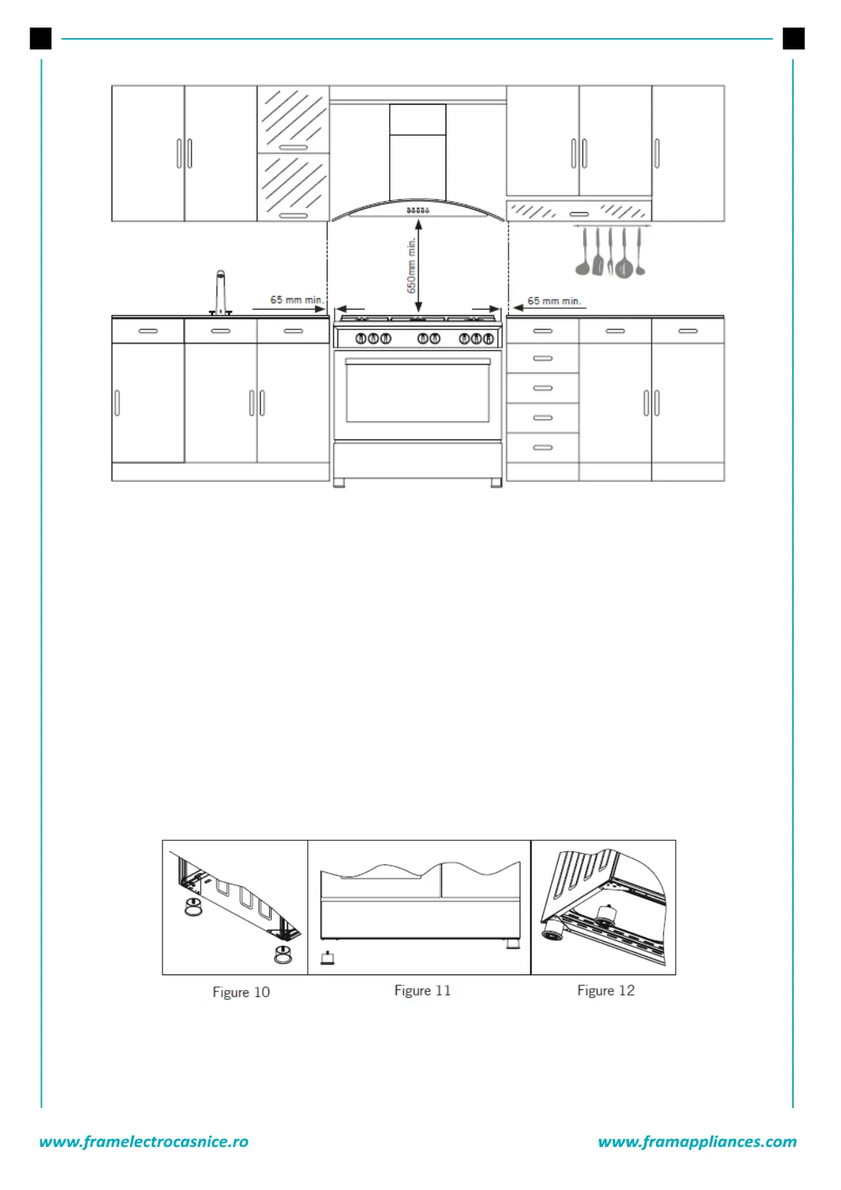
Installation of The Oven Feet
In order to install the oven feet.
1. Foot attachment lath is installed on the oven from the bottom of the oven as shown in (figure 10). Nuts
are centered on these lathes in order to screw feet. Complete the feet installation process by screwing the
feet to the nuts (figure 11).
2. You can balance your oven by turning the screwed feet according to the surface type you are using.
3. If your oven has plastic food as in (figure 12) you can adjust your ovens height from these feet as turned
clockwise or anticlockwise.
Chain Lashing Illustration