EasyManua.ls Logo

Frigidaire FRT18B4A - Wiring Diagram

Frigidaire FRT18B4A
11 pages
Print Icon
To Previous Page IconTo Previous Page
To Previous Page IconTo Previous Page
Loading...
# = Fast-moving Parts 11 02/01
* = Non-Illustrated Parts
FRT18B4A Publication No.
5995349601
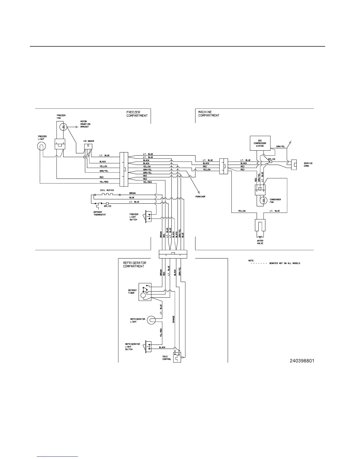
WIRING DIAGRAM

Related product manuals