EasyManua.ls Logo

Fronius Chilly 08 - Page 25

Fronius Chilly 08
38 pages
Print Icon
To Next Page IconTo Next Page
To Next Page IconTo Next Page
To Previous Page IconTo Previous Page
To Previous Page IconTo Previous Page
Loading...
L1
2.8
N
2.8
X1 L1
6
7
11 9
X1 L1
P>
F1
sw
rt
bl
X1 4
5
4
K2
15.0
U1
1
2
K3
A1
A2
9
8
B1
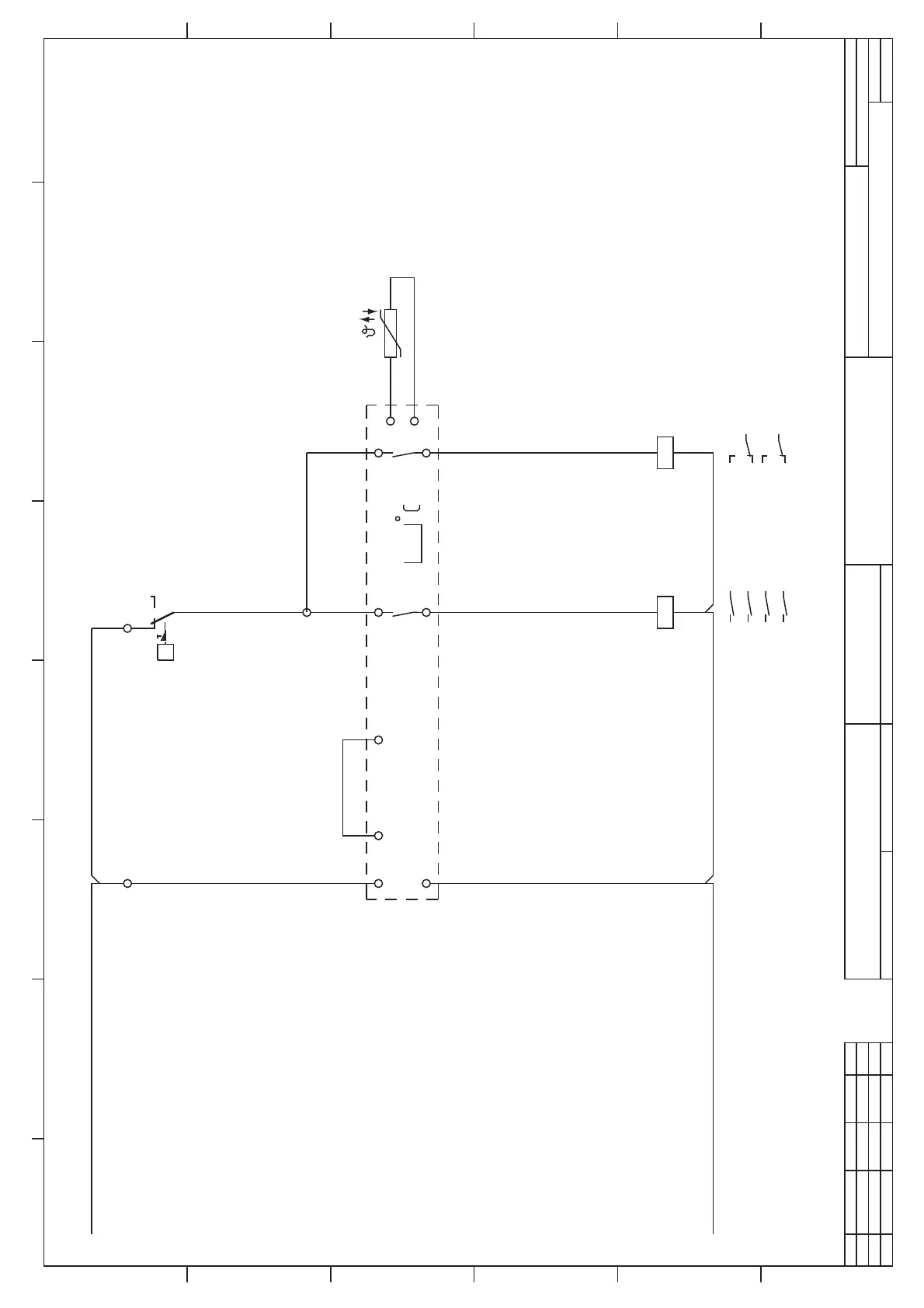
Sämtliche Leitungen ohne besondere Querschnitts-angabe sind H07V-K 2,5mm ²
all cables without numbers are H07V-K 2,5mm ²
Zeitverzögerung Intern: 1min
Time delay on inlet: 1min.
T1 AUX
Mediumtemperatur
medium temperature
Kompressor
compressor
Sammelstörung
collecting fault
A
Hauptschalter Anschluß
07.04.11 Bruchhof
A
B
23456781
3
E0011108
Chilly 25-S
Hauptstromkreise
Main circuit
5
Zust. Änderung Datum Name
Datum
Bearb.
Gepr.
Norm
Ursp. Ers. f. Ers. d.
Zeichng.
Nr.
Typ
=
+
Blatt
Blattvon
A
B
C
D
F
A
B
C
D
E
F
2345678
E
1
Bruchhof
13.10.10
Bartsch
12
2.4
34
2.5
56
13 14
4.6
14
12
4.6
11
24
22
21