EasyManua.ls Logo

GE Innova IGS 540 - 2 System Cable Information

GE Innova IGS 540
244 pages
To Next Page IconTo Next Page
To Next Page IconTo Next Page
To Previous Page IconTo Previous Page
To Previous Page IconTo Previous Page
Loading...
2 System Cable Information
2.1 Physical Runs
2.1.1 Physical Run Synoptic
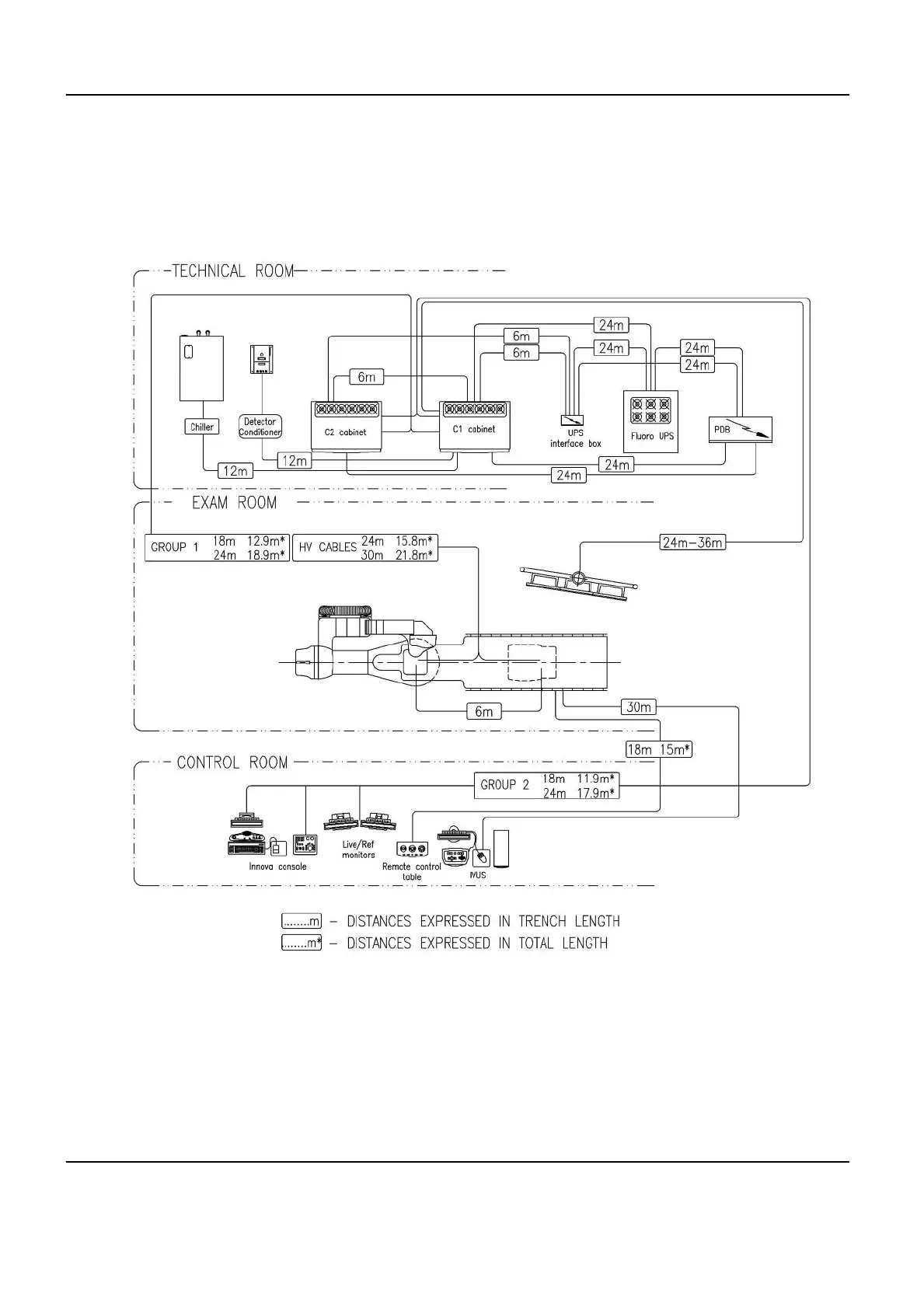
Illustration 5-3: Mini / Maxi Interconnection Length (system with LCD monitors)
NOTE:
A 24 m Emergency UPS stop cable 27561A is available in FRU.
Innova
TM
IGS 520, Innova
TM
IGS 530, Innova
TM
IGS 540 Pre-Installation Manual
Direction 5499972-1-1EN, Revision 2
206 2 System Cable Information

Table of Contents

Related product manuals