EasyManua.ls Logo

GE Profile 22 - Refrigerator and Door Installation

GE Profile 22
132 pages
Print Icon
To Next Page IconTo Next Page
To Next Page IconTo Next Page
To Previous Page IconTo Previous Page
To Previous Page IconTo Previous Page
Loading...
Installation Instructions
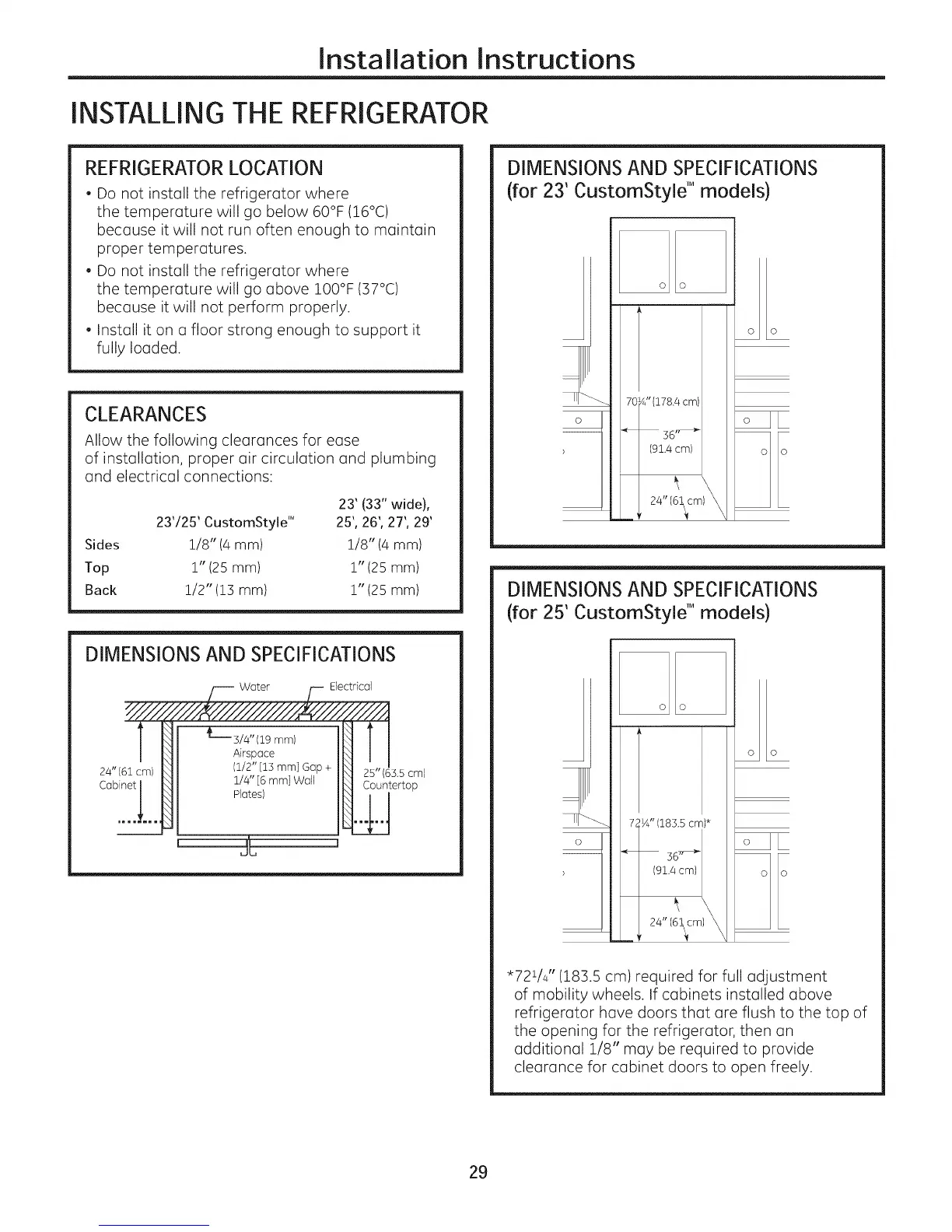
INSTALLINGTHE REFRIGERATOR
REFRIGERATOR LOCATION
Do not install the refrigerator where
the temperature will go below 60°F (16°C)
because it will not run often enough to maintain
proper temperatures.
Do not install the refrigerator where
the temperature will go above 100°F (37°C)
because it will not perform properly.
Install it on a floor strong enough to support it
fully loaded.
CLEARANCES
Allow the following clearances for ease
of installation, proper air circulation and plumbing
and electrical connections:
23' (33" wide),
23'/25' CustomStyle 'M 25', 26', 27', 29'
Sides 1/8" (4 mm) 1/8" (4 mm)
Top 1" (25 mm) 1" (25 mm)
Back 1/2" (13 mm) 1" (25 mm)
DIMENSIONS AND SPECIFICATIONS
.....
m
I II
_Jb
DIMENSIONS AND SPECIFICATIONS
(for 23' CustomStyld" models)
o
)
7C_"(Z78.4cm)
(91.4 cm)
t
24" (61 cm)
DIMENSIONS AND SPECIFICATIONS
(for 25' CustomStyld" models)
O
)
7; ¼"(183.5 cm)*
_- 36_
(91.4 cm)
__ 24" (6_cm)
"721/4" (183.5 cm) required for full adjustment
of mobility wheels. If cabinets installed above
refrigerator have doors that are flush to the top of
the opening for the refrigerator, then an
additional 1/8" may be required to provide
clearance for cabinet doors to open freely.
29

Related product manuals