EasyManua.ls Logo

GE Profile 28 - Decorator Panel Care and Dimensions; Panel Care and Cutting Specifications

GE Profile 28
136 pages
Print Icon
To Next Page IconTo Next Page
To Next Page IconTo Next Page
To Previous Page IconTo Previous Page
To Previous Page IconTo Previous Page
Loading...
27
Troubleshooting TipsInstallation Instructions
Customer Service
Operating InstructionsSafety Information
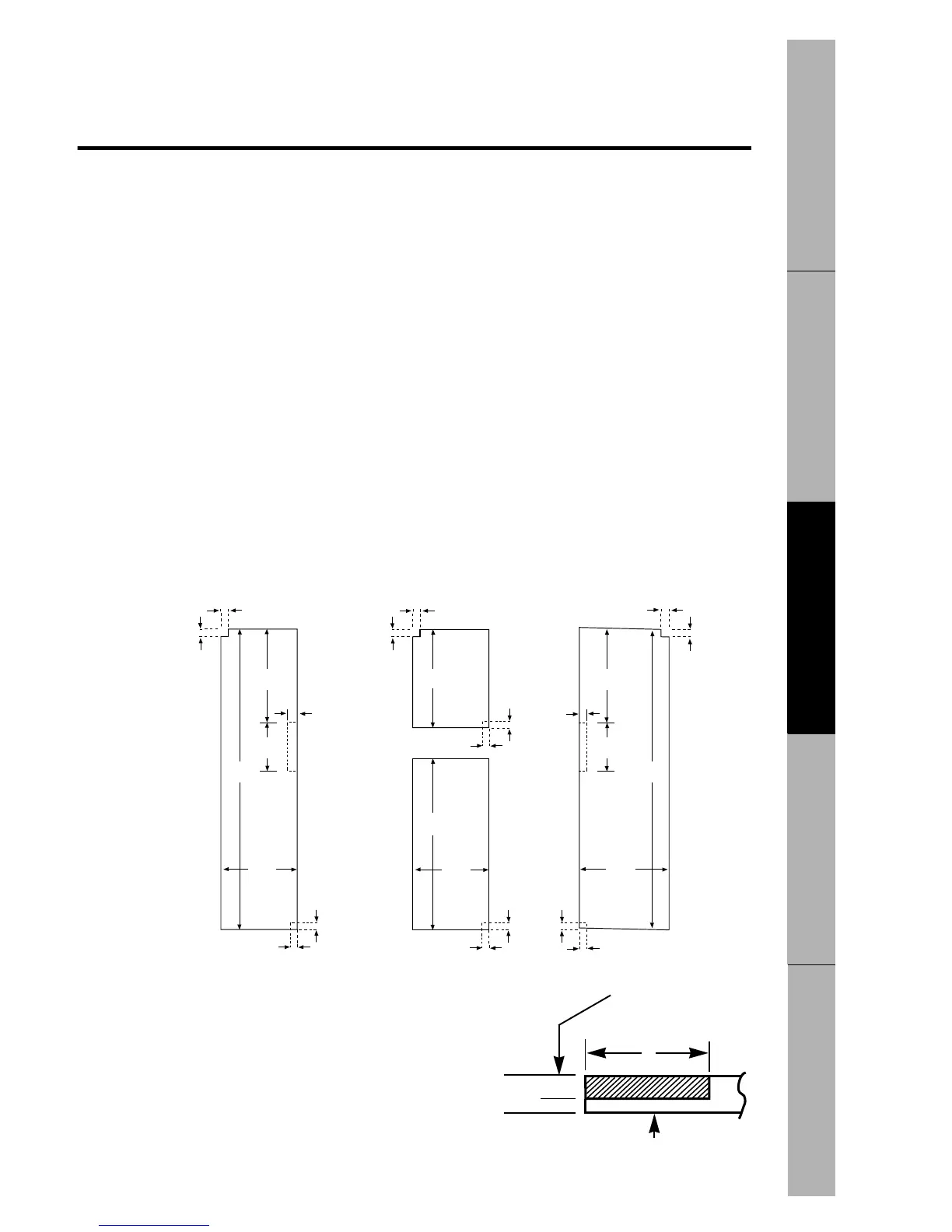
Dimensions
Wood panels need to be cut to the following specifications.
The areas at the top of the panels need
to be cut out of the panels. All other
dotted lines indicate areas that must be
routed out about 3/16 (5 mm) on the
back side of panels 1/4 (6 mm) thick
or more. For panels less than 1/4
(6 mm) thick, these areas can be cut
out of the filler panels.
Care of Pre-Cut Panels
Clean these panels using an anti-static cleaner or a mild detergent
and water. (Look for anti-static cleaner in electronic or computer departments.)
Rinse thoroughly and blot dry with a clean, damp cloth or chamois. Do not use
paper towels to wash or dry the panels. Do not use cleaners that contain solvents,
such as ammonia, because they can damage the panels.
Shallow scratches and abrasions can be corrected with a good grade of hard
automobile paste wax. Do not use a cleaner/wax combination. The wax will
fill in any minor surface scratches and will help to maintain the luster of the
panels. Apply the wax sparingly and buff lightly with a clean, soft cloth using
a circular motion.
Freezer Panel
Without Dispenser
Example of Routing
Freezer Panel
With Dispenser Fresh Food Panel
Cut out Cut out Cut out
7/32 7/32 7/32
1
1
1
1
1/2
1
1/4
3/16
1
2 2 2
18
3
/
8
18
13
/
16
18
3
/
8
14
1
/
2
14
1
/
2
19
5
/
16
34
5
/
16
14
5
/
8
14
5
/
8
67
1
/
8
67
1
/
8
3/32 3/32 3/32
FRONT FRONT FRONT
1
Front
Depth of material to
be routed out

Table of Contents

Related product manuals