EasyManua.ls Logo

Gearbox BL250D - Page 9

Gearbox BL250D
33 pages
Print Icon
To Next Page IconTo Next Page
To Next Page IconTo Next Page
To Previous Page IconTo Previous Page
To Previous Page IconTo Previous Page
Loading...
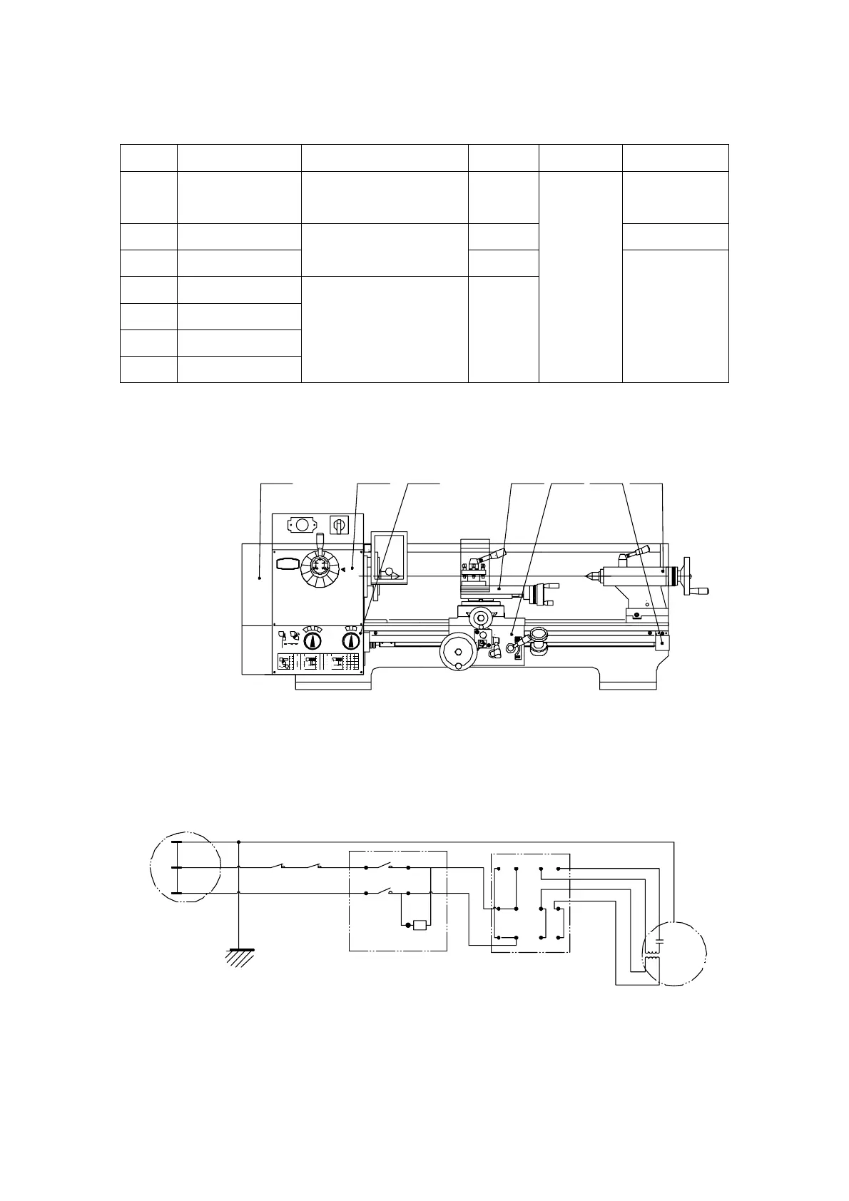
6LUBRICATION
Serial Parts Lub. parts Means Oil type Lub. Period
1 Change gear box
Change gears, oil
windows
Oil gun Once per shift
2 Headstock splash 60 days
3 Feeding box
Gears, bearings
Oil rope
4 toolpost
5 Worktable
6 bedway
7 Tailstock
Leadscrew, guideway Oil gun
Machine
oil
Once per shift
) Before and after operation, all the lubrication points and surface
should be oiled.
1
2
C
B
A
1
2
3
4
5
A B C A B C A B C
5
4
3
2
1
5
4
3
2
1
5
4
3
2
1
0.50 1.00 2.50
0.40
0.35
0.30
0.25
0.80
0.70
0.60
0.50
2.00
1.75
1.50
1.25
48 24
60 30 12
80 40 16
96 48
mm n/1″
mm
CJM250
0.035 0.07 0.175
0.045 0.09 0.225
0.05 0.10 0.25
0.06 0.12 0.30
0.075 0.15 0.375
O
F R
1 2 3 4 75 6
Pic 6Lubrication
7Electrical chart
U
PE
K1 K2
PE
PE
7
U2
23 24
13 14
A1
8
6 5
4 2 1 3
U1
V1
12 10 9 11
V2
plug
machine body
switch
L
N
motor
magnetic switch