EasyManua.ls Logo

gefran 55 - Page 3

gefran 55
4 pages
Print Icon
To Next Page IconTo Next Page
To Next Page IconTo Next Page
To Previous Page IconTo Previous Page
To Previous Page IconTo Previous Page
Loading...
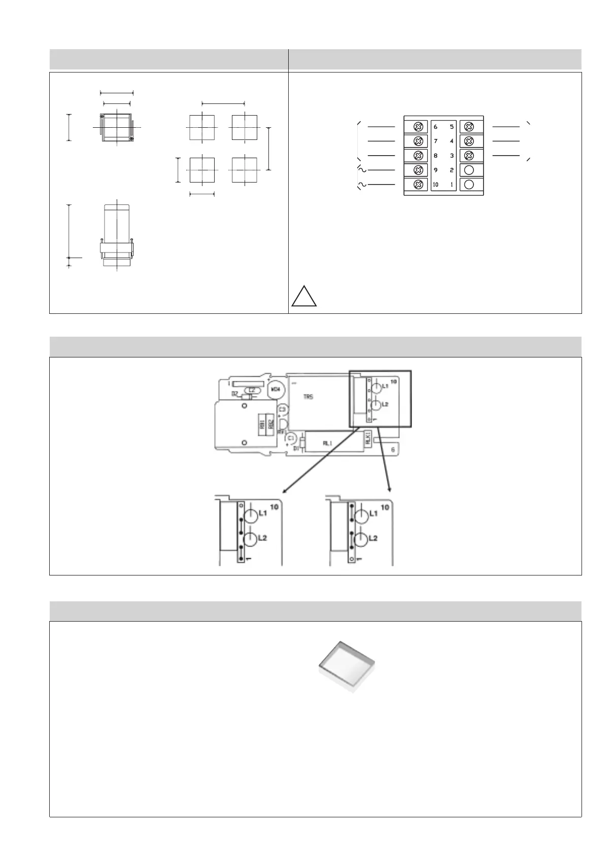
CONNECTION DIAGRAMDIMENSIONS AND CUT-OUT
POWER SUPPLY SELECTION
ACCESSORIES - PROTECTION IN SILICON RUBBER
48x48 (1/16 DIN)
Order code 51183
The transparent faceplate protection cover in silicon rubber performs the double function:
ESD protection (electrostatic discharges) in conformity to EC standards
IP65 frontal protection from dust.
ATTENTION: To set the Full Scale or Set functions, through the frontal decades, remove the protection cover and
work against preventive discharge or through a non-conductive tool (isolated screw-driver);
replace the cover when finishing.
Power supply board
Position 1
48 Vac, 220 Vac, 240 Vac
Position 2
24 Vac, 110 Vac, 120 Vac
Dimensions: 48x48mm (1/16 DIN), depth 100mm
59
48
70
45
45
70
48
100
10
NC
C
NO
NO
C
NC
OUT2
(RELAY 2)
No connected
PWR
SUPPLY
!
Apply users manual warnings for a correct installation
OUT1
(RELAY 1)
No connected
8

Related product manuals