EasyManua.ls Logo

Gemm BASIC Series - Page 87

Gemm BASIC Series
Print Icon
To Next Page IconTo Next Page
To Next Page IconTo Next Page
To Previous Page IconTo Previous Page
To Previous Page IconTo Previous Page
Loading...
BRS Rev00-MULTI 05-2014 pag. 87
2 DESCRIPTION DE LA MACHINE
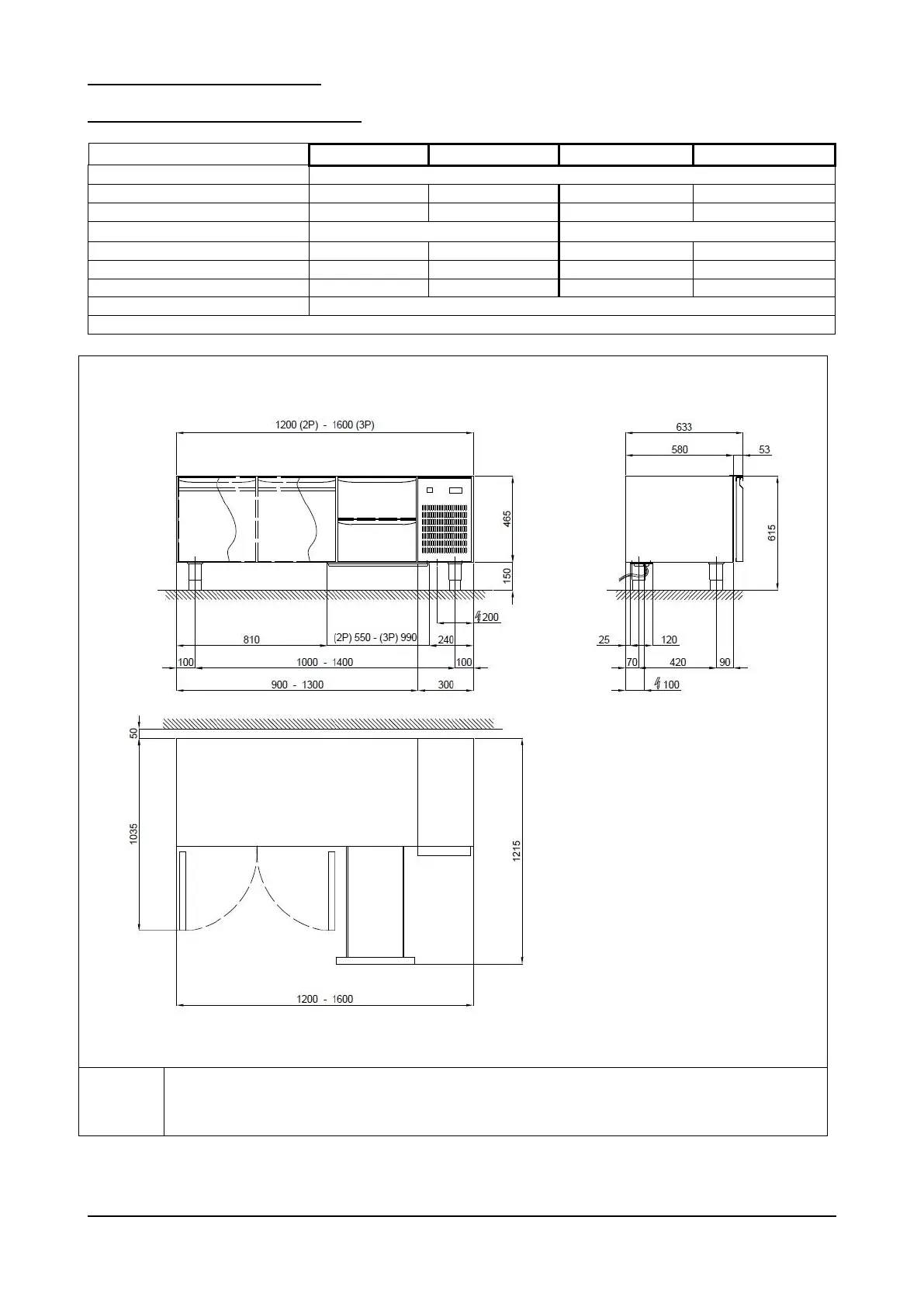
2.1 CARACTERISTIQUES TECHNIQUES
Modèle
BRS - 120
BRS - 160
BRSBT - 120
BRSBT - 160
Dimensions externes
cm
120 (2P) / 160 (3P) x 63 x 62h
Poids
kg
n.d.
n.d.
n.d.
n.d.
Contenance
lt
170
265
170
265
Température interne cellule
°C
-2 / +8
-18 / -15
Gaz
gr
R 134 a 170
R 134 a 240
R 404 a 290
R 404 a 260
Puissance compresseur
W
230
440
230
440
Puissance max absorbée
W
280
555
280
555
Voltage
Volt 1x230 ~ 50 Hz
Tab. 1/a
R
Alimentazione elettrica: cavo 3x1.5 mm
2
completo di spina Schuko; L=4000 mm
Electricity supply: 3x1.5 mm
2
wire complete with Schuko plug; L=4000 mm
Elektrischer Stromanschluss: Kabel 3x1,5 mm
2
komplett mit Schukostecker; L=4000 mm
Alimentation électrique: câble 3x1.5 mm
2
avec fiche Schuko; L=4000 mm
Fig. 2/a

Related product manuals