EasyManua.ls Logo

Gillette Generators SP-200 - Page 14

Gillette Generators SP-200
30 pages
Print Icon
To Next Page IconTo Next Page
To Next Page IconTo Next Page
To Previous Page IconTo Previous Page
To Previous Page IconTo Previous Page
Loading...
PAGE 14
TYPICAL EMERGENCY GENERATOR INSTALLATION PRACTICES
FOR “OPEN” (NON-SELF ENCLOSED) GENERATOR
A standby emergency power systems will give years
of dependable service when installed properly.
Incorrect installations can cause continuing service
problems and may result in harm to humans. It is the
responsibility of the owner or operator to know and
understand the correct installation methods. It is of
particular importance to know safe methods
especially, when installing an open generator inside
a building. Following is a partial list of
recommendations:
1) The generator building must not be inhabited by
humans or animals.
2) The building floor must be cement and capable of
supporting generator weight, the running vibration,
and any generator associated equipment. If in doubt,
have the floor load carrying capacity tested by
specialist. A heavy equipment lifting contractor
should be consulted for this task.
3) The generator engine requires a certain amount of
cooling air, which changes with different generator
KW sizes. The CFM cooling air requirement, if
insufficient, will cause early, automatic shutdown of
complete generator set.
4) Generator operating noise is high, so quieting
devices may be desirable: double walled room,
sound deadening materials on wall, hospital grade
muffler, etc.
5) Building code and safety requirements for open
gen-set operation within a building are important to
know and compliance to the codes, are essential:
National Electric Code, Articles: 230, 250, 245, 517,
and 700.
National Fire Protection Association (NFPA)
 #37—Stationary Combustion Engines and Gas
Turbines.
 #99—Essential Electrical Systems for Health Care
Facilities.
 #101-Life Safety Code Number Systems.
 #110-1985 Emergency and Standby Power
Systems.
Local applicable codes (consult local building
inspector or fire department).
6) Generator room size: Room should be dedicated
for only generator use, not for miscellaneous storage,
work area, or any type of habitation.
7) Specialized controls, transfer switches, and other
generator required equipment may be installed in
generator room, depending on local codes.
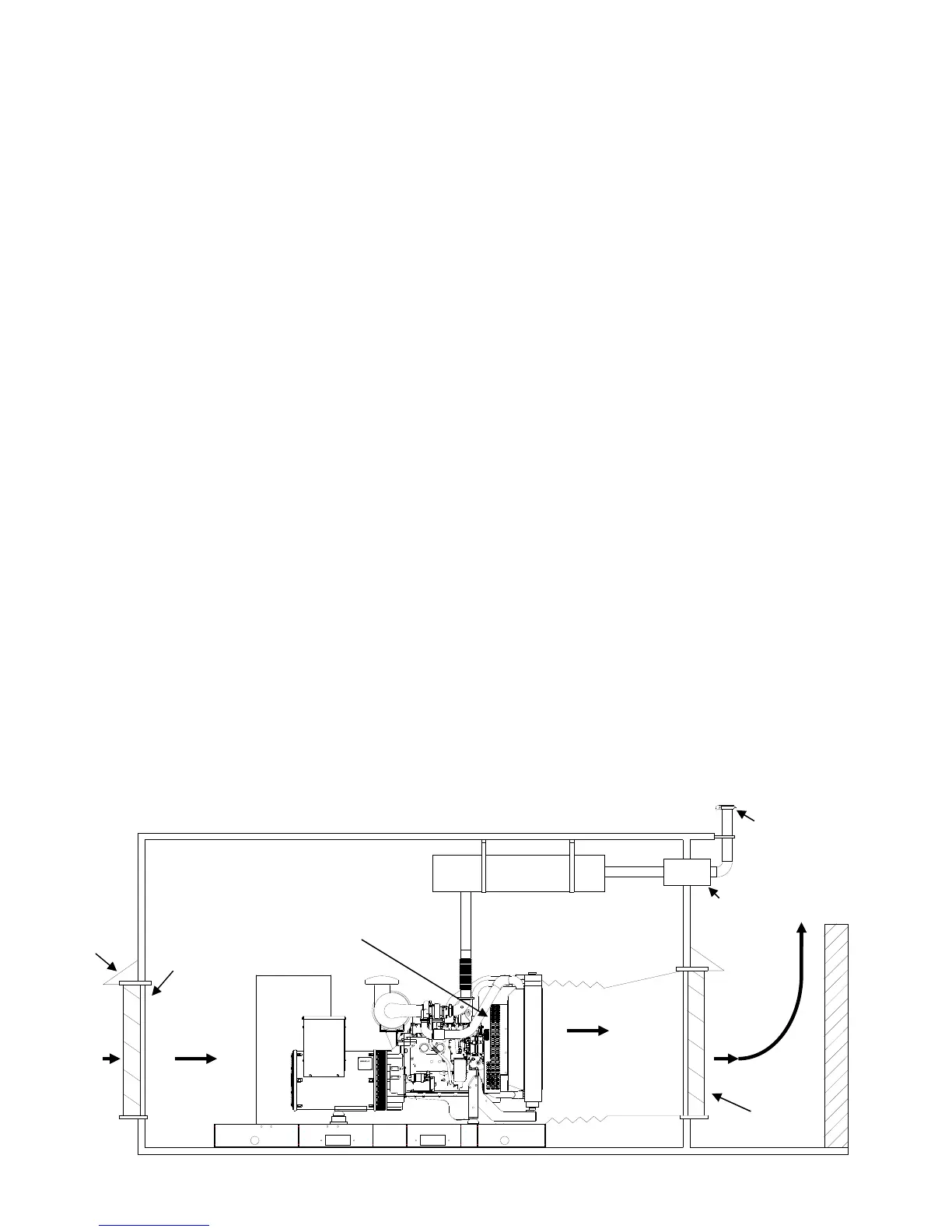
A drawing showing a typical indoor generator
installation is shown at bottom of page.
MUFFLERS: There are (4) types of mufflers:
Industrial, Residential, Critical, and Hospital grade.
GILLETTE does not furnish the muffler as standard
equipment due to varying demand for the different
grades and type of required mounting of each
application.
FIGURE 5
Hospital
Muffler
Exhaust
Thimble
Rain Cap
Noise Barrier
Cool Air
Intake
Rain
Hood
Automatic
Louvers
Air Flow
Flexible Duct
Air Flow
Hot Air
Exhaust
Automatic
Louvers
Engine Driven
Cooling Fan