EasyManua.ls Logo

Globe 50586 - Page 12

Globe 50586
15 pages
Print Icon
To Next Page IconTo Next Page
To Next Page IconTo Next Page
To Previous Page IconTo Previous Page
To Previous Page IconTo Previous Page
Loading...

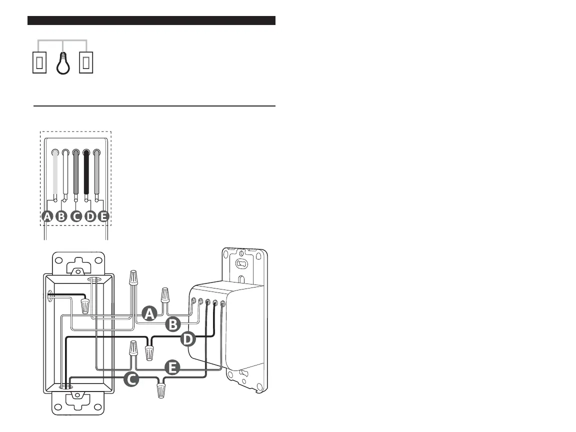
Connexion à deux voies
1 INTERRUPTEURS INTELLIGENTS
Pour la rénovation :
1. Retirez du mur la plaque murale existante ainsi que les vis après avoir mis
l’alimentation hors tension
2. Retirez le gradateur existant du mur et apposez les étiquettes
autocollantes appropriées sur les fils (comprises dans la boite).
3. S’assurer que les fils suivants sont disponibles :
a. Interrupteur intelligent :
i. 1 fil de phase (noir)
ii. 1 fil de mise à la terre (vert, ou jaune/vert)
iii. 2 fils neutres (blanc)
iv. 1 fil de charge (rouge)
v. 1 fil de navette (brun)
b. Interrupteur standard :
i. 1 fil de phase (noir)
ii. 1 fil de mise à la terre (vert, ou jaune/vert)
iii. 1 fil de navette (brun)
4. Déconnectez le câblage de l’ancien boîtier.
5. Connecter l’interrupteur Wi-Fi aux fils existants :
a. Connecter le fil de mise à la terre (vert, A) de l’interrupteur intelligent à
celui de l’interrupteur standard, puis à celui du panneau électrique.
b. Connecter le fil de phase (noir, D) de l’interrupteur intelligent à celui de
l’interrupteur standard, puis à celui du panneau électrique.
c. Connecter les fils neutres (blanc, B) de l’interrupteur et du luminaire à
celui du panneau électrique.
d. Connecter le fil de charge (rouge, E) de l’interrupteur à celui du
luminaire.
e. Connecter le fil de navette (brun, C) du nouvel interrupteur à celui de
l’interrupteur existant.
6. Assurez-vous que les écrous de fil inclus sont bien fixés à chaque fil.
7. Insérez la nouvelle gradateur dans le mur. Couvrez avec la plaque murale
et les vis fournies.
8. Insert the new switch into the wall. Cover with the wall plate and screws
provided.