EasyManua.ls Logo

Glow Fire Jupiter - Page 66

Glow Fire Jupiter
91 pages
Print Icon
To Next Page IconTo Next Page
To Next Page IconTo Next Page
To Previous Page IconTo Previous Page
To Previous Page IconTo Previous Page
Loading...
66
Informacji
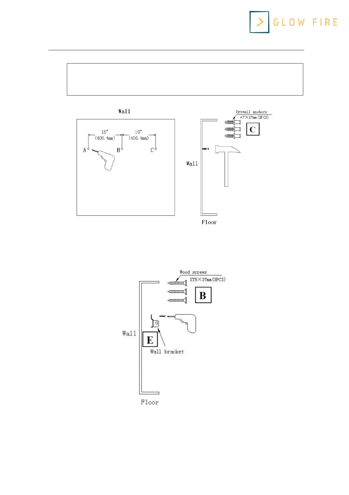
Elementy mocujące ściany zawarte w tym kominku są do użytku tylko z
drewnianą ścianą pokryta płyt kartonowo-gipsowych. W przypadku
ścian betonowych lub innych rodzajów ścian skonsultuj się ze
specjalistą, aby uzyskać najlepsze metody mocowania.
KROK 2:
Za pomocą trzech drewnianych śrub (B) przymocować wspornik ścienny drewnianymi śrubami i
zatyczkami do płyt kartonowo-gipsowych, dokręć wszystkie śruby.
KROK 3:
Niech dwie osoby podnieść kominek i włożyć haki (2 haki z tyłu kominka) na ścianie.

Related product manuals