EasyManua.ls Logo

Goodman ARUF - AEPF Model Dimensions

Goodman ARUF
42 pages
Print Icon
To Next Page IconTo Next Page
To Next Page IconTo Next Page
To Previous Page IconTo Previous Page
To Previous Page IconTo Previous Page
Loading...
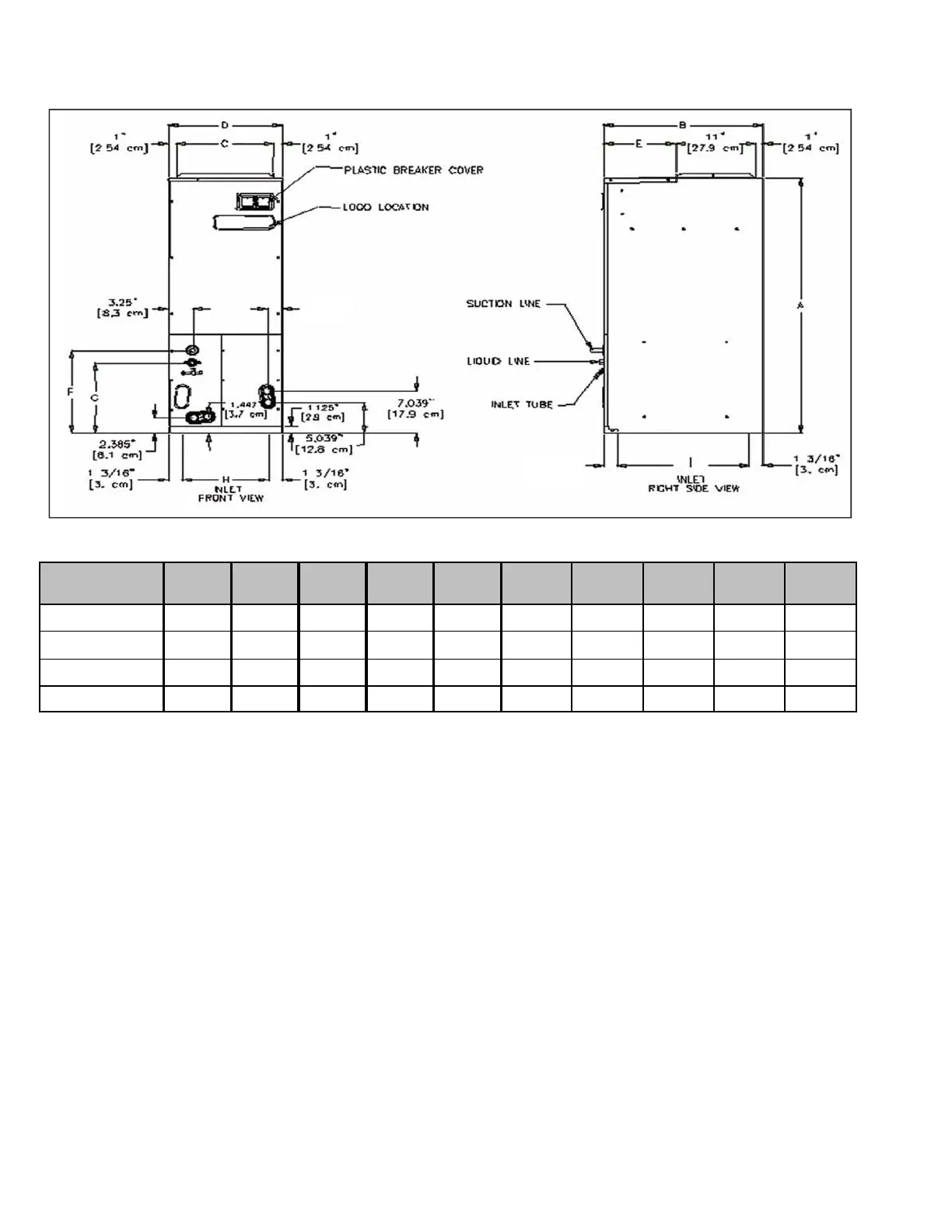
PRODUCT DIMENSIONS
12
AEPF
J
2 ȹ
[7.30 cm]
Model A B C D E F G H I J
AEPF18301/16
46 3/4" 22" 17 1/2" 19 1/2" 10' 14 1/2" 11 15/16" 17 1/8" 17 15/16" 2"
AEPF30361/16
53 1/4" 24" 20" 22" 12" 19 5/8" 11 15/16" 19 5/8" 19 15/16" 1 13/16"
AEPF31371/16
53 1/4" 24" 20" 22" 12" 19 5/8" 11 15/16" 19 5/8" 19 15/16" 1 13/16"
AEPF42601/16
53 1/4" 24" 20" 22" 12" 19 5/8" 11 15/16" 19 5/8" 19 15/16" 1 13/16"

Other manuals for Goodman ARUF

Related product manuals