EasyManua.ls Logo

Goodman ARUF - ASPF Wiring Diagram (AA Models)

Goodman ARUF
42 pages
Print Icon
To Next Page IconTo Next Page
To Next Page IconTo Next Page
To Previous Page IconTo Previous Page
To Previous Page IconTo Previous Page
Loading...
WIRING DIAGRAMS
36
HIGH VOLTAGE!
DISCONNECT ALL POWER BEFORE SERVICING OR INSTALLING THIS
UNIT. MULTIPLE POWER SOURCES MAY BE PRESENT. FAILURE TO
DO SO MAY CAUSE PROPERTY DAMAGE, PERSONAL INJURY OR DEATH.
Wiring is subject to change. Always refer to the wiring diagram on the unit for the most up-to-date wiring.
BK
BL
BK
L1 L2
BK
BK
HTR1
TLHTR2
RD
9
8
7
R
WH
BL
PU
TL
BK
5
6
3
4
BK
RD
1
2
WH
BK
L2L1
BK
RD
RD
RD
BK
R
HTR1 TL
L1
BK
6
8
9
7
2
RD
PU
4
5
3
BK
RD
1
BK
L2 L1 L2
RD
YL
M1
M2
BK
RD
YL
RD
R1
M4
RD
BK
M3
HTR3
TL
HTR2
HTR1
TL
TL
PU
M2
R2
YL
M1
BL
WH
BR
BL
RD
BK
RD
BK
TL
HTR1
BK
HTR4
HTR3
HTR2
BK
RD
9
7
8
L2L1 L1 L2
2
5
6
3
4
1
RD
M1
YL
BK
M2
BL
WH
6
BL
RD
BK
YL
8
9
7
M6
M5
M3
R1
M4
RD
PU
M7
R2
M8
BL
TL
TL
TL
YL
BL
RD
BK
RD
BL
BR
4
5
3
2
BK
1
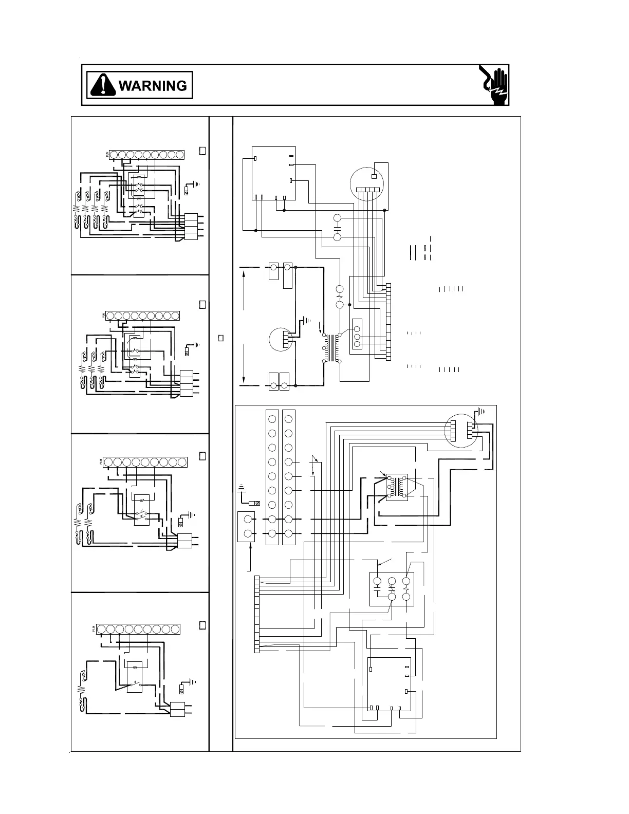
ONE (1) ELEMENT ROWS TWO (2) ELEMENT ROWS THREE (3) ELEMENT ROWS FOUR (4) ELEMENT ROWS
FL
M1
M2
FL
FL
M1
M2
M3
M4
FL
FL
FL
FL
FL
FL
FL
USE COPPER OR ALUMINUM WIRE
COPPER OR ALUMINUM
POWER SUPPLY
(SEE RATING PLATE)
USE MIN. 75°C FIELD WIRE
EQUIPMENT GROUND
BL
EM
RD
BL
5
BK
C
BK
PLF
BK
1
RD
2
3
240
24V
4
1 2 3
TR
RD
SEE
NOTE 4
BL
BR
4 5
WH
6789
PLM
GRD
1
BK
2
3
RD
L2
L1
4 5 678 9
0140A00034
4) Brown and white wires are used with Heat Kits only.
PLM
PLF
TR
FACTORY WIRING
FIELD WIRING
1) Red wires to be on transformer terminal "3" for 240 volts and on terminal "2" for 208 volts.
2) See composite wiring diagrams in installation instructions
for proper low voltage wiring connections.
Notes:
DELAY RELAY
RELAY
EVAPORATOR MOTOR
ELECTRONIC BLOWER TIME
TERMINAL BOARD
R
EM
EBTDR
TB
BK
RD
BL
YL
BLUE
BLACK
RED
YELLOW
COMPONENT CODE
BROWN
PURPLE
GREEN
PU
BR
GR
FEMALE PLUG CONNECTOR
MALE PLUG CONNECTOR
TRANSFORMER
HIGH VOLTAGE
LOW VOLTAGE
HIGH VOLTAGE
LOW VOLTAGE
PLF
2
COLOR CODE
TR
6
5
PLF
4
4
24V
5
SEE NOTE 1
1
2
3
EM
WIRING CODE
208/240 VOLTS
1
1
PLF
PLM
L1
PLM
2
L2
IF REPLACEMENT OF THE ORIGINAL WIRES
SUPPLIED WITH THIS ASSEMBLY IS NEC ESSARY,
USE WIRE THAT CONFORMS TO THE
NATIONAL ELECTRIC CODE.
SEE NOTE 1
FL FUSE LINK
TL THERMAL LIMIT
HTR HEAT ELEMENTS
CR CONTROL RELAY
TERMINAL BLOCK SHOWN
FOR 50HZ MODELS ONLY
3) Confirm speed tap selected is appropriate for application. If speed tap needs
to be changed, connect red wire from terminal 4 of CR relay to appropriate tap
at TB
MARK ACCORDING TO NUMBER OF HEATER ELEMENT ROWS INSTALLED. NO MARK INDICATES NO HEAT KIT INSTALLED.
KIT COMBINATION ON THIS UNIT'S S&R PLATE. AFTER INSTALLING OPTIONAL HEAT KIT, MARK AN "X" IN THE PROVIDED ABOVE.
NOTE: WHEN INSTALLING HEATER KIT, ENSURE SPEED TAP DOES NOT EXCEED MINIMUM BLOWER SPEED (MBS) SPECIFIED FOR THE AIRHANDLER/HEAT ER
WHITEWH
A B
17
4
CR
R CGW1W2 Y2Y1 O
SEE NOTE 2
21 43 5
NC GL
41 32 5DH
XFMR-C
C
R
EBTDR
XFMR-R
RD
RD
BL
BL
BL
BL
BR
WH
BL
RD
RD
COM
NO NC
G
GR
RD
RD
BL
GR
GR
RD
RD
RD
BL
BK
RD
SEE
NOTE 3
C LGN
W2R W1C G 4Y1 OY2 1DH 32 5
B
A
NO NC
G
C
XFMR-C
COM
EBTDR
XFMR-R
R
1
C
EM
2
4
3
5
7 4
CR
EQUIPMENT GROUND
USE COPPER WIRE
ASPF******AA
COPPER POWER SUPPLY
(SEE RATING PLATE)
USE MIN. 75°C FIELD WIRE

Other manuals for Goodman ARUF

Related product manuals