EasyManua.ls Logo

Goodman GMEC96 - Page 72

Goodman GMEC96
72 pages
Print Icon
To Previous Page IconTo Previous Page
To Previous Page IconTo Previous Page
Loading...
72
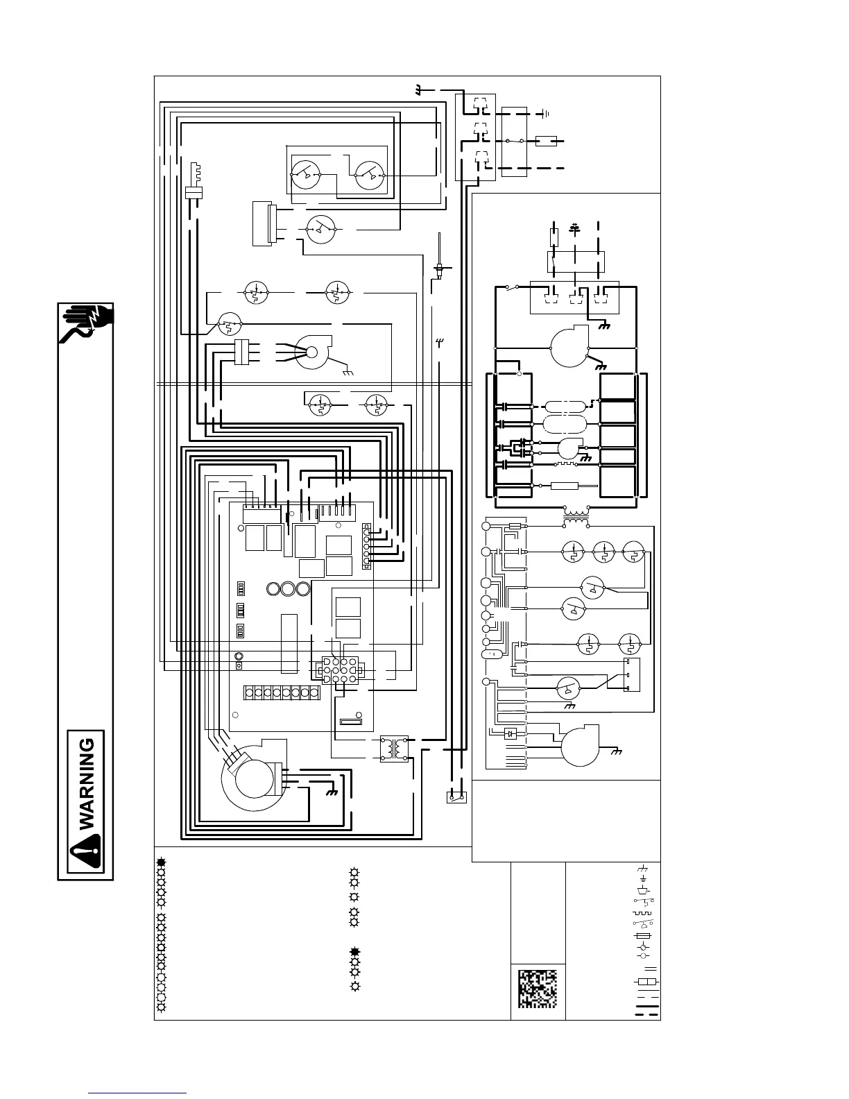
HIGH VOLTAGE!
DISCONNECT ALL POWER BEFORE SERVICING OR INSTALLING THIS
UNIT. MULTIPLE POWER SOURCES MAY BE PRESENT. FAILURE TO
DO SO MAY CAUSE PROPERTY DAMAGE, PERSONAL INJURY OR DEATH.
WIRING DIAGRAMS
Wiring is subject to change. Always refer to the wiring diagram on the unit for the most up-to-date wiring.
*MEC96 - REV AC *CEC96 - REV AA
G
N
G
N
D
C
O
L
O
R
C
O
D
E
S
:
G
N
G
R
E
E
N
R
D
R
E
D
G
Y
G
R
A
Y
P
U
P
U
R
P
L
E
P
K
P
I
N
K
B
K
B
L
A
C
K
B
L
B
L
U
E
W
H
W
H
I
T
E
B
R
B
R
O
W
N
Y
L
Y
E
L
L
O
W
O
R
O
R
A
N
G
E
G
N
D
B
K
R
D
GN
GN
24
VAC
115
VAC
G
N
D
GRD
BK
Y
L
O
Y
W
1
W
2
R
G
C
T
W
I
N
N
.
E
.
C
.
C
L
A
S
S
2
W
I
R
E
0
1
4
0
F
0
2
3
4
7
-
A
B
R
P
K
G
Y
O
R
GN
BL
Y
L
S
1
BK
HUM
X-FMR
L1
CIRC-H
EAC-H
52
1
43
2
4
V
3
A
F
U
S
E
N
E
U
T
R
A
L
D
I
A
G
N
O
S
T
I
C
L
E
D
'
S
5 CIRCUIT CONNECTOR
1
0
6
3
4
5
2
7
1
1
1
1
2
8
9
F
R
O
N
T
C
O
V
E
R
P
R
E
S
S
U
R
E
S
W
I
T
C
H
N
O
C
F
U
S
E
3
A
M
I
C
R
O
T
O
P
S
2
(
2
)
T
R
(
9
)
G
H
I
C
T
H
(
5
)
24V THERMOSTAT CONNECTIONS N.E.C.CLASS 2 WIRE
V
A
L
V
E
G
A
S
W
2
T
R
A
N
S
F
O
R
M
E
R
H
L
I
(
6
)
Y
2
Y
1
H
L
O
(
1
1
)
G
N
D
(
4
)
O
M
V
L
(
7
)
N
O
W
1
C
R
C
O
N
T
R
O
L
S
A
U
T
O
R
E
S
E
T
A
U
X
I
L
I
A
R
Y
L
I
M
I
T
L
I
M
I
T
C
O
N
T
R
O
L
S
M
A
N
U
A
L
R
E
S
E
T
R
O
L
L
O
U
T
P
R
E
S
S
.
S
W
T
I
C
H
H
I
G
H
F
I
R
E
C
S
W
I
T
C
H
L
O
W
F
I
R
E
P
R
E
S
S
M
V
H
(
1
)
D
E
H
U
M
G
N
D
P
S
1
(
1
2
)
L
I
M
I
T
C
O
N
T
R
O
L
A
U
T
O
R
E
S
E
T
P
R
I
M
A
R
Y
2
4
V
A
C
N
O
P
M
M
V
C
(
8
)
I
N
T
E
G
R
A
T
E
D
C
O
N
T
R
O
L
M
O
D
U
L
E
C
B
L
W
R
A
I
R
I
N
D
O
O
R
C
I
R
C
U
L
A
T
O
R
R
T
O
M
I
C
R
O
T
O
T
O
+
V
D
C
E
A
C
H
U
M
I
D
I
F
I
E
R
I
D
N
E
U
T
R
A
L
W
I
R
I
N
G
T
O
U
N
I
T
L
INTEGRATEDCONTROL MODULE
H
O
T
S
U
R
F
A
C
E
G
N
D
B
L
W
R
N
E
U
T
R
A
L
W
A
R
N
I
N
G
:
G
R
O
U
N
D
E
D
.
O
V
E
R
C
U
R
R
E
N
T
P
R
O
T
E
C
T
I
O
N
D
E
V
I
C
E
M
U
S
T
B
E
P
R
O
P
E
R
L
Y
S
W
I
T
C
H
N
E
U
T
R
A
L
E
L
E
C
T
R
O
N
I
C
A
I
R
I
G
N
I
N
D
H
I
D
I
S
C
O
N
N
E
C
T
F
S
P
O
L
A
R
I
Z
E
D
A
N
D
N
E
U
T
R
A
L
L
I
N
E
N
E
U
T
R
A
L
J
U
N
C
T
I
O
N
B
O
X
B
L
W
R
I
N
D
L
O
N
I
N
D
O
O
R
A
I
R
C
L
E
A
N
E
R
H
U
M
D
O
O
R
N
E
U
T
R
A
L
INTEGRATEDCONTROL MODULE
T
O
1
1
5
V
A
C
/
1
Ø
/
6
0
H
Z
P
O
W
E
R
S
U
P
P
L
Y
W
I
T
H
1
1
5
V
A
C
H
U
M
-
O
U
T
I
G
N
I
T
E
R
C
I
R
C
U
L
A
T
O
R
B
E
F
O
R
E
S
E
R
V
I
C
I
N
G
.
F
L
A
M
E
S
E
N
S
O
R
D
I
S
C
O
N
N
E
C
T
P
O
W
E
R
L
I
N
E
G
N
D
T1
T2
OR
BR
BK
WH
WH
WH
WH
PU
GY
YL
OR
BR
PK
RD
WH
BK
P
U
GY
B
R
OR
RD
OR
BL
RD
WH
WH
L
I
N
E
N
O
L
I
M
I
T
C
O
N
T
R
O
L
A
U
X
I
L
I
A
R
Y
A
U
T
O
R
E
S
E
T
PK
WARNING:DISCONNECT
TRANSFORMER
40 VA
PU
G
Y
N
N
O
3
1
S
W
I
T
C
H
P
R
E
S
S
U
R
E
L
O
W
F
I
R
E
S
E
N
S
O
R
F
L
A
M
E
P
R
E
S
S
U
R
E
S
W
I
T
C
H
F
R
O
N
T
C
O
V
E
R
C
TO UNIT MUST BE
BL
RD
AND GROUNDED.
1
JUNCTION BOX
WH
SWITCH (PRESS.)
FIELD SPLICE
FIELD GND
3
GN
BL
B
R
WH
N
O
L
I
M
I
T
C
O
N
T
R
O
L
A
U
T
O
R
E
S
E
T
P
R
I
M
A
R
Y
WH
1
OR
3
0
k
B
T
U
A
N
D
4
0
k
B
T
U
)
C
O
N
T
R
O
L
S
(
S
I
N
G
L
E
C
O
N
T
R
O
L
O
N
M
A
N
U
A
L
R
E
S
E
T
R
O
L
L
O
U
T
L
I
M
I
T
W
H
L
PU
GY
BK
S
W
I
T
C
H
A
S
S
E
M
B
L
Y
I
D
B
L
O
W
E
R
T
W
O
-
S
T
A
G
E
P
R
E
S
S
U
R
E
OR
WH
SERVICING. WIRING
EQUIPMENT GND
INT
E
RNAL TO
S
W
I
T
C
H
P
R
E
S
S
U
R
E
H
I
G
H
F
I
R
E
PROT. DEVICE
INTEGRATED CONTROL
PK
PU
PLUG CONNECTION
2
4
B
K
C
D
O
O
R
O
P
E
N
)
(
O
P
E
N
W
H
E
N
D
O
O
R
S
W
I
T
C
H
C
O
M
P
A
R
T
M
E
N
T
B
L
O
W
E
R
SWITCH (TEMP.)
G
N
D
1
BLOWER
CIRCULATOR
JUNCTION
OR
4
0
V
A
Ø
/
6
0
H
Z
D
I
S
C
O
N
N
E
C
T
(
W
H
I
T
E
R
O
D
G
E
R
S
)
G
A
S
V
A
L
V
E
T
W
O
S
T
A
G
E
O
V
E
R
C
U
R
R
E
N
T
C
O
N
N
E
C
T
O
R
2
C
I
R
C
U
I
T
LOW VOLTA
GE
(24V)
YL
G
N
D
WH
CHASSIS GROUND
2
3
I
G
N
I
T
E
R
S
U
R
F
A
C
E
H
O
T
2
YL
PU
C
2
C
B
L
O
W
E
R
D
R
A
F
T
I
N
D
U
C
E
D
BK
PM
BK
B
L
O
W
E
R
C
O
M
P
A
R
T
M
E
N
T
1
1
5
V
A
C
/
1
OVERCURRENT
BK
HARNESS
ECM MTR
HI
TERMINAL
OR
POWER BEFORE
IGNITER
R
D
BK
T
O
RD
P
O
W
E
R
S
U
P
P
L
Y
W
I
T
H
B
U
R
N
E
R
C
O
M
P
A
R
T
M
E
N
T
P
R
O
T
E
C
T
I
O
N
D
E
V
I
C
E
PROPERLY POLARIZE
D
R
D
B
K
O
R
B
L
LOW VOLTAGE FIELD
HI VOLTAGE (115V)
HI VOLTAGE FIELD
R
A
P
I
D
=
T
W
I
N
N
I
N
G
E
R
R
O
R
S
T
E
A
D
Y
O
N
=
I
N
T
E
R
N
A
L
G
V
E
R
R
O
R
,
M
I
C
R
O
A
N
D
F
R
E
Q
U
E
N
C
Y
C
H
E
C
K
1
F
L
A
S
H
=
F
L
A
M
E
S
E
N
S
E
D
W
H
E
N
N
O
F
L
A
M
E
S
H
O
U
L
D
B
E
P
R
E
S
E
N
T
4
F
L
A
S
H
E
S
=
O
P
E
N
L
I
M
I
T
S
W
I
T
C
H
0
4
3
2
1
R
E
D
L
E
D
F
L
A
S
H
C
O
D
E
2
F
L
A
S
H
E
S
=
P
R
E
S
S
U
R
E
S
W
I
T
C
H
S
T
U
C
K
C
L
O
S
E
D
/
I
N
D
U
C
E
R
E
R
R
O
R
3
F
L
A
S
H
E
S
=
1
S
T
S
T
A
G
E
P
R
E
S
S
U
R
E
S
W
I
T
C
H
S
T
U
C
K
O
P
E
N
/
I
N
D
U
C
E
R
E
R
R
O
R
5
F
L
A
S
H
E
S
=
O
P
E
N
R
O
L
L
O
U
T
/
O
P
E
N
F
U
S
E
D
E
T
E
C
T
E
D
6
F
L
A
S
H
E
S
=
P
R
E
S
S
U
R
E
S
W
I
T
C
H
C
Y
C
L
E
L
O
C
K
O
U
T
7
F
L
A
S
H
E
S
=
E
X
T
E
R
N
A
L
L
O
C
K
O
U
T
(
R
E
T
R
I
E
S
)
9
6
5
7
8
8
F
L
A
S
H
E
S
=
E
X
T
E
R
N
A
L
L
O
C
K
O
U
T
(
R
E
C
Y
C
L
E
S
)
9
F
L
A
S
H
E
S
+
G
R
O
U
N
D
I
N
G
O
R
R
E
V
E
R
S
E
D
P
O
L
A
R
I
T
Y
1
0
F
L
A
S
H
E
S
=
G
A
S
F
L
O
W
W
I
T
H
N
O
C
A
L
L
F
O
R
H
E
A
T
1
1
F
L
A
S
H
E
S
=
L
I
M
I
T
S
W
I
T
C
H
O
P
E
N
-
B
L
O
W
E
R
F
A
I
L
U
R
E
1
2
F
L
A
S
H
E
S
=
I
G
N
I
T
O
R
R
E
L
A
Y
F
A
I
L
U
R
E
1
1
1
0
1
2
3
D
O
U
B
L
E
F
L
A
S
H
E
S
=
2
N
D
S
T
A
G
E
P
R
E
S
S
U
R
E
S
W
I
T
C
H
S
T
U
C
K
O
P
E
N
/
I
N
D
U
C
E
R
E
R
R
O
R
3
F
L
A
S
H
E
S
=
W
2
P
R
E
S
E
N
T
W
I
T
H
N
O
W
1
2
F
L
A
S
H
E
S
=
N
O
R
M
A
L
O
P
E
R
A
T
I
O
N
W
I
T
H
C
A
L
L
F
O
R
2
N
D
S
T
A
G
E
H
E
A
T
1
F
L
A
S
H
=
N
O
R
M
A
L
O
P
E
R
A
T
I
O
N
W
I
T
H
C
A
L
L
F
O
R
1
S
T
S
T
A
G
E
H
E
A
T
(
W
1
)
2
4
3
1
4
F
L
A
S
H
E
S
=
Y
P
R
E
S
E
N
T
W
I
T
H
N
O
G
C
A
L
L
,
Y
L
O
P
R
E
S
E
N
T
W
I
T
H
N
O
G
C
A
L
L
A
M
B
E
R
L
E
D
F
L
A
S
H
C
O
D
E
R
A
P
I
D
=
L
O
W
F
L
A
M
E
S
E
N
S
E
C
U
R
R
E
N
T
R
A
P
I
D
=
N
O
R
M
A
L
O
P
E
R
A
T
I
O
N
W
I
T
H
C
A
L
L
F
O
R
F
A
N
(
G
)
S
T
E
A
D
Y
O
N
=
S
T
A
N
D
B
Y
1
F
L
A
S
H
=
N
O
R
M
A
L
O
P
E
R
A
T
I
O
N
W
I
T
H
C
A
L
L
F
O
R
L
O
W
S
T
A
G
E
C
O
O
L
(
Y
L
O
+
G
)
0
2
1
G
R
E
E
N
L
E
D
F
L
A
S
H
C
O
D
E
2
F
L
A
S
H
E
S
=
N
O
R
M
A
L
O
P
E
R
A
T
I
O
N
W
I
T
H
C
A
L
L
F
O
R
H
I
G
H
S
T
A
G
E
C
O
O
L
/
O
R
S
I
N
G
L
E
S
T
A
G
E
C
O
O
L
I
N
G
(
Y
+
G
)
0
1
.
S
E
T
H
E
A
T
A
N
T
I
C
I
P
A
T
O
R
O
N
R
O
O
M
T
H
E
R
M
O
S
T
A
T
A
T
0
.
7
A
M
P
S
.
N
O
T
E
S
:
2
.
M
A
N
U
F
A
C
T
U
R
E
R
'
S
S
P
E
C
I
F
I
E
D
R
E
P
L
A
C
E
M
E
N
T
P
A
R
T
S
M
U
S
T
B
E
U
S
E
D
W
H
E
N
S
E
R
V
I
C
I
N
G
.
M
U
S
T
B
E
R
E
P
L
A
C
E
D
I
T
M
U
S
T
B
E
R
E
P
L
A
C
E
D
W
I
T
H
W
I
R
I
N
G
M
A
T
E
R
I
A
L
H
A
V
I
N
G
A
T
E
M
P
E
R
A
T
U
R
E
R
A
T
I
N
G
O
F
A
T
L
E
A
S
T
1
0
5
°
C
.
U
S
E
C
O
P
P
E
R
C
O
N
D
U
C
T
O
R
S
O
N
L
Y
.
4
.
U
N
I
T
M
U
S
T
B
E
P
E
R
M
A
N
E
N
T
L
Y
G
R
O
U
N
D
E
D
A
N
D
C
O
N
F
O
R
M
T
O
N
.
E
.
C
.
A
N
D
L
O
C
A
L
C
O
D
E
S
.
5
.
T
O
R
E
C
A
L
L
T
H
E
L
A
S
T
6
F
A
U
L
T
S
,
M
O
S
T
R
E
C
E
N
T
T
O
L
E
A
S
T
R
E
C
E
N
T
,
D
E
P
R
E
S
S
S
W
I
T
C
H
F
O
R
M
O
R
E
T
H
A
N
2
S
E
C
O
N
D
S
W
H
I
L
E
I
N
S
T
A
N
D
B
Y
(
N
O
T
H
E
R
M
O
S
T
A
T
I
N
P
U
T
S
)
3
.
I
F
A
N
Y
O
F
T
H
E
O
R
I
G
I
N
A
L
W
I
R
E
A
S
S
U
P
P
L
I
E
D
W
I
T
H
T
H
E
F
U
R
N
A
C
E
S
3
S
2
T5
T3
T4
RD
COM
BK

Other manuals for Goodman GMEC96

Related product manuals