EasyManua.ls Logo

Gree GRS-CQ6.0Pd/NhG-K - Conexión del Circuito de Agua

Gree GRS-CQ6.0Pd/NhG-K
180 pages
To Next Page IconTo Next Page
To Next Page IconTo Next Page
To Previous Page IconTo Previous Page
To Previous Page IconTo Previous Page
Loading...
Bomba de calor aire-agua
34
Tamaño de las juntas
Descripción Rosca de tubería de conexión
Salida de agua caliente del depósito de agua BSP hembra de 1/2"
Entrada/salida de agua de recirculación del depósito de agua BSP hembra de 3/4"
Entrada de agua de refrigeración del depósito de agua BSP hembra de 1/2"
Junta de tubería BSP hembra de 3/4"
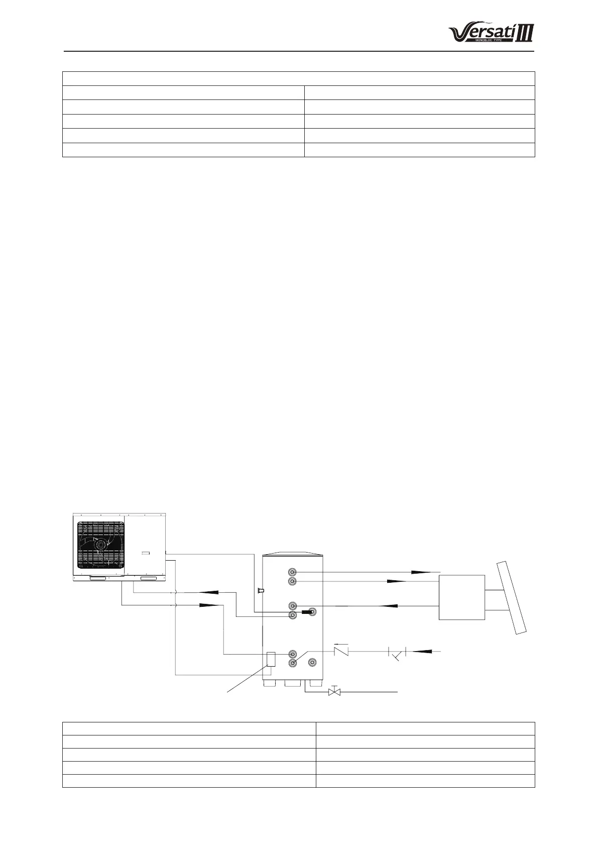
16.3 Conexión del circuito de agua
(1) Si la conexión entre el depósito de agua y la unidad interior debe atravesar una pared, practique un oricio de
φ70 para pasar la tubería de agua de recirculación. Si no se necesita el oricio, esto será innecesario.
(2) Preparación de tuberías: La tubería de entrada/salida de agua de recirculación deberá ser una tubería para agua
caliente, recomendándose el empleo de tubería de PPR con un diámetro exterior nominal de DN25 y de serie S2,5
(espesor de pared: 4,2 mm). La tubería de entrada de agua de refrigeración y la tubería de salida de agua caliente
del depósito de agua deberán ser tuberías para agua caliente, recomendándose el uso de tuberías de PPR con
un diámetro exterior nominal de DN20 y de serie S2,5 (espesor de pared: 3,4 mm). Si emplea otras tuberías con
aislamiento, consulte las dimensiones arriba indicadas para el diámetro exterior y el espesor de pared.
(3) Instalación de tuberías de entrada/salida de agua de recirculación: Conecte la entrada de agua de la unidad a
la salida de recirculación del depósito de agua y la salida de agua de la unidad a la entrada de recirculación del
depósito de agua.
(4) Instalación de las tuberías de entrada/salida de agua del depósito de agua: Deberán instalarse una válvula
antirretorno de seguridad, un ltro y una válvula de corte en la tubería de entrada de agua de acuerdo con el dia-
grama de instalación de la unidad. Se necesita al menos una válvula de corte para la tubería de salida de agua.
(5) Instalación de tuberías de descarga en la cara inferior del depósito de agua: Conecte un trozo de tubería de
PPR con la salida de drenaje hacia el drenaje del suelo. Deberá instalarse una válvula de corte en el centro de
la tubería de drenaje, en un lugar en el que sea fácil de accionar por el usuario.
(6) Una vez conectadas todas las tuberías del circuito de agua, efectúe primero una inspección de fugas. A conti-
nuación, envuelva las tuberías de agua, el sensor de temperatura de agua y los cables con cinta.
(7) Para más detalles, véase el diagrama de instalación de la unidad.
Depósito de agua
Salida de agua caliente
Válvula antirretorno
de seguridad
Válvula de corte
Cable de alimentación de calefactor de refuerzo
Filtro
Entrada de agua fría
Otro
sistema
térmico
Agua corriente
Salida de descarga
Sensor de temperatura
del depósito de agua
Descripción Rosca de tubería de conexión
Entrada/salida de agua de recirculación de la unidad principal BSP macho de 1"
Entrada de agua de refrigeración del depósito de agua BSP hembra de 1/2"
Entrada/salida de agua de recirculación del depósito de agua BSP hembra de 3/4"
Salida de agua caliente del depósito de agua BSP hembra de 1/2"

Table of Contents

Other manuals for Gree GRS-CQ6.0Pd/NhG-K

Related product manuals