EasyManua.ls Logo

Greenheck IGX - 2-Pipe Vertical Venting

Greenheck IGX
40 pages
Print Icon
To Next Page IconTo Next Page
To Next Page IconTo Next Page
To Previous Page IconTo Previous Page
To Previous Page IconTo Previous Page
Loading...
17
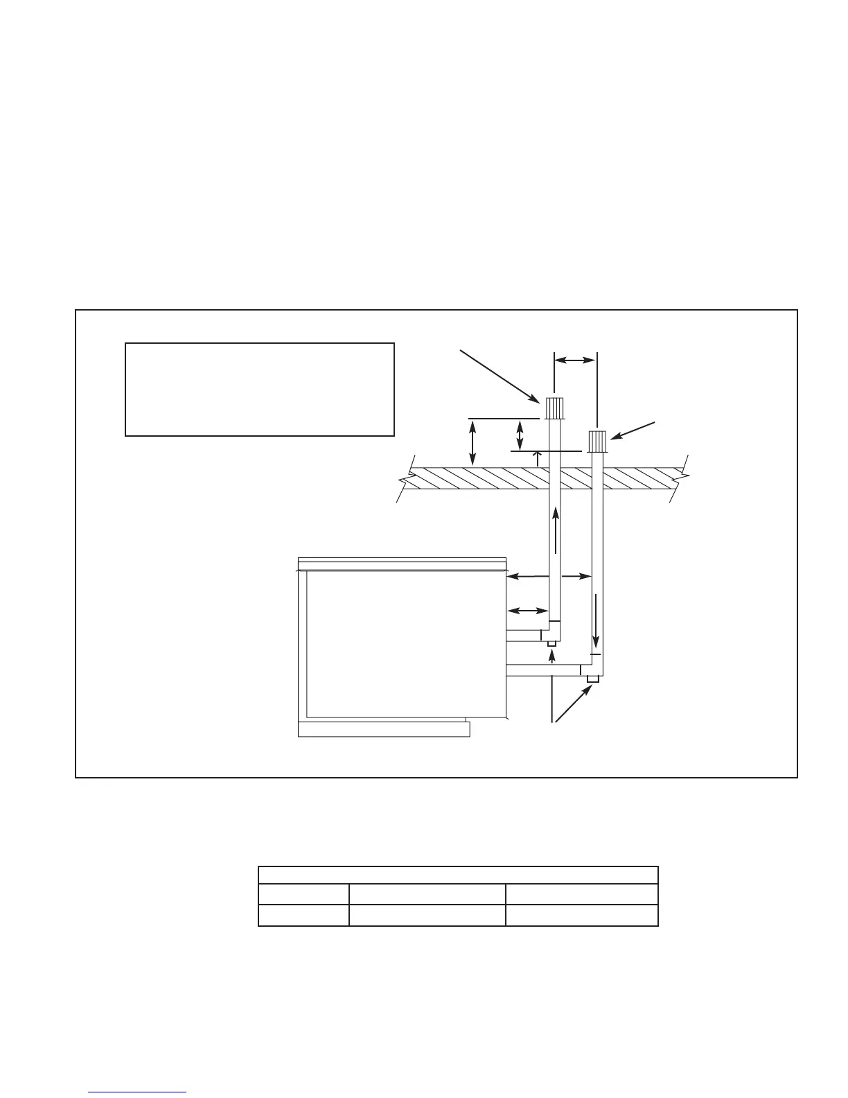
1. Construct the vent system as shown below.
Looking in the direction of airflow, the venting is on
the right side of unit.
2. The bottom of the combustion air cap must be
located above the snow line or 12 inches above the
roof, which ever is greater.
3. The vent must terminate at least 12 inches above
and 12 inches horizontally from the combustion air
inlet.
Vertical Venting
A
A
A
B
C
A1
A= 12 inch minimum
A1 = 12 inch minimum, but should size
according to expected snow depth.
B= 24 inch minimum
C= 12 inch minimum
EXHAUST
COMBUSTION AIR
Tee with drip leg and
cleanout cap.
Combustion Air
Inlet Terminal
Exhaust Vent
Terminal
The venting parts listed above are supplied by Greenheck.
All vent piping is FIELD SUPPLIED by others.
Separated Combustion 2-Pipe Venting Kit - Vertical
Furnace Size 100 - 150 mbh 200 - 400 mbh
Kit contents: (2) 4 inch vent terminal (2) 6 inch vent terminal
Venting Instructions:
2-Pipe Vertical
All measurements shown are diameters.

Other manuals for Greenheck IGX