EasyManua.ls Logo

Groth 2000A - Page 9

Default Icon
18 pages
Print Icon
To Next Page IconTo Next Page
To Next Page IconTo Next Page
To Previous Page IconTo Previous Page
To Previous Page IconTo Previous Page
Loading...
9
nut from the stem. Slowly raise the spring
button to release the spring compression. The
spring force will be in 5 – 30 lb range, depending
on vacuum setting.
6. Using weight plate handles, if included, lift pressure
pallet [2] with attached assembly and remove
vacuum pallet-stem [23, 14] assembly from the
bottom.
7. Remove the nuts on the weatherhood posts holding
the stem guide [17]. Note: For low pressure
settings, a weight plate is added on the stem guide
[17].
8. Lift the spacers [12]. Remove the nuts above the
water dam [28]. Note: Water dam is only used if
weight plate is mounted directly on pressure pallet
[2].
9. Remove the weatherhood posts [27] by loosening
the nuts beneath the pallet.
10. Carefully lift the weight plate [29] vertically.
Caution: This may require a crane due to the
weight. (See Warning on page 5.)
11. Turn pallet assembly upside down (Figure 9).
12. Remove remaining bolts, nuts, and washers [7, 9,
19, 20, 21] to separate the vacuum seat.
13. Lift the retainer plate [3] and diaphragms [10] from
the pressure pallet.
2050A Assembly
Rebuild the valve reversing the disassembly steps.
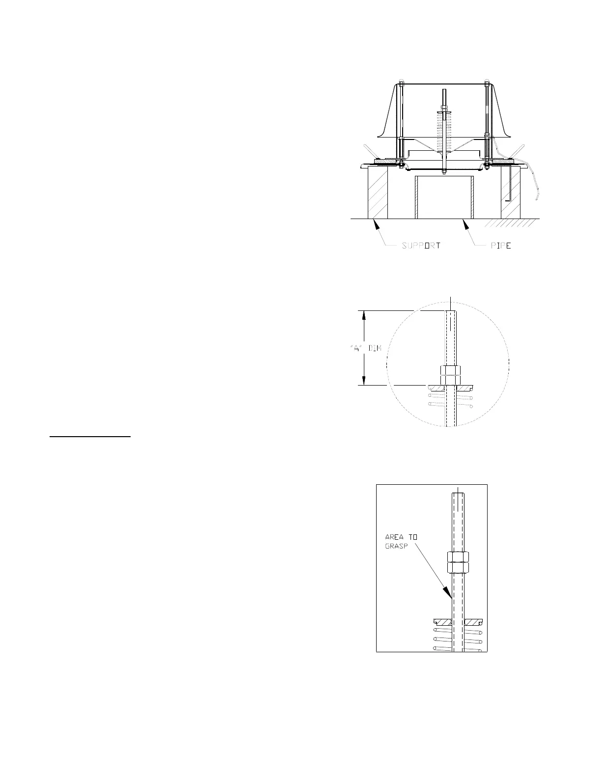
1. Begin by placing the pallet [2] upside down on
support blocks evenly spaced or on a pipe.
2. Wipe clean “air cushion” groove (seat area) in
pallet.
3. Center diaphragms [10] (qty 2) on pallet. See
Figure 3 for orientation of diaphragms, if elastomer
is used.
4. Place retainer plate [3], align with pallet hole
pattern.
Figure 7 : Vacuum Spring Compression
Figure 8 : Loosening Nuts for Spring
Figure 6 : Pallet Support (2050A)