EasyManua.ls Logo

GTV MODERN BOX - Mounting Dimensions and Specifications; Dimensions for Drawer Types; Inner Drawer Elements Dimensions; Drawer Back and Bottom Board Dimensions

Default Icon
4 pages
Print Icon
To Next Page IconTo Next Page
To Next Page IconTo Next Page
To Previous Page IconTo Previous Page
To Previous Page IconTo Previous Page
Loading...
A
LW-86
NL-24
B
LW-97
H
NL+5
A
LW-86
NL-24
B
LW-97
H
NL+5
GTV, ul. Przejazdowa 21, 05-800 Pruszków, tel. +48 22 444 75 00, fax 22 444 75 01, www.gtv.com.pl
min 33
16
47,5
32
min 63,5
93,5
42,5
9
9
32 20
min 47,5
32
15,5
min 33
16
47,5
32
min 127
93,5
42,5
15,5
9
9
32 32
min 47,5
32
64
39
10
64
min 33
16
47,5
32
min 191
93,5
42,5
15,5
9
9
32 32
min 47,5
32
64
64
*
64
64
32
32
10
64
opcja
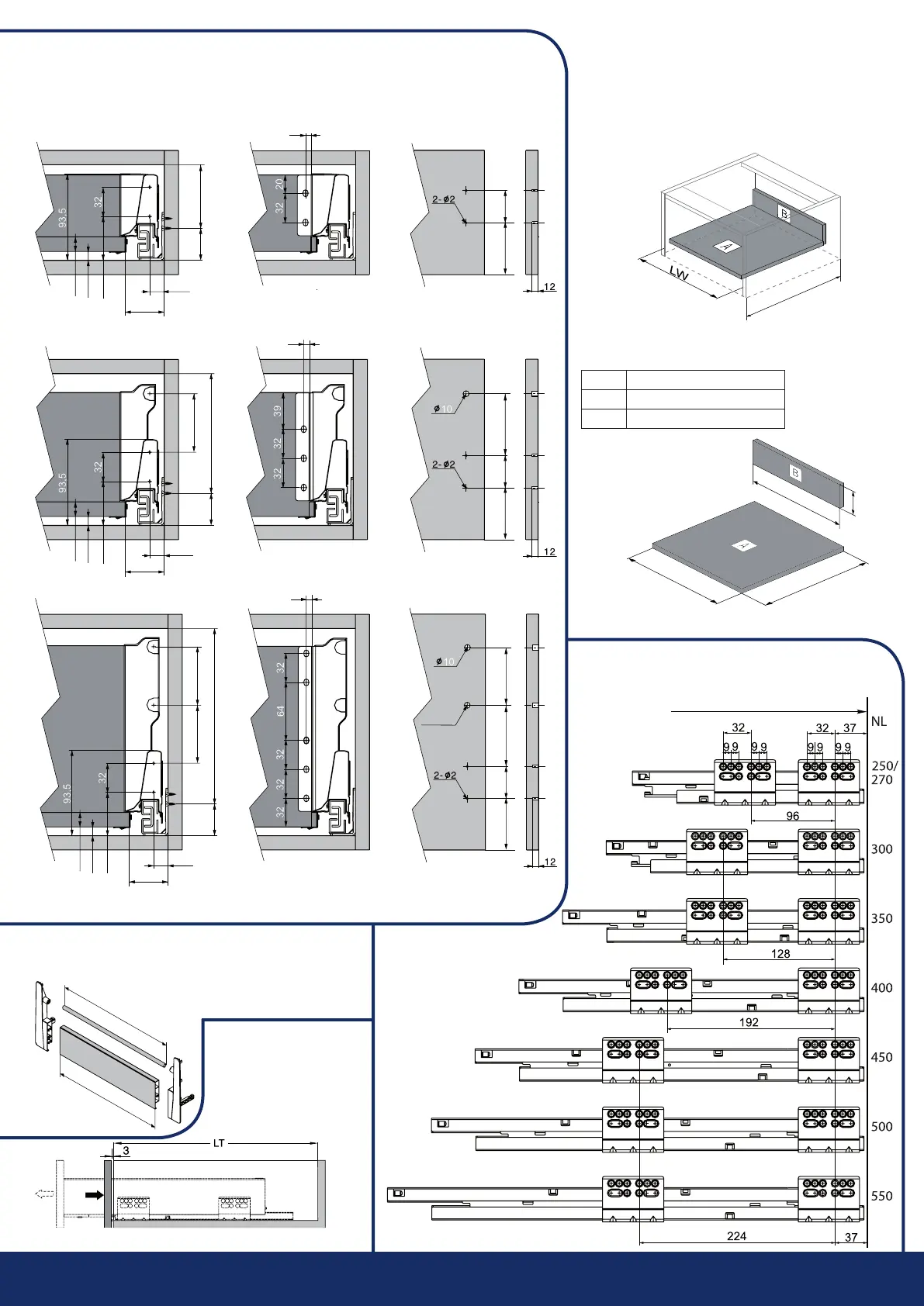
Wymiary montażowe/ Mounting dimensions/ Монтажные размеры:
- Dla szuady niskiej/ For low drawer/ Для низкого ящика
Pozycje mocowania prowadnic/
Bearings fixing positions/
Примеры установки направляющих
Wymiary elementów szuflady wewnętrznej/
Inner drawer elements dimensions/
Размеры элементов внутреннего ящика
Min. głębokość
korpusu (LT)/
Min. depth
of the cabinet (LT)/
Мин. глубина корпуса (LT)
Dla szuad o szerokości powyżej 900mm wymagany stabilizator/
For drawers with width over 900mm a stabilizer is required/
Для ящиков шириной свыше 900мм необходим стабилизатор
Minimalny dystans push open = 3mm/ Minimal distance push to open = 3mm/
Минимальная дистанция push open = 3мм
Wymiary elementów ścianki tylnej
i dna szuady dla płyty 16mm/
Mounting dimensions of drawer back
and bottom for 16 mm board/
Монтажные размеры задней части
и днища ящика для плиты 16 мм
- Dla szuady średniej/
For medium drawer/ Для среднего ящика
- Dla szuady wysokiej/ For high drawer/ Для высокого ящика
Wymiary montażowe szuady i korpusu/
Mounting dimensions of drawer and body/
Монтажные размеры ящика и корпуса
Wymiary montażowe ścianki tylnej/
Mounting dimensions of back wall/
Монтажные размеры крепления
задней части
Wymiary montażowe frontu/
Mounting dimensions of front/
Монтажные размеры фасада
Ścianka tylna/
Ball wall/
Задняя стенка
Dno szuady/
Drawer bottom/
Днище ящика
LW - Wewnętrzna szerokość korpusu/ Body internal width/
Внутренняя ширина корпуса
NL - Długość nominalna prowadnicy/ Nominal length Bearings/
Номинальная длина
*Otwór relingu środkowego 10/
Opening of the middle rail 10/
Отверстие среднего релинга 10
LW - Szerokość wewnętrzna korpusu/
Cabinets inner width/
Внутренняя ширина корпуса
LT = NL + 5
Krawędź korpusu/ Body edge/ Грань корпуса
H=84mm Szuada niska/ Lower drawer/ Маленький ящик
H=135mm Szuada średnia/ Medium drawer/ Средний ящик
H=199mm Szuada wysoka/ High drawer/ Большой ящик
LW-97
LW-74