EasyManua.ls Logo

Guyson 2 - Page 76

Guyson 2
77 pages
Print Icon
To Next Page IconTo Next Page
To Next Page IconTo Next Page
To Previous Page IconTo Previous Page
To Previous Page IconTo Previous Page
Loading...
Operation &
Maintenance
Manual
Issue:
10
A6ML0066 Euroblast SF Instruction Manual
Date:
05/2019
Page: 76
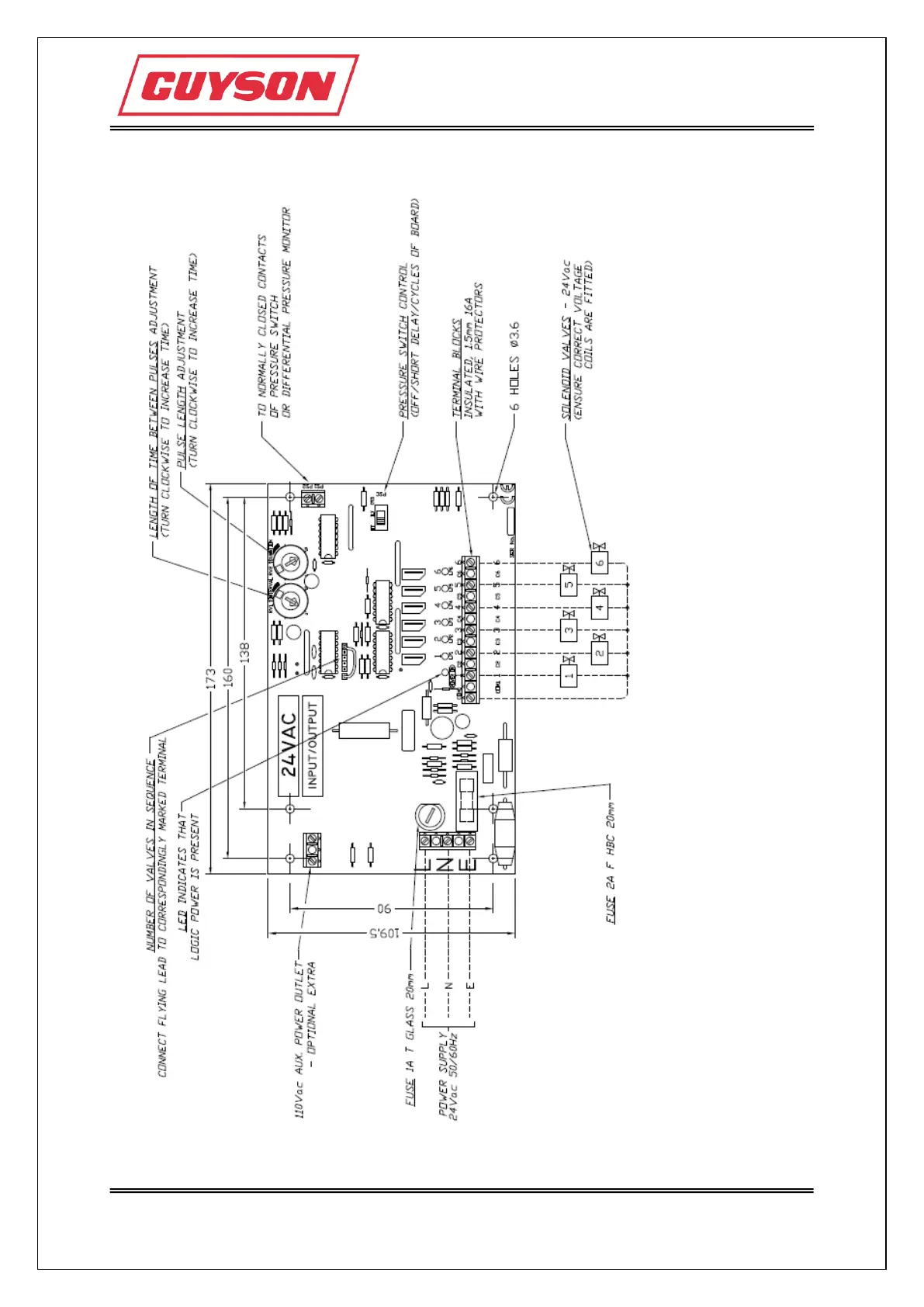
Wiring diagram

Related product manuals