EasyManua.ls Logo

Guyson 6 - Page 76

Default Icon
77 pages
Print Icon
To Next Page IconTo Next Page
To Next Page IconTo Next Page
To Previous Page IconTo Previous Page
To Previous Page IconTo Previous Page
Loading...
Operation &
Maintenance
Manual
Issue:
10
A6ML0066 Euroblast SF Instruction Manual
Date:
05/2019
Page: 76
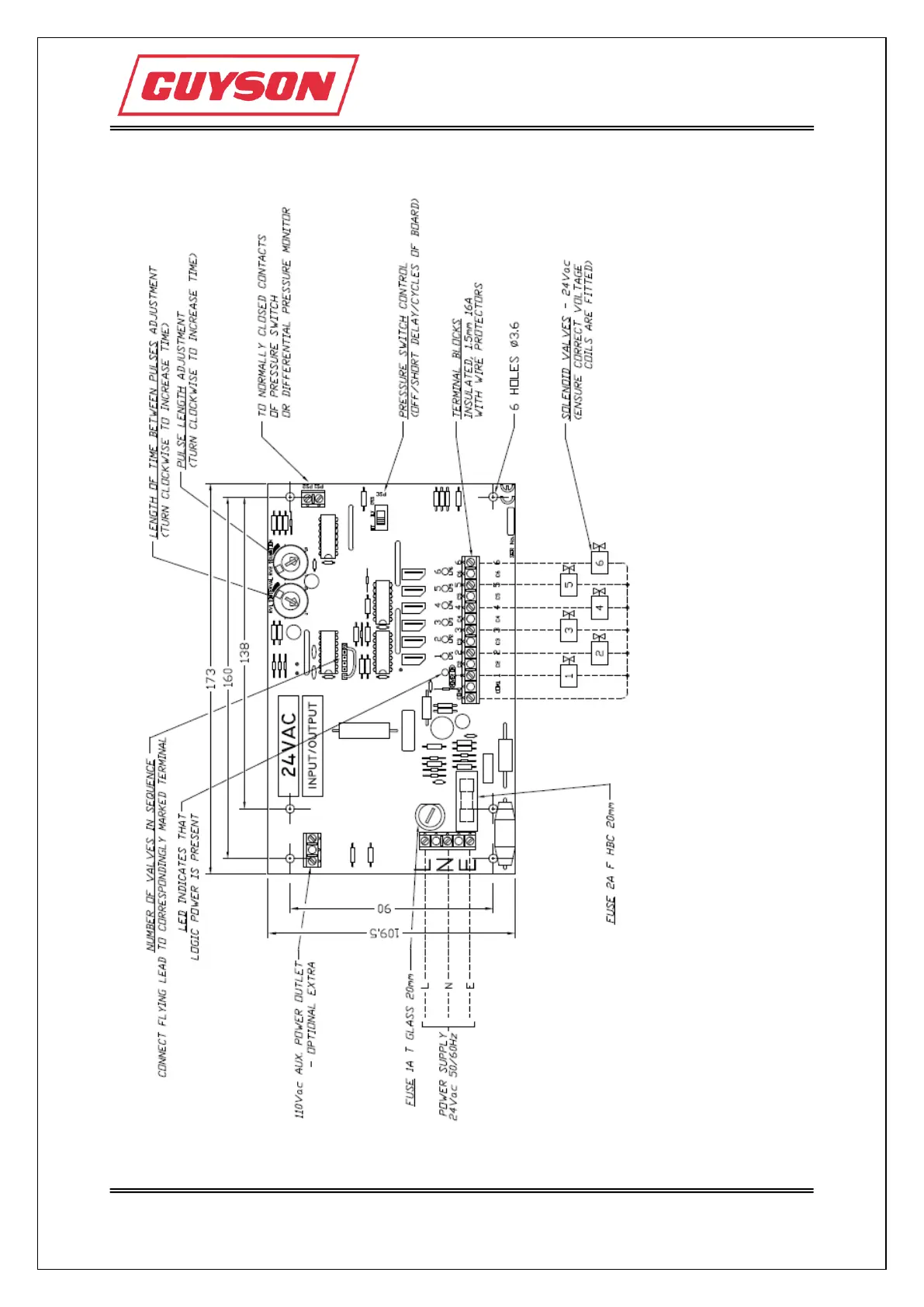
Wiring diagram

Related product manuals