EasyManua.ls Logo

Haier 4U75S2SR2FA - Page 189

Haier 4U75S2SR2FA
257 pages
Print Icon
To Next Page IconTo Next Page
To Next Page IconTo Next Page
To Previous Page IconTo Previous Page
To Previous Page IconTo Previous Page
Loading...
186
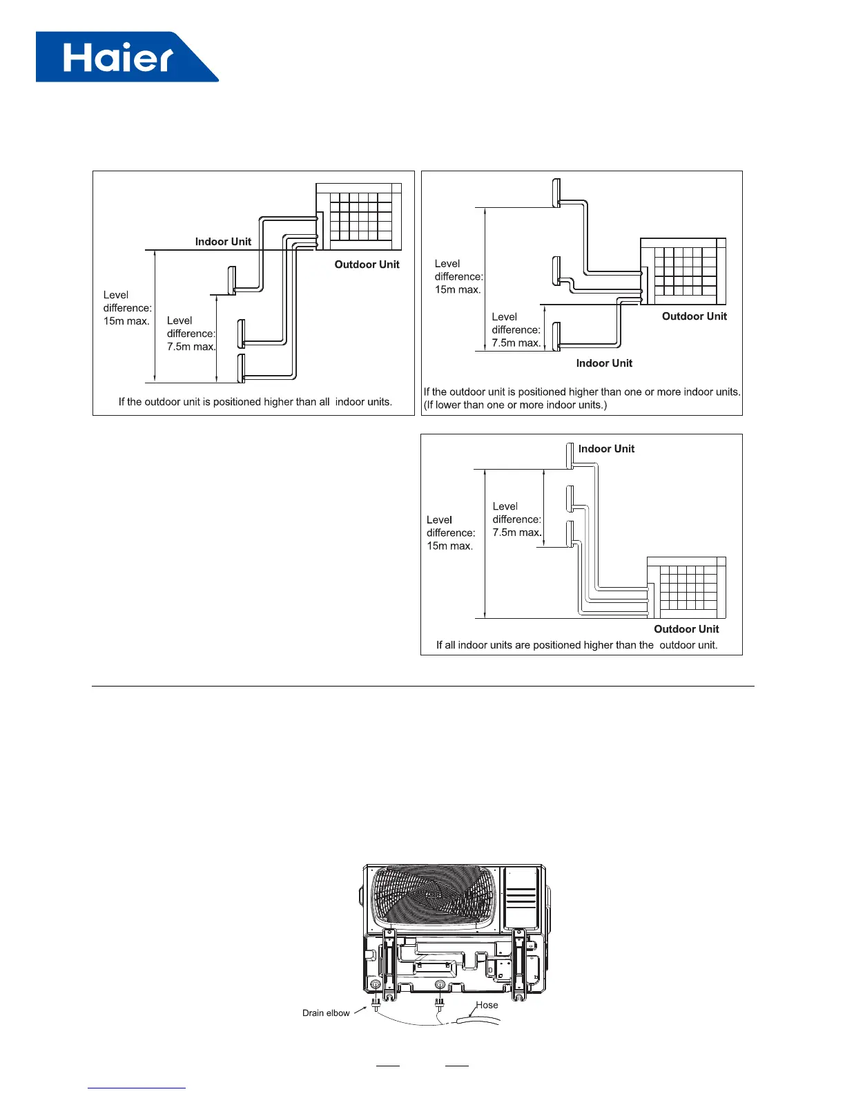
Refrigerant Piping Work
1. Installing Outdoor Unit
1) When installing the outdoor unit, refer to "Precautions for Selecting the Location" and the "Indoor/Outdoor Unit
Installation Drawings".
2)If drain work is necessary, follow the procedures below.
2. Drain Work
1) Use drain plug for drainage.
2) If the drain port is covered by a mounting base or oor surface, place additional foot bases of at least 30mm in
height under the outdoor unit's feet.
3) In cold areas, do not use a drain hose with the outdoor unit. (Otherwise, drain water may freeze, impairing
heating performance.)

Other manuals for Haier 4U75S2SR2FA

Related product manuals