EasyManua.ls Logo

Haier 4U85S2SR2FA - Page 18

Haier 4U85S2SR2FA
257 pages
Print Icon
To Next Page IconTo Next Page
To Next Page IconTo Next Page
To Previous Page IconTo Previous Page
To Previous Page IconTo Previous Page
Loading...
15
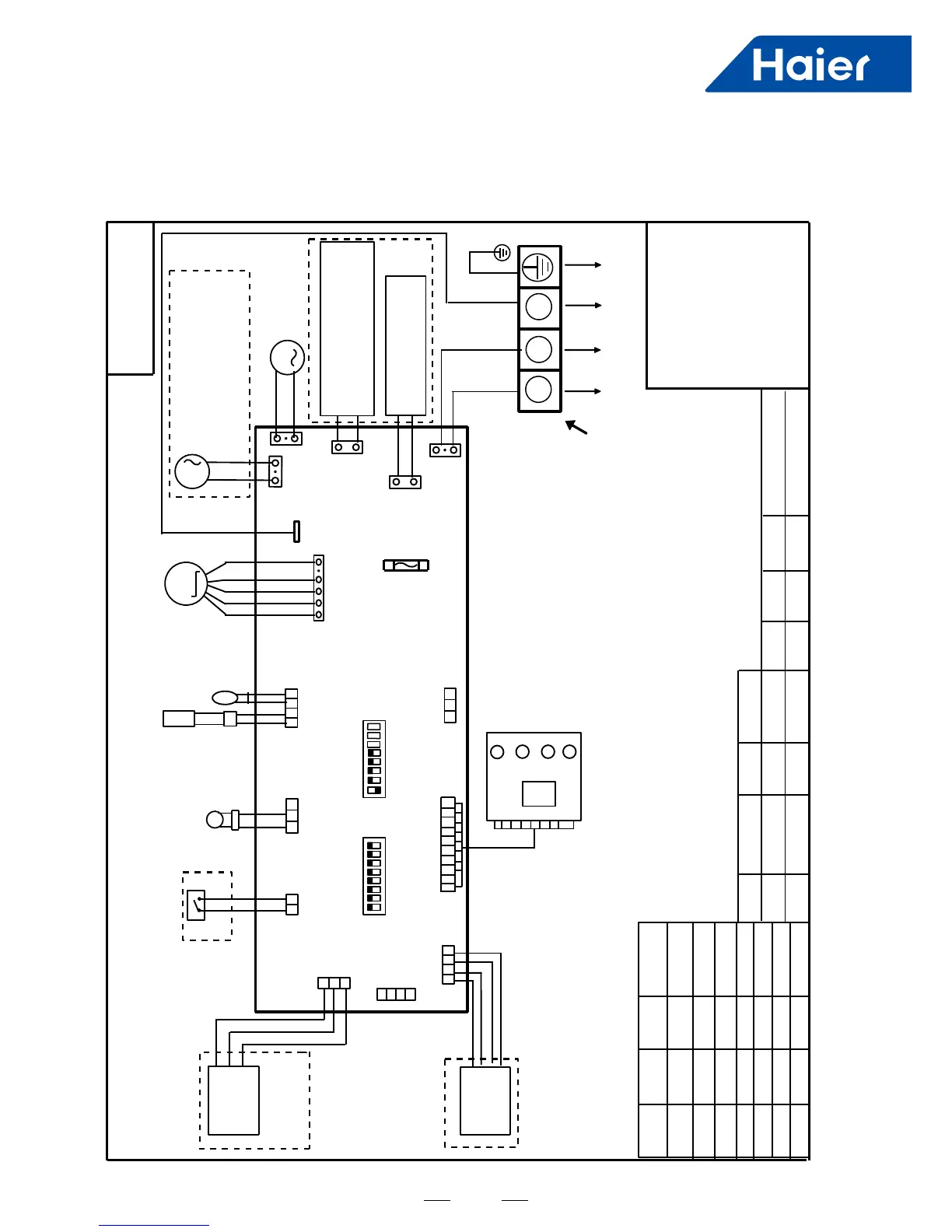
TO OUT DOOR UNIT
SW1-1
TYPE DEFINE
Cassette
Y/G:YELLOW/GREEN
RD:RED WHT:WHITE
BLK:BLACK
******************
.
SENSOR
CN1
CN11
CN19
SW3(BM3)
2
1
3
BLK
WHT
RD
OFF OFF ON
9.0
10.5
NOTE:
1.DASHED PARTS ARE OPTIONAL.
2.USER SHOULD NOT CHANGE THE
DIP SWITCH SW1 SW3 WITHOUT GUIDENCE
3.SW3-5->SW3-8 ARE USED FOR WIRED CONTROLLER
ADRESS SELECT. SW3-1->SW3-4 ARE RESERVED.
CH1
OFF
OFF
TEMP
.
PIPING
DC FAN MOTOR
BA
C
87654321
SW1(BM1)
87654321
N
(SLIM)
Room card
available
ON
Y/G
0150527035
L
WiFi
MODULE
B
A
C
WIRED
CONTROLLER
M
SENSOR
TEMP.
ROOM
ROOM CARD
CN3
CN6
T5A 250VAC
CN16
DRAIN
PUMP
M
CN9
CN10
CN4
FUSE
FLOAT
SWITCH
CN13
INDOOR UNIT
MAIN CONTROL
BOARD
I.R .RECEIVER :
INFRARED REMOTE
RECEIVER .
TEMP.:TEMPERATURE
ON
OFF
ON
62NC
A
B
M
FRESH AIR MOTOR /
EXTERNAL ALARM OUTPUT
(FUNCTION IN FUTURE )
( Contact rating_230VAC,3A)
CAPACITY
(KW)
SW1-2
SW1-3
OFF ON
ON
OFF
ON
ON
12.5
ON
ON
ON
14.0
SW1-4
unavailable
OFF
ON
SW1-5
COOL HEAT
COOL ONLY
HEAT PUMP
SW1-6
SW1-7
SW1-8
OFF
OFF
ON
INDOOR UNIT
TERMINAL BLOCK
CN8
7.1
ON
ON
OFF
ELECTRIC HEATING TERMINAL
RATING_230VAC,3A
CONNECT TO THIRD PARTY RELAY
CN15
ELECTRIC HEATING
THERMOSTAT / FUSE
(INSIDE PANEL,
WITHOUT
DIGITAL
DISPALY)
INFRARED
REMOTE
RECEIVER
CN21
5.0
ON
OFF
OFF
ON
OFF
OFF
3.5
AB50S2SC1FA

Other manuals for Haier 4U85S2SR2FA

Related product manuals