EasyManua.ls Logo

Haier 4U85S2SR2FA - Page 82

Haier 4U85S2SR2FA
257 pages
Print Icon
To Next Page IconTo Next Page
To Next Page IconTo Next Page
To Previous Page IconTo Previous Page
To Previous Page IconTo Previous Page
Loading...
79
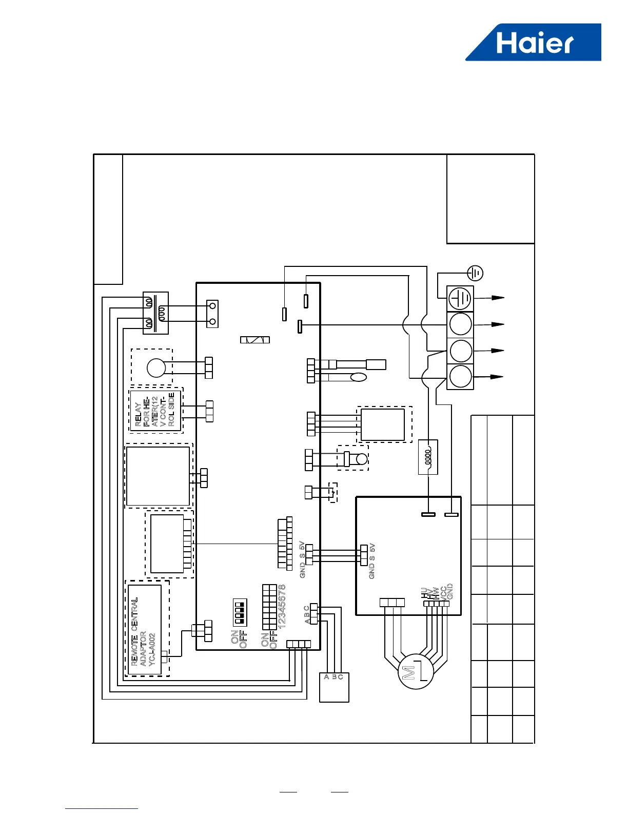
AD125S2SM3FA AD140S2SM3FA
BLK:black BLU:blue
GR:grey
ORG:orange
PNK:pink RD:red
WHT:white YL:yellow
Y/G:
yellow/green
FLOAT
SWITCH
CN5
TRANSFORMER
PUMP
CN9
CN8
REMOTE CENTRAL
ADAPTOR
YCJ-A002
TEMP.
SENSOR
ROOM
SENSOR
PIPING
TEMP.
CN3
CN29
CN18
CN13
CN19
T3.15A/250VAC
FUSE
WIRED
CONTROLLER
ROOM CARD
CH3(L)
CH4(N)
CH5
12345678
ON
OFF
SW1
ON
OFF
1234
SW2
~
2
1
3
WHT
Y/G
CN1
A
B
C
A B
C
REMOTE
RECEIVER
INFRARED
CN4
WiFi
MODULE
GND
S
5V
CN6
CN7
GND
S
5V
M
FAN MOTOR
DRIVER
MODULE
MAIN CONTROL
BOARD
DC FAN
MOTOR
U
V
W
RD
WHT
BLK
CN609
CN604
P601
(ACL)
P602(ACN)
Reactor
CN603
HU
HV
HW
VCC
GND
YL
BLU
ORG
PNK
GR
WHT
RD
BLK
RELAY
FOR HE-
ATER(12
V CONT-
ROL SIDE
To outdoor unit
Note:
1.Dashed parts are op-
tional.
2Once out of factorty
do not change the DIP
switches without
technical guidence
3.SW2 is used for
address setting on the
situation of one wired
controller control more
than one indoor unit.
4.Use wired controller to
select appropriate exter-
nal static pressure level.
5.Refer to service
manual to get more
information about the
static pressure level
select or DIP switch
SW1, SW2 function
definations
SW1-1
SW1-2
SW1-3
SW1-4
SW1-5
SW1-6
SW1-7
SW1-8
MODEL
CN20
OFF
OFF
OFF
ON
OFF
OFF
OFF
OFF
ON
OFF
ON
ON
OFF
ON
ON
ON
AD125S2SM3(4)FA
0150517885A
M
FRELAY FOR
FRESH AIR
MOTOR
(CN7 Contact
rating-230
VAC,3A) /
E.A.0
AD140S2SM3(4)FA

Other manuals for Haier 4U85S2SR2FA

Related product manuals