EasyManua.ls Logo

Haier ab48es1era - Wiring Procedures; Wiring Example; Post-Installation Checks

Haier ab48es1era
102 pages
To Next Page IconTo Next Page
To Next Page IconTo Next Page
To Previous Page IconTo Previous Page
To Previous Page IconTo Previous Page
Loading...
*2
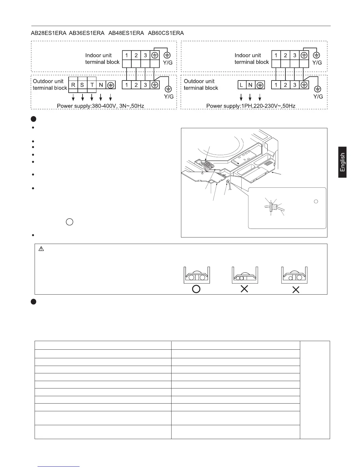
8b U^a ^dcS^^a d]Xc RXaRdXcz _[TPbT bTT @]bcP[[PcX^] CP]dP[ ^U ^dcS^^a d]Xc|
D^cT3 8[[ T[TRcaXR fXaTb WPeT cWTXa ^f] _^[Tbz _^[Tb \dbc \PcRW cWPc ^] cTa\X]P[ Q[^RZ|
EQbRaeT cWT U^[[^fX]V fWT] R^]]TRcX]V _^fTa bd__[h
cTa\X]P[ Q[^RZ3
;^]vc R^]]TRc fXaTb ^U SXUUTaT]c b_TRXUXRPcX^]b c^ cWT bP\T
cTa\X]P[ Q[^RZ|
wB^^bT fXaT \Ph RPdbT ^eTaWTPcX]V ^U RXaRdXcx
:^]]TRc fXaTb ^U bP\T b_TRXUXRPcX^]b Pb bW^f] X] aXVWc =XV|
:^]]TRc fXaTb ^U cWT
bP\T b_TRXUXRPcX^]b
Pc cf^ bXSTb|
;^]vc R^]]TRc fXaTb ^U
cWT bP\T b_TRXUXRPcX^]b
Pc ^]T bXST|
;^]vc R^]]TRc fXaTb
^U cWT SXUUTaT]c
b_TRXUXRPcX^]b|
Lm`g mi mc` ^c`^e`_
R\r lj`^d\f ^\k` mi mc` aiffipdhb \h_ ^c`^e \am`k dhlm\ff\mdih
Vhjkij`k dhlm\ff\mdih g\r ^\nl`
Fc`^e
@b X]S^^a d]Xc UXa\[h X]bcP[[TS7
@b VPb [TPZPVT RWTRZ _TaU^a\TS7
@b d]Xc _a^_Ta[h X]bd[PcTS7
@b fPcTa SaPX]PVT b\^^cW7
@b _^fTa e^[cPVT \TTc cWPc bcX_d[PcTS ^] cWT ]P\T_[PcT7
@b fXaX]V P]S _X_X]V R^aaTRc[h PaaP]VTS7
@b d]Xc bPUT[h Va^d]STS7
@b fXaT bXiT R^aaTRc7
8aT cWTaT P]h ^QbcPR[Tb ^] PXa X][Tc P]S ^dc[Tc VaX[[ ^U
X]S^^a P]S ^dcS^^a d]Xc7
@b aTR^aS \PST U^a _X_X]V [T]VcW P]S aTUaXVTaP]c
RWPaVX]V P\^d]c7
J]Xc \XVWc UP[[ S^f]z \PZT eXQaPcX^] ^a ]^XbT|
IWXb \Ph [TPS c^ VPb bW^acPVT|
;Tf ^a fPcTa Sa^_ \Ph ^RRda|
;Tf ^a fPcTa Sa^_ \Ph ^RRda|
Fa^Q[T\ \Ph ^RRda ^a _Pacb V^c Qda]TS|
Fa^Q[T\ \Ph ^RRda ^a _Pacb V^c Qda]TS|
IWTaT \XVWc QT P SP]VTa ^U T[TRcaXR bW^RZ|
Fa^Q[T\ \Ph ^RRda ^a _Pacb V^c Qda]TS|
IWXb \Ph RPdbT _^^a R^^[X]V|
@c Xb WPaS c^ R^]ca^[ aTUaXVTaP]c RWPaVX]V
P\^d]c|
Dmm`hmdihA PUcTa UX]XbWX]V X]bcP[[PcX^]zR^]UXa\ ]^ aTUaXVTaP]c [TPZPVT|
? WLSLPJ HXDORNH
> WLSLPJ
8[[ bd__[XTS _Pacb| \PcTaXP[b P]S fXaX]V ^_TaPcX^] \dbc
X] P__[XP]RT fXcW [^RP[ R^ST P]S aTVd[PcX^]b|
JbT R^__Ta fXaT ^][h|
LWT] \PZT fXaX]Vz _[TPbT aTUTa c^ fXaX]V SXPVaP\ P[b^|
8[[ fXaX]V f^aZ \dbc QT S^]T Qh `dP[XUXTS T[TRcaXRXP]b|
8 RXaRdXc QaTPZTa \dbc QT X]bcP[[TSz fWXRW RP] Rdc _^fTa
bd__[h c^ P[[ bhbcT\|
HTT @]bcP[[PcX^] CP]dP[ ^U ^dcS^^a d]Xc U^a b_TRXUXRPcX^]b
^U fXaTbz RXaRdXc QaTPZTaz bfXcRWTb P]S fXaX]V TcR|
:^]]TRcX]V ^U d]Xc
GT\^eT R^eTa ^U bfXcRW Q^g w*xzSaPV fXaTb X]c^ adQQTa
cdQT 8z cWT]z PUcTa _a^_Ta fXaX]V fXcW ^cWTa fXaTbz
cXVWcT] R[P\_ 8| :^]]TRc fXaTb ^U R^aaTRc _^[T c^ cWT
cTa\X]P[ Q[^RZ X]bXST|
LX]S bTP[ *+ Pa^d]S fXaTb|w9T bdaT c^ S^ cWPcz ^az
STf \Ph ^RRdax|
J_^] R^]]TRcX]Vz aT_[PRT R^]ca^[ Q^g R^eTa w*x P]S w+x|
ITa\X]P[ Q[^RZ
:^eTa ^U R^]ca^[ Q^gw*x
GdQQTa cdQT 8
>a^d]SX]V [TPS
:^eTa ^U R^]ca^[ Q^gw+x
Edc
@]
=XT[S fXaX]V
8ccPRW bTP[ _PS
Gih1m a\df mi l`\f dm4 ik p\m`k g\r ^ig` dh6
GdQQTa cdQT
D^cT3 ?PeT Xc bTP[TSz [TPeX]V ]^ b_PRT|
HTP[ _PS wb\P[[ bXiT x
wLX]S Pa^d]S fXaTx
2
rs
WDSPLPJA
Lhlm\ff\mdih Rki^`_nk`

Related product manuals