EasyManua.ls Logo

Haier HSU-18,22HVA103/R2(DB)

Haier HSU-18,22HVA103/R2(DB)
141 pages
To Next Page IconTo Next Page
To Next Page IconTo Next Page
To Previous Page IconTo Previous Page
To Previous Page IconTo Previous Page
Loading...
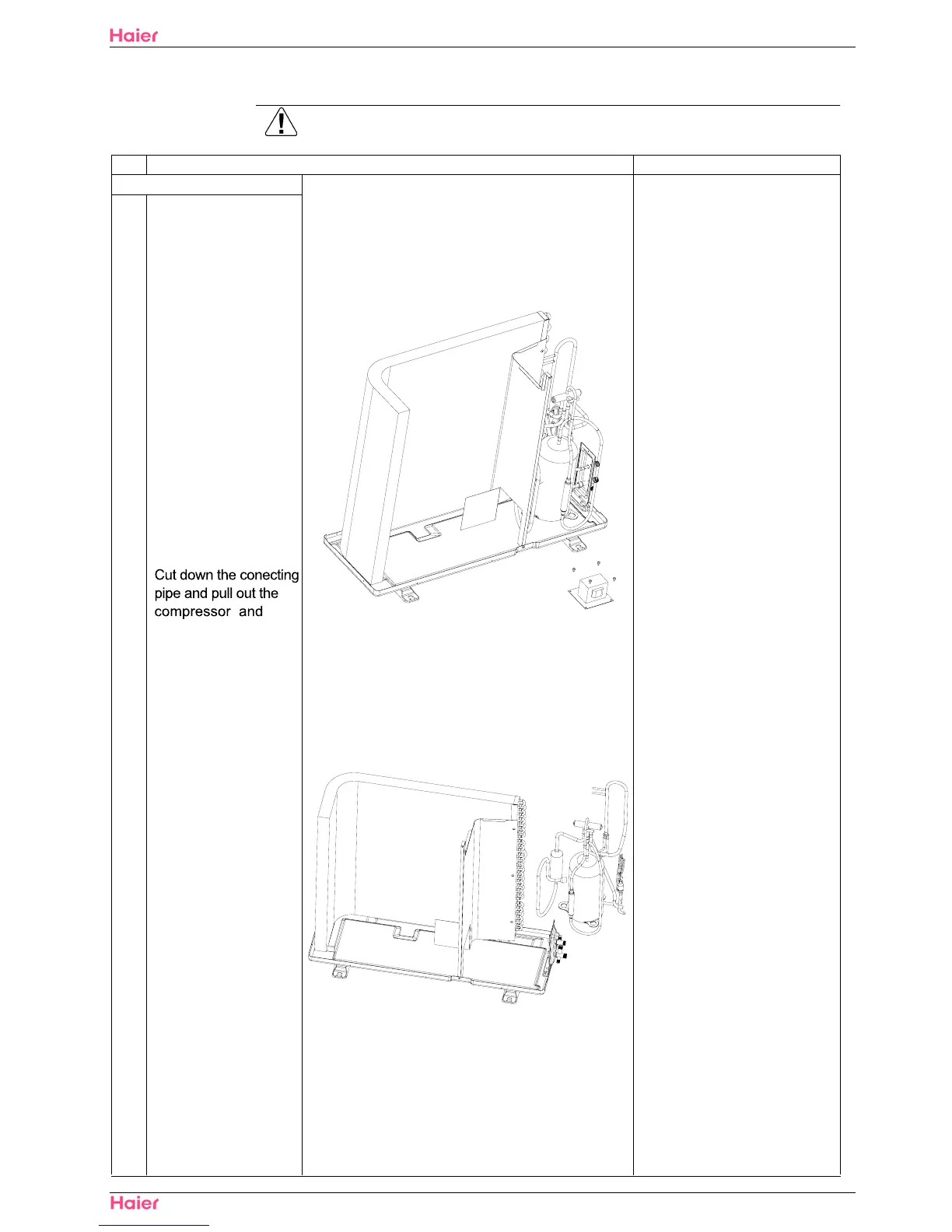
5HPRYDORIFRPSUHVVRUDQGKHDWH[FKDQJHU
3URFHGXUH :DUQLQJ %HVXUHWRZDLWPLQXWHVRUPRUHDIWHUWXUQLQJRIIDOOSRZHUVXSSOLHV
EHIRUHGLVDVVHPEOLQJZRUN
6WHS
3URFHGXUH 3RLQWV
5HPRYDO 3URFHGXUH
129
'RPHVWLF$LU&RQGLWLRQHU
+68H
VA1R2(DB)

Table of Contents

Related product manuals