EasyManua.ls Logo

Handicare 2000 SIMPLICITY - Page 113

Handicare 2000 SIMPLICITY
364 pages
Print Icon
To Next Page IconTo Next Page
To Next Page IconTo Next Page
To Previous Page IconTo Previous Page
To Previous Page IconTo Previous Page
Loading...
E-STOP
DETECTIE
VAN E-STOP
UITEINDELIJKE
LIMIET
SCHARNIER
SLEUTELSCHAKELAAR
RICHTING ARMVERGRENDELING
RICHTING
RICHTING
AARDE
ELEKTRISCH
AANGEDREVEN VOETPLAAT
OPTIONELE STOELSCHAKELAAR
VOOR ELEKTRISCH
AANGEDREVEN VOETPLAAT
SCHARNIERMOTOR
HANDMATIGE
ONTGRENDELSCHAKELAAR
IN-LINE
PCB
COMMS
HAN126
OPMERKING: ALLE SCHAKELAARS IN EEN STAAT WAARBIJ
DE STOEL KLAAR IS OM TE WORDEN AANGEDREVEN
SCHAKELAAR MET OPEN CIRCUIT = VOETPLAAT OMLAAG
SCHAKELAAR MET GESLOTEN CIRCUIT = VOETPLAAT OMHOOG
RH-MOTORAANSLUITINGEN
BLAUW = M1
BRUIN = M2
LH-MOTORAANSLUITINGEN
BLAUW = M2
BRUIN = M1
SCHAKELAAR-
MONTAGESTEUN
SW7
SW6
SW3
SW5
SW4
SW2
SW1
SW8
GEEL
GEEL
ZWART
ZWART
VERGRENDEL
SCHAKELAAR
ALLEEN AAN
ORANJE
BLAUW
LUS
GROEN
BLAUW
1
2
1
2
1
2
1
2
GEEN AANSLUITING
AARDE
E-STOP/SLEUTELDETECTIE
GEEN AANSLUITING
ROZE
ZWART
1
2
3
4
ROZE ROZE
ROZE
ROZE
WIT
WIT
WITWIT
2
1
2
1
2
1
1
2
2
1
2
1
2
1
GRN 5GRN 5
GRN 5GRN 5
F M
F M
1 1
1 1
ZWART
BRUIN
ZWART
ZWART
ORANJE
ROOD
FERRIET
BLAUW
BRUIN
BLAUW
BRUIN
BLW 6
WIT 9
M1
M2
1
1
1
2
1
2
3
1
2
1
1
2
INSTALLATIEHANDLEIDING VOOR DE HANDICARE 2000 SIMPLICITY / STYLE 113
NEDERLANDS
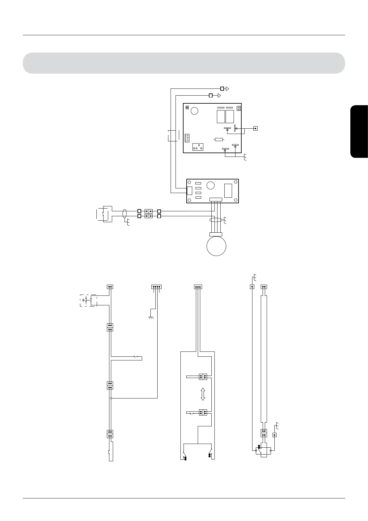
Bijlage 3
Overzicht van Style elektrisch aangedreven draaiing

Related product manuals