EasyManua.ls Logo

Hendi 271575 - Page 105

Hendi 271575
132 pages
Print Icon
To Next Page IconTo Next Page
To Next Page IconTo Next Page
To Previous Page IconTo Previous Page
To Previous Page IconTo Previous Page
Loading...
105
RO
Setarea temporizatorului:
Cum să setați temporizatorul: Când aparatul este
oprit, apăsați butonul „TEMPORIZATOR/CURĂȚARE”
pentru a seta momentul în care aparatul trebuie
să se oprească. Lumina „TEMPORIZATOR” se va
aprinde, iar numărul afișat în fereastra digitală va fi
intermitent indicând numărul de ore de funcționare
a aparatului. În timp ce numărul este intermitent,
apăsați butonul „”, „” pentru a crește sau a re-
duce numărul de ore, setarea implicită fiind zero. La
cinci secunde după setare, setarea dorită va fi pro-
gramată.
Cum să anulați temporizatorul PORNIT: Apăsați bu-
tonul „TEMPORIZATOR/TEMPORIZATOR”, numărul
afișat în fereastra digitală va fi intermitent pentru
a indica timpul de întârziere curent al Temporiza-
torului PORNIT, apoi apăsați din nou butonul pentru
a anula setarea. Prin apăsarea butonului „PORNIT/
OPRIT” se va anula și temporizatorul.
Cum să setați temporizatorul OPRIT: Când aparatul
este pornit, apăsați butonul „TEMPORIZATOR/
CURĂȚARE” pentru a seta momentul în care
aparatul trebuie să se oprească. Etapele următoare
sunt aceleași ca și cele menționate mai sus.
Cum să anulați temporizatorul OPRIT: Procedura
este aceeași ca și pentru anularea Temporizatorului
PORNIT.
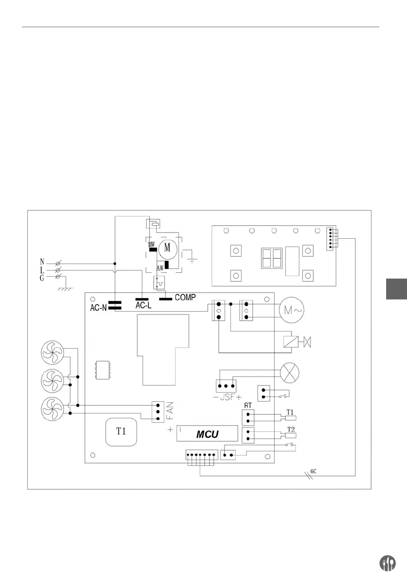
Releu de pornire
COMPRESOR
Dispozitiv de
protecție pentru
suprasarcină
Sursă de
alimentare
Motor ventilator DC
Releu
Gheață
Apă
SUPAPĂ POMPĂ
UP
pornit/oprit
DN
temporizator/
setare
Apă Temporizator Putere Complet Curățare
Ventil solenoid
pentru recoltarea
gheții
Pompă de apă AC
Supapă de admisie a
apei DC
Comutator pentru
detectarea nivelului apei
SENZOR PENTRU
TEMPERATURA AMBIENTALĂ
SENZOR PENTRU TEMPERATURA
TUBULUI DE SUCȚIUNE
SENZOR PENTRU DETECTAREA
UMPLERII CU GHEAȚĂ
Comandă principală PCB
Diagramă electrică
pentru aparatul de
făcut gheață
Buton de comandă PCB

Related product manuals