EasyManua.ls Logo

Hendi 271575 - Page 26

Hendi 271575
132 pages
Print Icon
To Next Page IconTo Next Page
To Next Page IconTo Next Page
To Previous Page IconTo Previous Page
To Previous Page IconTo Previous Page
Loading...
26
DE
gegangen ist, stoppt das Gerät automatisch. Sie
können auch die Programmbeendigung durch das
Drücken der “
” -Taste auf dem Bedienfeld erzwin-
gen.
TIMER-Einstellung:
Wie soll man die Einschaltzeit des Gerätes mit
Hilfe von “Timer” programmieren: Wenn das Gerät
außer Betrieb ist, drücken Sie die “Timer/Clean”
-Taste, um die gewünschte Einschaltzeit einzustel-
len. Die “Timer”-Leuchte aufleuchtet und auf dem
Display wird die eingestellte Einschaltzeit blinkend
angezeigt. Während diese Leuchte blinkt, drücken
Sie die “” oder “” Taste, um die Zeit je nach-
dem um eine Stunde zu erhöhen oder reduzieren.
Der Standardwert beträgt “0“. Die gewünschte Zeit
wird innerhalb von 5 Sekunden nach der Einstellung
gespeichert.
Wie soll man die eingestellte Einschaltzeit annul-
lieren: Drücken Sie die “Timer/Clean”-Taste. Das
Display zeigt blinkend die aktuelle Einschaltver-
zögerungszeit an, die im TIimer programmiert wird.
Erneutes Drücken dieser Taste annulliert diese
Einstellung. Wenn Sie die “ON/OFF”-Taste drück-
en, wird die programmierte Einstellung des Timers
auch annulliert.
Wie soll man die Ausschaltzeit des Gerätes mit
Hilfe von “Timer” programmieren: Wenn das Gerät
eingeschaltet ist, drücken Sie die Taste “Timer/
Clean”, um die gewünschte Ausschaltzeit einzustel-
len. Danach befolgen Sie die Schritte, die im oberen
Punkt beschrieben sind.
Wie soll man die eingestellte Ausschaltzeit annulli-
eren: Der Vorgang ist identisch wie das Annullieren
der programmierten Einschaltzeit.
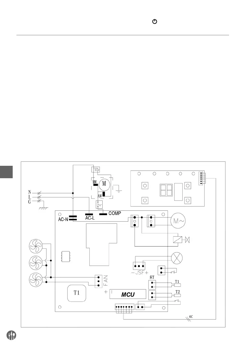
Ausschalter-Relais
KOMPRESSOR
Überspannungsableiter
Stromversorgung
Gleichstromlüftermotor
Relais
ICE
Wasser
Ventil Pumpe
OBEN EIN/AUS
UNTEN Timer/Einstel
-
Wasser Timer Versorgung Voll Reinigung
Magnetventil f.
Eisspeicherung
Wechselstrom-
Wasserpumpe
Gleichstrom-
Magnetventil des
Wasserzulaufes
SCHALTER FÜR
WASSERSTANDERKENNUNG
RAUMTEMPERATURSENSOR
SAUGROHR-
TEMPERATURSENSOR
ERKENNUNGSSENSOR
(BEFÜLLUNG DES
EISWÜRFELBEHÄLTERS)
Platte für Hauptsteuerungssystem
ANSCHLUSSSCHEMA
DER EISWÜRFEL-
MASCHINE
Tastenplatte

Related product manuals