EasyManua.ls Logo

hergom L-05 C.C.E. - Page 4

hergom L-05 C.C.E.
11 pages
Print Icon
To Next Page IconTo Next Page
To Next Page IconTo Next Page
To Previous Page IconTo Previous Page
To Previous Page IconTo Previous Page
Loading...
13
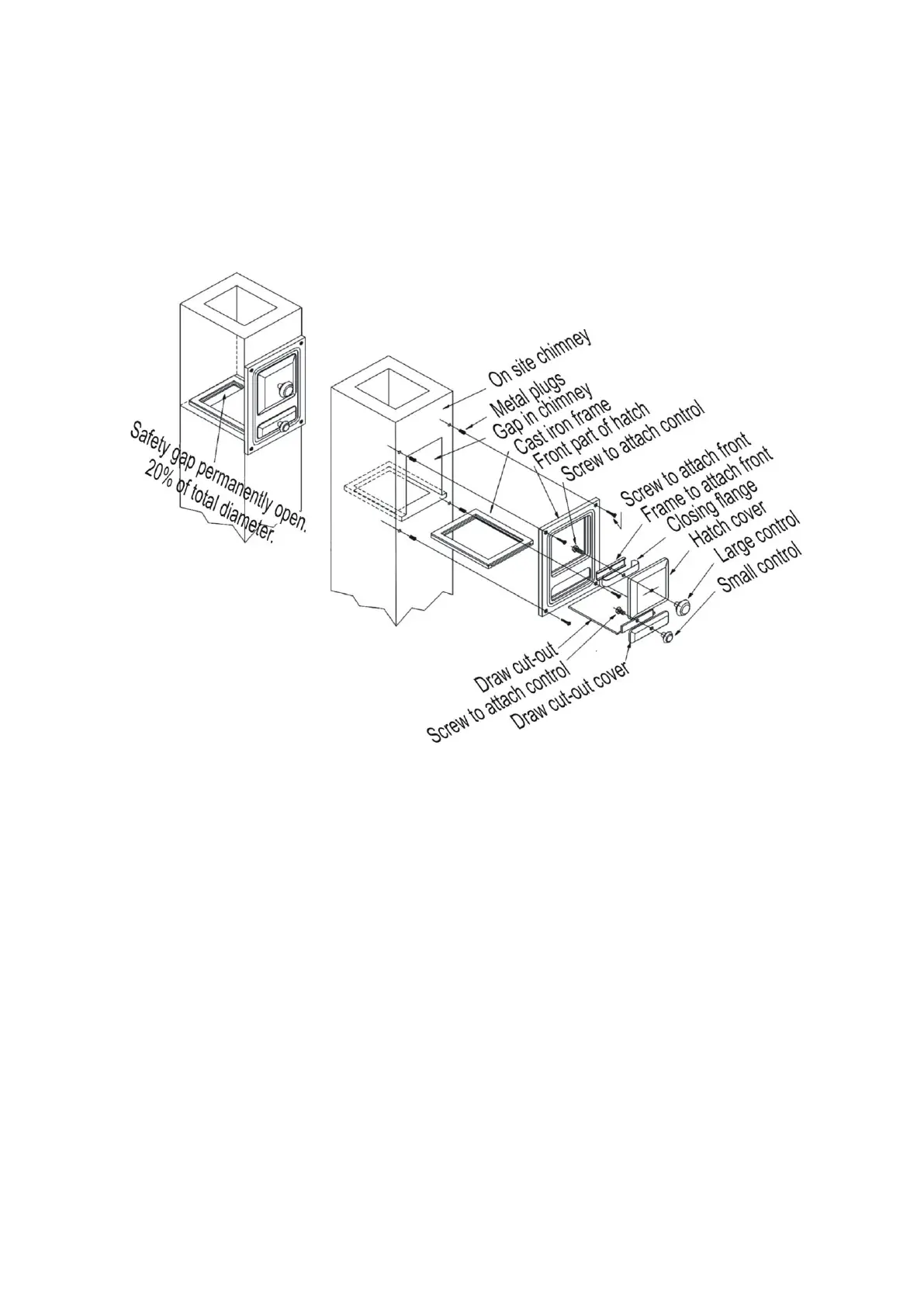
Installing draw regulation valve and cleaning cover
Although the closed cookers have been provided with a system to regulate the
input of fresh air required for combustion, it is advisable, mainly for installations with
high draw systems of over five metres, good construction, insulation... to place a
regulator on the wall, near the cooker output, to help control chimney draw, heat power
and fuel consumption.
The said regulator, given its design, will not control the chimney draw but also provide a
window to access the chimney for cleaning purposes, which will improve its
performance.
The regulator can be easily installed following the instructions indicated in fig. (Fig.11)
The regulator MUST NOT totally close off the passage of fumes, as an accident may
occur if they cannot be evacuated completely.
The open safety section for the circulation of fumes must not be less than 20% of the
cast iron frame gap. If necessary, cut the regulator to provide the above-mentioned gap.
Fig.11