EasyManua.ls Logo

Honda EG5000CX - Page 100

Honda EG5000CX
226 pages
Print Icon
To Next Page IconTo Next Page
To Next Page IconTo Next Page
To Previous Page IconTo Previous Page
To Previous Page IconTo Previous Page
Loading...
FUEL SYSTEM
5-3
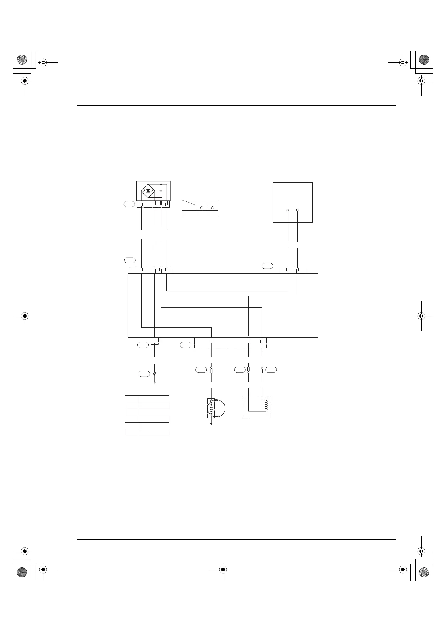
FUEL CUT SYSTEM DIAGRAM
G/W
Y/G
Bl/W
G/W
W
W
Bl/W
Bu
G/W
JUNCTION BOX
FUEL CUT
SOLENOID
ENGINE STOP SWITCH (CX type)
COMBINATION SWITCH (CXS type)
DIODE
Br
Y/G
Bl/W
Bu
G
FS
BLACK
YELLOW
BLUE
GREEN
BROWN
WHITEW
Br
G
Bu
Y
Bl
19
11
10
8
GND2
C5C4C6
5
110741
1
2413
12139
7
FUEL CUT/
CHARGE
COIL
ENGINE STOP SWITCH (CX type)
COMBINATION SWITCH (CXS type)
CONNECTION TABLE
ON
OFF
FSG
82Z30000.book 3 ページ 2010年6月25日 金曜日 午後5時50分

Other manuals for Honda EG5000CX

Related product manuals