EasyManua.ls Logo

Honeywell Krom Schroder PFU 780 - Air Valve Opens with Valve V2

Honeywell Krom Schroder PFU 780
71 pages
To Next Page IconTo Next Page
To Next Page IconTo Next Page
To Previous Page IconTo Previous Page
To Previous Page IconTo Previous Page
Loading...
PFU 780 · Edition 02.12l 42
Parameters
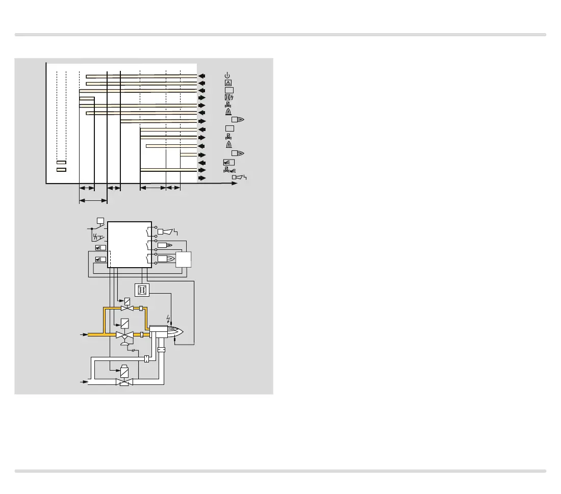
4.7.6 Air valve opens with valve V2
02
00 A0
00
t
SA2
A8 A7
04
t
t
FS2
A6
t
SA1
t
Z
t
FS1
03
A
10a
22e
26a
16c
18e
2c–4c
18a
14a
88
10e
26e
30a
28c
2e–4e
6a–6e
V1
1
V2
2
ϑ1
ϑ2
2
1
PFU 780..L
A
P
L1
1
2
ϑ
VR..R
VAG
VBY
TZI
2
1
SPS
PLC
CPE
Parameter 30 = 2:
The air valve opens simultaneously with valve V2.
Application:
Single-stage-controlled main burner is switched ON/
OFF via the ϑ input.
The air valve can be activated externally via input 10a
for cooling the burner in the start-up position/standby.

Table of Contents

Related product manuals