EasyManua.ls Logo

Hotpoint CRO 642 D B - Page 2

Hotpoint CRO 642 D B
16 pages
Print Icon
To Next Page IconTo Next Page
To Next Page IconTo Next Page
To Previous Page IconTo Previous Page
To Previous Page IconTo Previous Page
Loading...
2
GB
Installation
Before operating your new appliance please read
this instruction booklet carefully. It contains
important information concerning the safe operation,
installation and maintenance of the appliance.
Please keep these operating instructions for future
reference. Pass them on to any new owners of the
appliance.
Positioning
Keep all packaging material out of the reach of
children. It may present a choking or suffocation
hazard (see Precautions and tips).
The appliance must be installed by a qualified
professional in accordance with the instructions
provided. Incorrect installation may cause harm to
people and animals or may damage property.
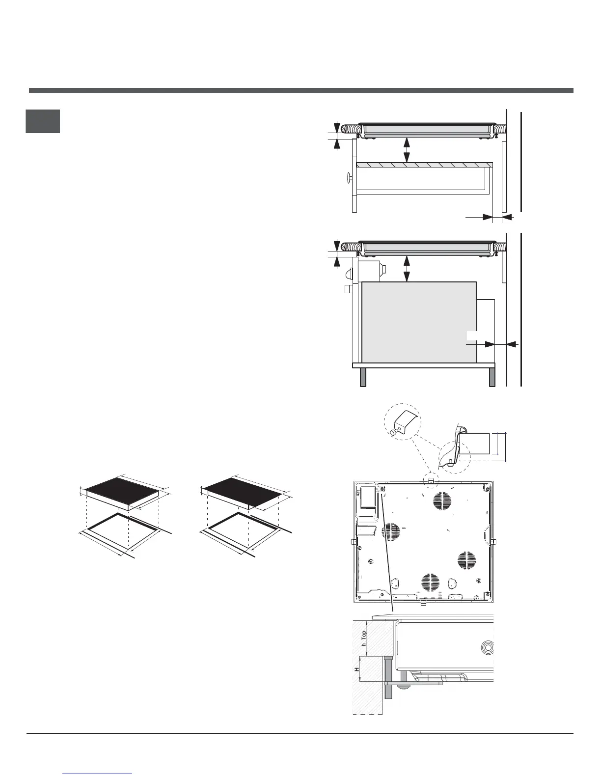
Built-in appliance
Use a suitable cabinet to ensure that the appliance
functions properly.
The supporting surface must be heat-resistant up
to a temperature of approximately 100°C.
If the appliance is to be installed above an oven,
the oven must be equipped with a forced
ventilation cooling system.
Avoid installing the hob above a dishwasher: if
this cannot be avoided, place a waterproof
separation device between the two appliances.
Depending on the hob you want to install, the
cabinet must have the following dimensions (see
figure):
Ventilation
To allow adequate ventilation and to avoid overheating
of the surrounding surfaces the hob should be positioned
as follows:
At a minimum distance of 40 mm from the back
panel.
So that a minimum distance of 20 mm is
maintained between the installation cavity and the
cabinet underneath.
Kitchen cabinets adjacent to the appliance and
taller than the top of the hob must be at least 600
mm from the edge of
the hob.
FRONT SIDE
OF HOB
SUPPORTING
SURFACE
30
40
UNDERSIDE
OF HOB
5 mm
min. 20 mm
min. 20 mm
min. 40 mm
COMPARTMENT
5 mm
min. 40 mm
FAN-ASSISTED
OVEN
560 +/- 1
490 +/- 1
48
590
5
2
0
690
520
560 +/- 1
490 +/- 1
48