EasyManua.ls Logo

Hotpoint WE 24 - Installation; Positioning and connection; Wiring connection

Hotpoint WE 24
8 pages
Print Icon
To Next Page IconTo Next Page
To Next Page IconTo Next Page
To Previous Page IconTo Previous Page
To Previous Page IconTo Previous Page
Loading...
GB
3
Installation
Positioning and connection
Unpacking
1 Unpack the device immediately and make sure it
has not been damaged during transport. Should it
be damaged, do not connect, and get in touch with
the Dealer.
2 Carefully remove the protections and the adhesives,
open the door and make sure all the components
are present.
3 Take out the power supply cable.
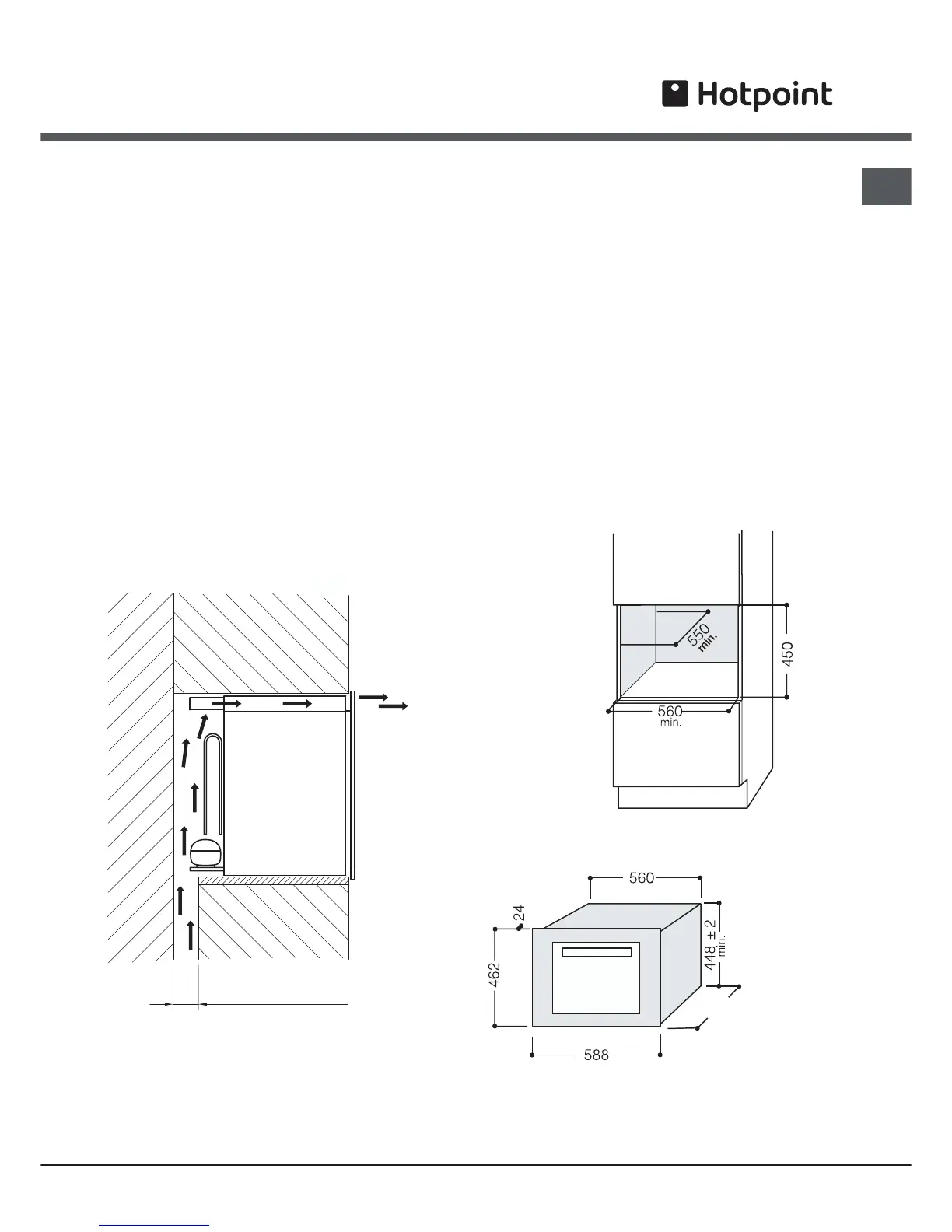
Positioning
1 Position the device in a well ventilated area, not
damp and free (avoid cabinets with closed walls).
2 Keep the device away from heat sources.
3 Make sure the minimum distances between the
device and the walls of the room where it is placed
are kept, in order to ensure perfect ventilation of the
device.
See figure.
Ventilation space:
at least 50 mm
Wiring connection
After transport, stand the device vertically, and wait for
at least 3 hours before connecting it to the wiring
system. Before putting the plug into the power socket,
make sure that:
the socket is earthed and according to legal
regulations;
the socket is able to hold up to the maximum power
load of the machine, indicated on the Data Sheet
table or on the feature plate to the bottom right (see
Description of the device);
the power supply voltage falls within the range
indicated on the Data Sheet table or on the feature
plate to the bottom right (see Description of the
device);
the power socket is compatible with the plug of the
device. Otherwise, replace the socket or the plug; do
not use extensions or multiple sockets.
Dimensions
of the
compartment
540
Furniture
side area
Dimensions
of the cellar

Related product manuals