EasyManua.ls Logo

HPC WS-100C - Page 4

HPC WS-100C
5 pages
Print Icon
To Next Page IconTo Next Page
To Next Page IconTo Next Page
To Previous Page IconTo Previous Page
To Previous Page IconTo Previous Page
Loading...
1. Determinar en la pared el
área donde se desea colocar
la caja de seguridad. Las
cajas están diseñadas para
ser montadas en la pared,
teniendo en cuenta que del
centro de la viga izquierda al
centro de la viga derecha
deben existir 40,64 cm de
separación.
Nota: Antes de empezar a
cortar compruebe que no
hayan cerca tomas de
corriente.
2. Utilizar los diseños adjuntos
(ver fig. 1 & 2) con el fin de
efectuar con la sierra la
apertura en la pared donde
colocará la caja de seguridad
pequeña o grande.
1. Déterminer l’aire du mur
le coffre-fort doit être
installé. Ces coffres-forts ont
été dessinés pour être
encastrés dans le mur. Entre
le centre de la poutre gauche
et le centre de la poutre
droite il doit avoir un écart
de 40,64 cm.
Attention: Avant de procéder
au découpage, s’assurer de la
localisation des prises de
courant.
2. Utiliser les croquis joints
(voir fig. 1 & 2) afin de
découper l’ouverture, où on
veut encstrer le coffre-fort,
dans le mur à l’aide de la
scie à chantourner.
1. Determine the area on your
wall where the safe is to be
mounted. Safes are designed
to fit between 16" (40.64cm)
O.C. wall joists.
NOTE: Be aware of any
electrical outlets before
beginning to cut.
2. Use included sketches (see
Figs. 1 & 2) to cut out small
and large wall safe openings
using the jig saw.
English Français Español
© 2012• HPC, Inc. Schiller Park, IL • 60176 USA • www.hpcworld.com
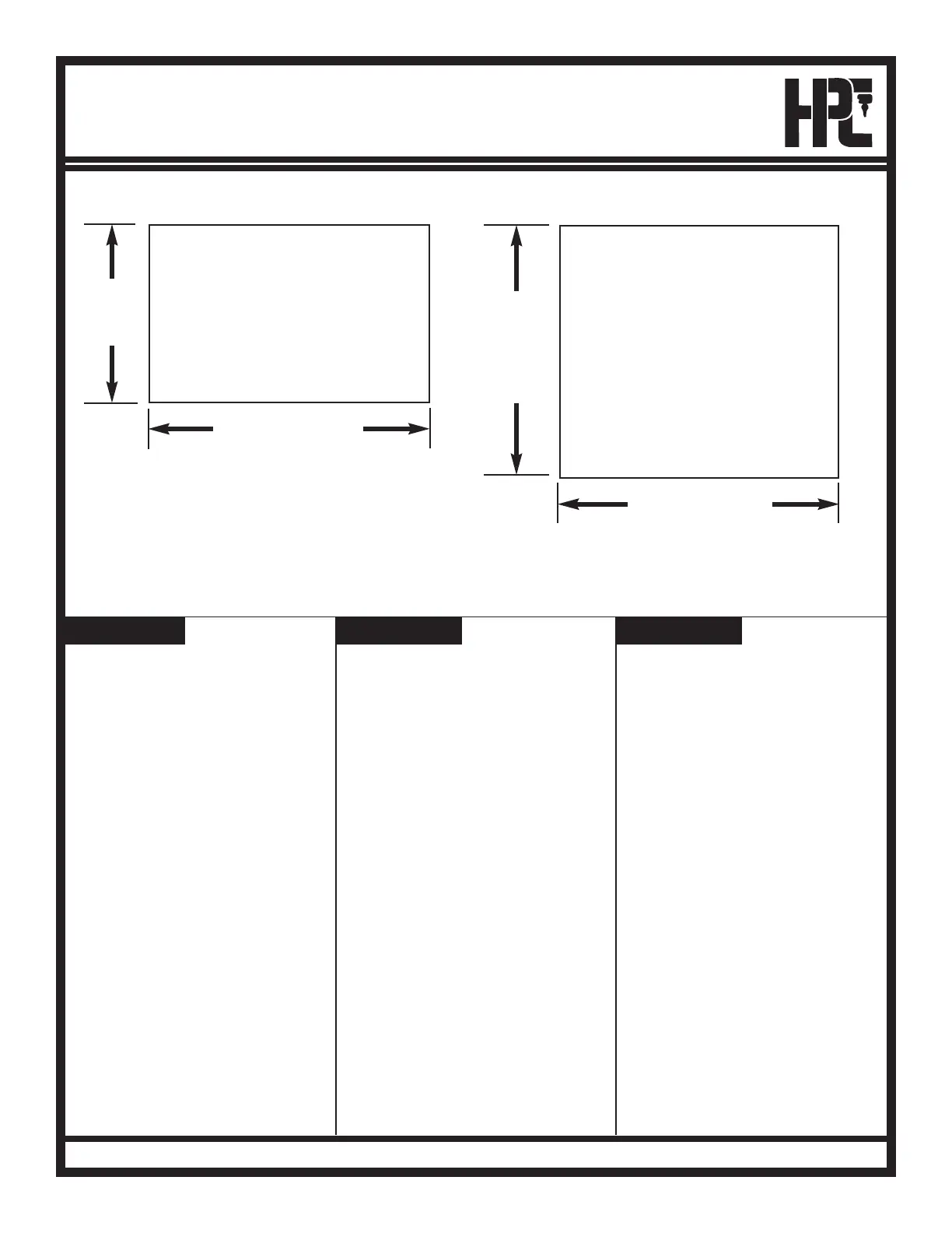
Fig. 1.
Small Safe Cutout Area (WS-100 Series)
Aire de découpage du petit coffre-fort
(Série WS-100)
Área de corte para el cofre pequeño
(Series WS-100)
9
1
8"
(23.2 cm)
14
1
2"
(36.85 cm)
Instructions (continued)
Instrucciones (continuación)
Instructions (continue)
Fig. 2.
Large Safe Cutout Area (WS-200 Series)
Aire de découpage du grand coffre-fort
(Série WS-200)
Área de corte para el cofre grande
(Series WS-200)
12
3
4"
(32.34 cm)
14
1
4"
(36.20 cm)
4