EasyManua.ls Logo

HPE ProLiant DL380 Gen10 - Cable Routing: Front 8 SFF Drive Options

HPE ProLiant DL380 Gen10
201 pages
To Next Page IconTo Next Page
To Next Page IconTo Next Page
To Previous Page IconTo Previous Page
To Previous Page IconTo Previous Page
Loading...
LFF models
Figure 2: Front 4LFF drive cage 1 (2SFF option)
Figure 3: Front 4LFF drive cage 1
NOTE: The HPEProLiant DL380 Gen10 Mini-SAS 3-position cable kit (P/N 826709-B21) is required to support the 11th and
12th embedded SATA ports for 12LFF configurations.
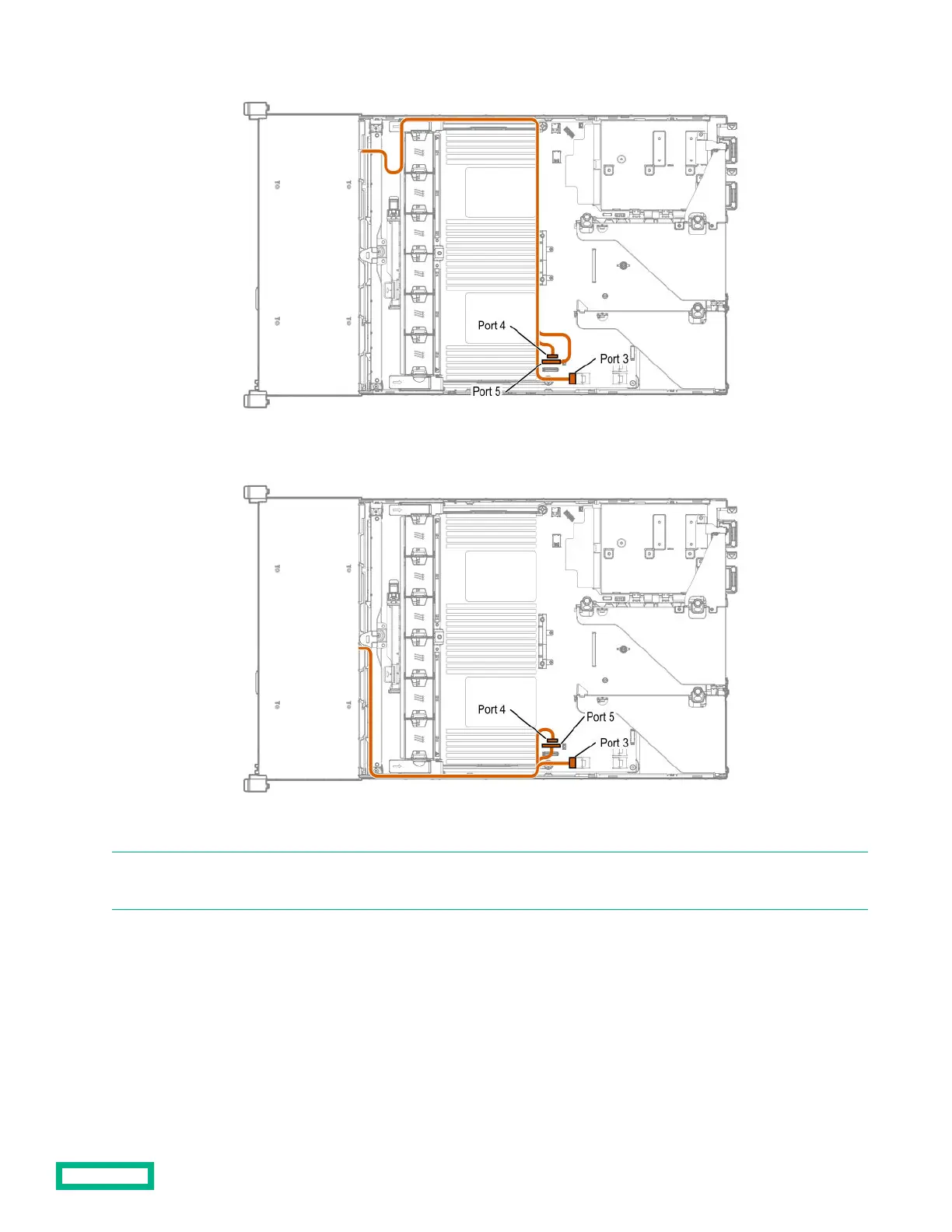
Cable routing: Front 8SFF drive options
Cabling
162

Table of Contents

Related product manuals