EasyManua.ls Logo

ICP HMH024KD1 - Cooling & Heating Models Cycle

ICP HMH024KD1
73 pages
Print Icon
To Next Page IconTo Next Page
To Next Page IconTo Next Page
To Previous Page IconTo Previous Page
To Previous Page IconTo Previous Page
Loading...
- 11 -
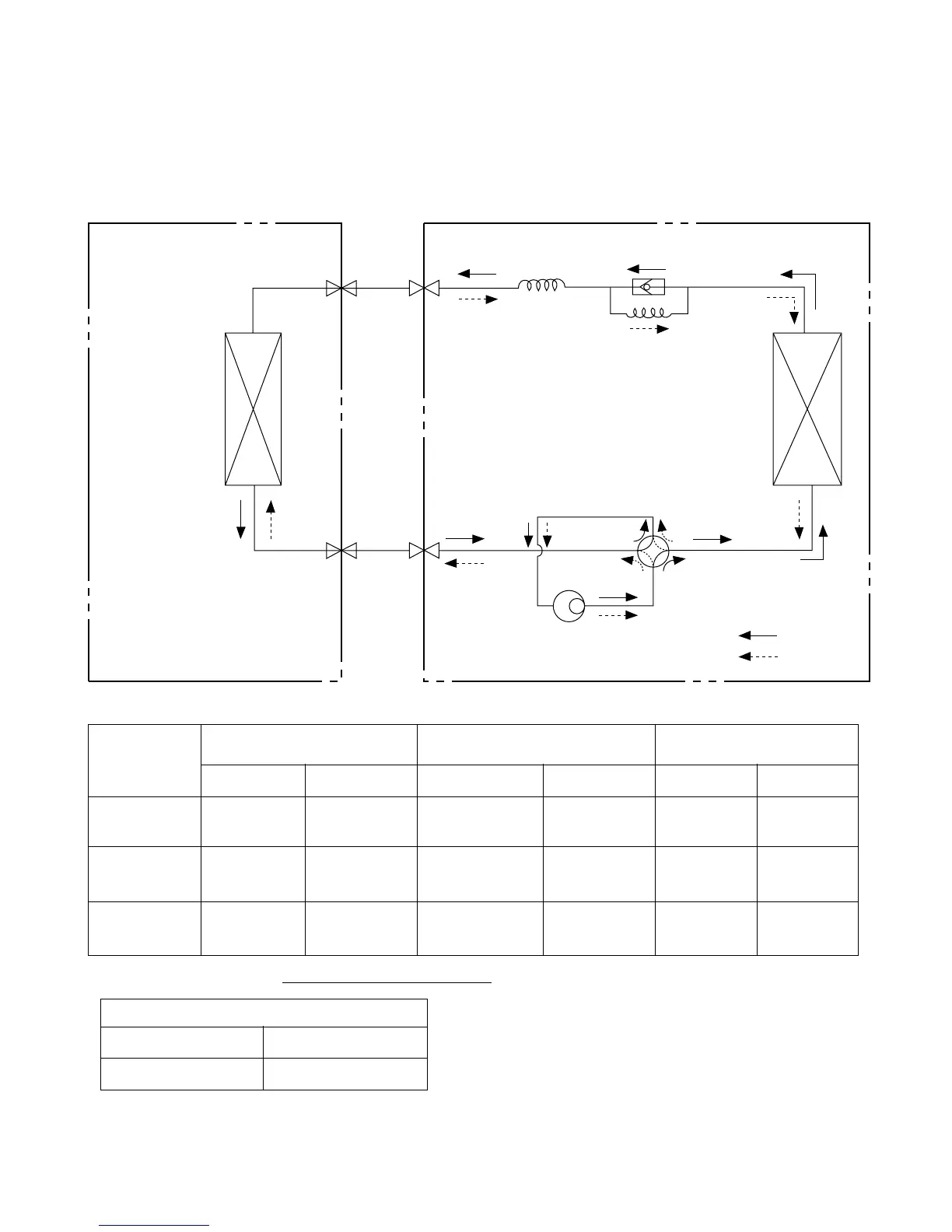
INDOOR UNIT
HEAT
EXCHANGER
(EVAPORATOR)
HEAT
EXCHANGER
(CONDENSER)
REVERSING
VALVE
COMPRESSOR
COOLING
HEATING
GAS SIDE
CAPILLARY TUBE
CHECK VALVE
LIQUID SIDE
OUTDOOR UNIT
• Cooling & Heating Models
MODEL
9K, 12K
(Cooling & Heating)
18K
(Cooling & Heating)
24K
(Cooling & Heating)
Pipe size(Diameter:ø) Piping length Elevation
Gas Liquid Rated Max Rated Max
1/2" 1/4" 7.62m(25ft) 15m(50ft) 5m(16ft) 8m(26ft)
5/8" 1/4" 7.62m(25ft) 15m(50ft) 5m(16ft) 8m(26ft)
5/8" 3/8" 7.62m(25ft) 15m(50ft) 5m(16ft) 8m(26ft)
For installation over rated, *a proper quantity of refrigerant should be added for each meter.
Ex) 18K: When installed at a distance of 15m, 295g of
refrigerant should be added.
(15-7.62) x 40g = 295g
a proper quantity of refrigerant
9K, 12K 20g
18K, 24K 40g

Related product manuals