EasyManua.ls Logo

Idex Knight Trak II KTL-6503

Default Icon
16 pages
To Next Page IconTo Next Page
To Next Page IconTo Next Page
To Previous Page IconTo Previous Page
To Previous Page IconTo Previous Page
Loading...
Page 15 of 16 0901039 Rev: C (05/01)
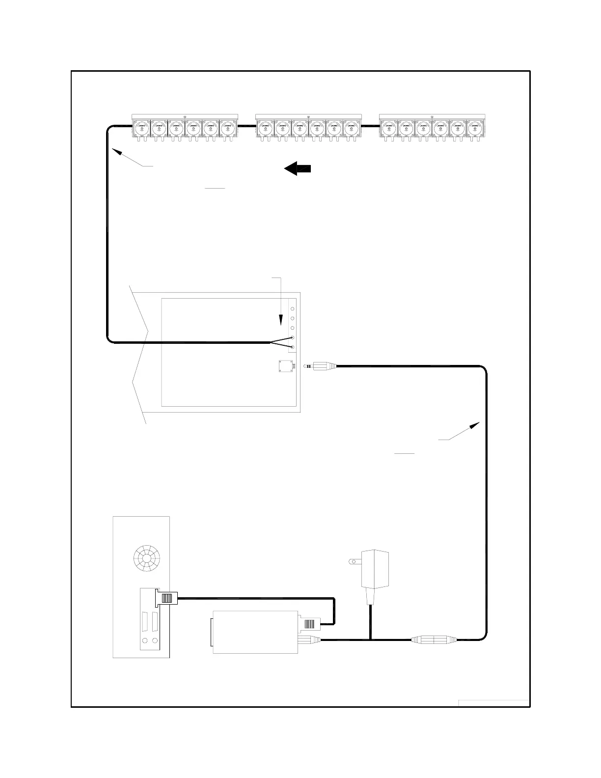
Data Flow
POB Circuit Board
Multi-Link Terminals
PC
12 VDC
Booster
Transformer
Reporter Hardware
Key Cable - Connects
To PC Serial Port
3 CONDUCTOR NETWORK CABLE
KNIGHT P/N 0300058-X ONLY
3 CONDUCTOR
NETWORK CABLE
KNIGHT P/N 0300058 ONLY
BLACK TERMINAL
BROWN TERMINAL
MALE
W
O
L
F
W
O
L
F
W
O
L
F
W
O
L
F
W
O
L
F
F
L
O
W
W
O
L
F
F
L
O
W
F
L
O
W
F
L
O
W
F
L
O
W
F
L
O
W
W
O
L
F
F
L
O
W
F
L
O
W
F
L
O
W
F
L
O
W
F
L
O
W
MALEFEMALE
Over Multi-Link
WINREPORTER / 04-02-01
CONNECT THE PLUG INTO
THE JACK ON THE CIRCUIT
BOARD IN ANY ONE OF THE
MULTI-LINKED DISPENSERS.
KCI-6000
or
RM-6000
(X = LENGTH OF CABLE)