EasyManua.ls Logo

iGuzzini IN30 LED - Page 14

iGuzzini IN30 LED
26 pages
Print Icon
To Next Page IconTo Next Page
To Next Page IconTo Next Page
To Previous Page IconTo Previous Page
To Previous Page IconTo Previous Page
Loading...
3
art. MWG8
art. MWG8
MIN
60 mm
MIN
130 mm
13mm
MAX
8mm
MIN 30mm
MAX
5mm
MAX
8mm
MIN 30mm
MAX
5mm
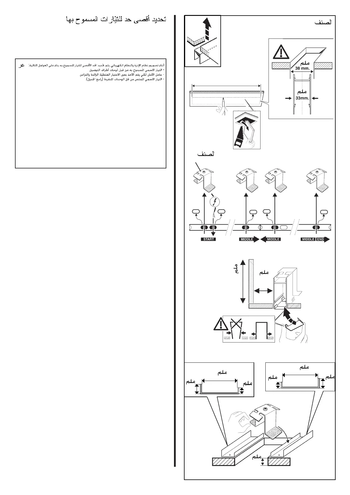
DETERMINAZIONE DELLE CORRENTI MASSIME AMMISSIBILI
DETERMINING THE MAXIMUM PERMITTED CURRENT
DETERMINACIÓN DE LAS CORRIENTES MÁXIMAS PERMITIDAS
Nella progettazione dell'impianto illuminotecnico ed elettrico, determinare le correnti
massime ammissibili, considerando i seguenti fattori:
- corrente nominale ammessa dalle morsettiere MAX 9A per cablaggio passante fra moduli;
- coefficiente di sicurezza per tenere conto delle sovratenzioni e contemporaneità;
- corrente nominale assorbita dai singoli moduli (vedi tabella).
When designing the lighting and electrical systems, work out the maximum permitted
current based on the following factors:
- rated current permitted by terminal blocks MAX 9 A for through wiring between modules;
- safety coefficient to allow for overvoltage and contemporaneity;
- rated current absorbed by single modules (see table).
Durante la proyectación de la instalación luminotécnica y eléctrica, determinar las corrientes
máximas permitidas, en consideración de los factores siguientes:
- corriente nominal permitida por las clemas de conexión MAX 9A para cableado pasante
entre módulos;
- coeficiente de seguridad para considerar sobretensiones y contemporaneidades;
- corriente nominal absorbida por los módulos individuales (ver tabla).
EN
IT
ES