EasyManua.ls Logo

iGuzzini IN30 LED - Page 3

iGuzzini IN30 LED
26 pages
Print Icon
To Next Page IconTo Next Page
To Next Page IconTo Next Page
To Previous Page IconTo Previous Page
To Previous Page IconTo Previous Page
Loading...
3
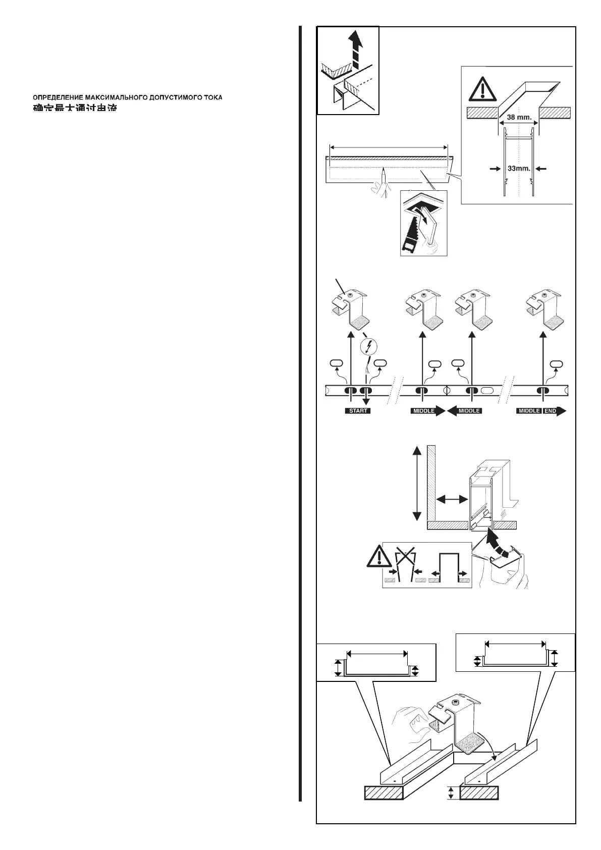
DETERMINAZIONE DELLE CORRENTI MASSIME AMMISSIBILI
DETERMINING THE MAXIMUM PERMITTED CURRENT
DETERMINATION DES COURANTS MAXIMAUX ADMISSIBLES
BESTIMMUNG DER ZULÄSSIGEN HÖCHSTSTRÖME
VASTSTELLEN VAN DE MAXIMAAL TOEGESTANE STROOMTOEVOER
DETERMINACIÓN DE LAS CORRIENTES MÁXIMAS PERMITIDAS
BESTEMMELSE AF MAKS. TILLADT STRØMSTYRKE
BESTEMME MAKSIMAL TILLATT STRØM
FASTSTÄLLANDE MAX. TILLÅTEN STRÖM
Nella progettazione dell'impianto illuminotecnico ed elettrico, determinare le correnti
massime ammissibili, considerando i seguenti fattori:
- 9A:corrente nominale ammessa dalle morsettiere;
- coefficiente di sicurezza per tenere conto delle sovratensioni e contemporaneità;
- corrente nominale assorbita dai singoli art.
E' buona norma evitare di far lavorare i conduttori dei cavi ai massimi valori.
When planning the lighting and electrical system, determine the maximum permitted current,
taking into account the following factors:
- 9A:the nominal current permitted by terminal blocks;
- safety coefficient to allow for excess voltage and contemporaneity;
- the nominal current absorbed by single art.
It is recommended that the wires inside the cables are made to operate at the maximum values.
Lors de l’étude de projet de l’installation d’éclairage et de l’installation électrique, déterminer
les courants maximaux admissibles en tenant compte des facteurs suivants :
- 9A:courant maximal admis par les borniers;
- coefficient de sécurité tenant compte des surtensions et de la simultanéité;
- courant nominal absorbé par les différents art.
Il est conseillé de ne pas faire fonctionner les câbles aux valeurs maximales.
Bei der Planung einer Beleuchtungs- und Elektroanlage bestimmen Sie die zulässigen
Höchstströme unter Berücksichtigung folgender Faktoren:
- 9A:von den Klemmleisten zugelassener Nennstrom;
- Sicherheitskoeffizient zur Einbeziehung von Überspannung und Gleichzeitigkeit;
- von den einzelnen art. aufgenommener Nennstrom .
Es ist bewährte Praxis, die Leiter der Kabel möglichst nicht den Höchstwerten auszusetzen.
Bij het ontwerpen van de verlichtingstechnische en elektrische installatie moet u de maximaal
toegestane stroomtoevoer vaststellen door rekening te houden met de volgende factoren:
- 9A:nominale stroom toegestaan op klemmenstroken;
- veiligheidscoëfficiënt om rekening te houden met overspanning en gelijktijdigheid;
- nominale opgenomen stroom van de enkele Art.
We raden u aan de kabelgeleiders nooit op maximaal vermogen te laten functioneren.
Durante la proyectación de la instalación luminotécnica y eléctrica, determinar las corrientes
máximas permitidas, en consideración de los factores siguientes:
- 9A:corriente nominal permitida de las borneras;
- coeficiente de seguridad para considerar sobretensiones y contemporaneidades;
- corriente nominal absorbida por los art. individuales.
Se aconseja evitar que los conductores de cables trabajen con valores máximos.
I projekteringen af det belysningstekniske og elektriske anlæg, skal man undersøge den
maks. tilladte strømstyrke, idet man tager højde for følgende:
- 9A: nominel tilladt strømstyrke fra klemrækkerne
- sikkerhedskoefficient for at sikre mod overspænding og samtidighed
- nominel absorberet strømstyrke på de enkelte dele
Man bør undgå at udsætte ledningerne for maks. belastning.
Under prosjektering av det belysningstekniske og elektriske anlegget, må maksimal tillatt
strøm beregnes, ved å ta med i betraktningen følgende faktorer:
- 9A:merkestrøm godtatt av klemmebrettene;
- sikkerhetskoeffisient for å holde oversikt over overstrøm og samtidig påslåing;
- merkestrøm som opptas av de enkelte modulene.
Det er en god regel å ikke bruke kablenes ledere ved maksimale verdier.
Vid projekteringen av belysningssystemet och det elektriska systemet ska max. tillåten
ström fastställas. Ta hänsyn till följande faktorer:
- 9A: Tillåten nominell ström från kopplingsplintarna.
- Säkerhetskoefficient för att ta hänsyn till överspänningar och sammanlagringar.
- Tillförd nominell ström från enskilda artiklar.
Det rekommenderas att undvika att låta kablarnas ledare arbeta med maximala värden.
При расчете светотехнической системы и электропроводки определите
максимальный допустимый ток с учетом следующих факторов:
- 9А: номинальный допустимый ток, допустимый в клеммных колодках;
- коэффициент безопасности для учета перенапряжения и одновременного
включения;
- номинальный ток, поглощаемый отдельными изделиями.
Не следует подвергать провода кабелей рабочему режиму с максимальными
значениями.
设计电器、照明设备的时候必须参照下列数据,确定允许的最大电流:
- 9A:接头允许的额定电流
- 为监控超电压与同时性的安全系数;
- 每个组件的额定吸收电流。
请避免让电缆的导体在最高数据下运行
IT
EN
FR
DE
NL
ES
DA
NO
SV
RU
ZH
art. MWG8
art. MWG8
MIN
60 mm
MIN
130 mm
13mm
MAX
8mm
MIN 30mm
MAX
5mm
MAX
8mm
MIN 30mm
MAX
5mm