EasyManua.ls Logo

industrie technik DB-I4D - OVERALL DIMENSIONS; ELECTRICAL WIRINGS; Set point remote control wiring

Default Icon
7 pages
Print Icon
To Next Page IconTo Next Page
To Next Page IconTo Next Page
To Previous Page IconTo Previous Page
To Previous Page IconTo Previous Page
Loading...
I
NDUSTRIE
T
ECHNIK
I
NDUSTRIE
T
ECHNIK
E-47
COLLEGAMENTI ELETTRICI
ELECTRICAL WIRINGS
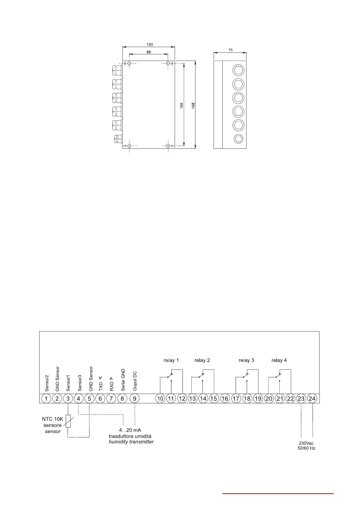
DIMENSIONI D’INGOMBRO
OVERALL DIMENSIONS
Models DB-I4D/02/001, DB-I4D/02/002 and DB-I4D/02/
003
The electrical wirings are shown in figure 1.
The table shows the input for each model.
Model DB-I4D/02/004
The electrical wirings between master and slave unity
are shown in figure 2 (next page).
Set point remote control
The electrical wirings of all the models DB-I4D/02/00x
with the set point remote control are shown in figure 3
(next page):
a) DB-CDP as set point remote control;
b) DB-CDP as set point remote control and temperature
sensor.
Modelli DB-I4D/02/001, DB-I4D/02/002 e DB-I4D/02/003
Le connessioni sono illustrate in figura1. Gli ingressi pre-
senti in ciascun modello sono indicati nella tabella.
Modello DB-D4I/02/004
I collegamenti tra le unità master e slave sono illustrati in
figura 2 (pagina seguente).
Variatore di set point remoto
I collegamenti elettrici di tutti i modelli DB-I4D/02/00x con
il variatore di set point remoto sono indicati in figura 3
(pagina seguente):
a) DB-CDP come variatore remoto di set point;
b) DB-CDP come variatore remoto di set point e sonda
di temperatura.
fig.1

Related product manuals