EasyManua.ls Logo

Infiniton CC3NH - Page 55

Infiniton CC3NH
Print Icon
To Next Page IconTo Next Page
To Next Page IconTo Next Page
To Previous Page IconTo Previous Page
To Previous Page IconTo Previous Page
Loading...
23
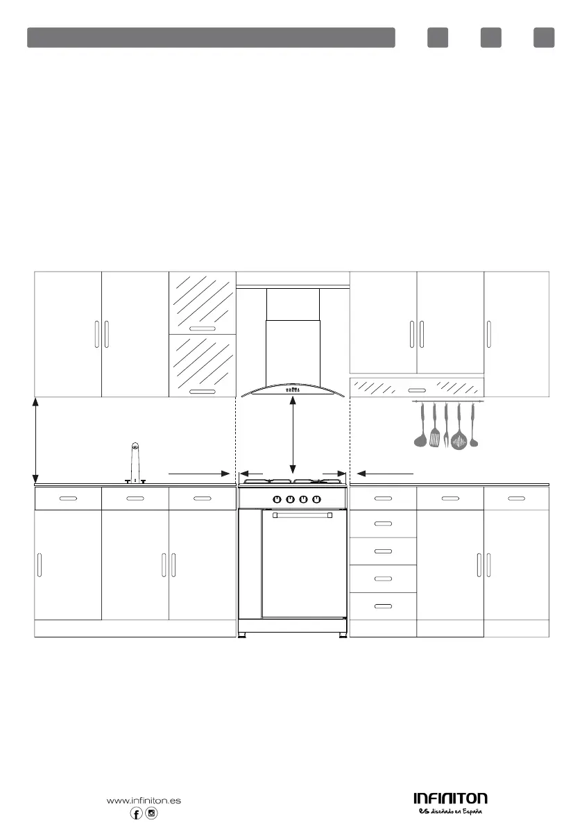
Right Place for Installation and Important Warnings
The appliance should be used within the kitchen furniture in such a way
that there is a distance of at least 400 mm between the upper hob surfac-
es and other surfaces and a distance of 6.5 mm from the side surfaces.
If a hood or aspirator will be installed above the appliance, follow the
instructions of the manufacturer for height of installation. (min. 650 mm)
The appliance can be placed side by side with kitchen walls, kitchen
furniture, or any size of appliance behind or on one side. The kitchen fur-
niture in the immediate vicinity of the appliance should be the same size
or smaller than the appliance.
WARNING: All kinds of kitchen furniture next to the
appliance should be heat-proof. (Not less than 100°C)
WARNING: Do not install the appliance beside refrig-
erators or coolers. Heat radiated by the appliance in-
creases the energy consumption of cooling appliances.
6.5 mm min.
6.5 mm min.
650 mm min.
400 mm min.

Related product manuals