EasyManua.ls Logo

Infiniton CC3NH - Page 86

Infiniton CC3NH
Print Icon
To Next Page IconTo Next Page
To Next Page IconTo Next Page
To Previous Page IconTo Previous Page
To Previous Page IconTo Previous Page
Loading...
84
PO
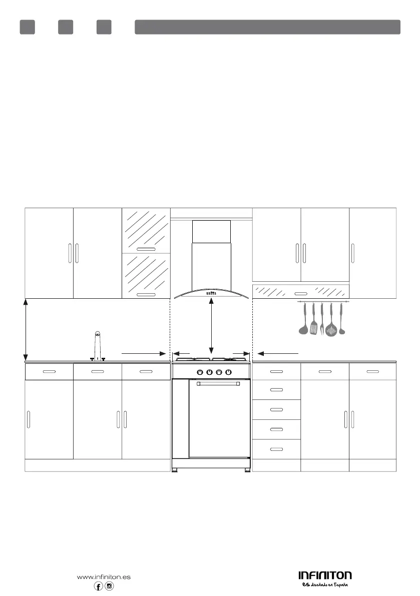
Local correto para instalação e advertências importantes
O aparelho deve ser usado num armário de cozinha de modo a que exis-
ta uma distância de pelo menos 400 mm entre as superfícies superiores
do queimador e as outras superfícies e a uma distância de 6,5 mm das
superfícies laterais.
Se for instalado um exaustor ou aspirador por cima do aparelho, seguir
as instruções do fabricante para a altura da instalação. (mín. 650 mm)
O aparelho pode ser colocado lado a lado com as paredes da cozinha
ou qualquer dimensão do aparelho atrás ou num dos lados. Os armários
de cozinha que se encontrem próximos do aparelho devem ter o mesmo
tamanho ou serem mais pequenos que o aparelho.
ADVERTÊNCIA: Todos os tipos de armários de cozinha
junto do aparelho devem ser à prova de aquecimento.
(Não menos que 100°C)
6,5 mm mín.
6,5 mm mín.
650 mm mín.
400 mm mín.

Related product manuals